Taegutec Office Building
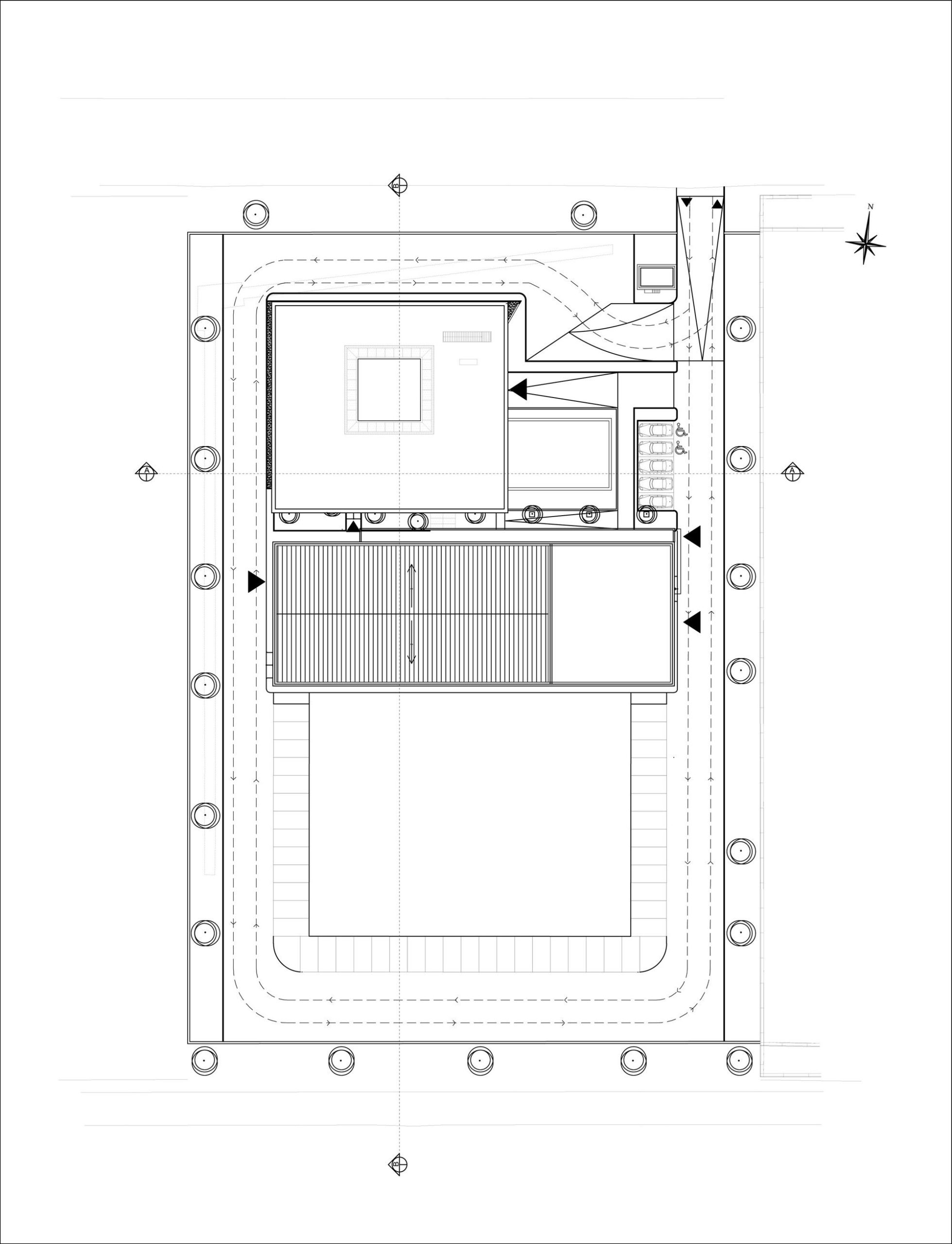
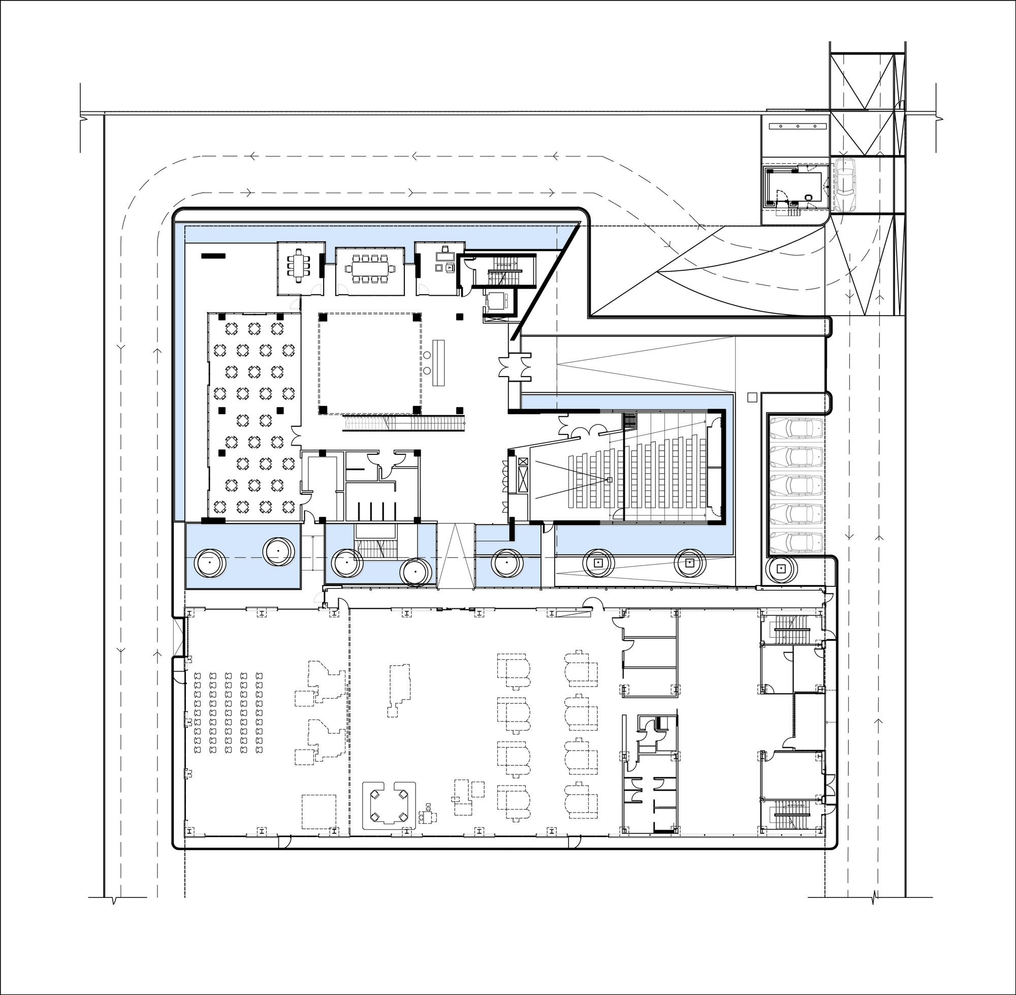
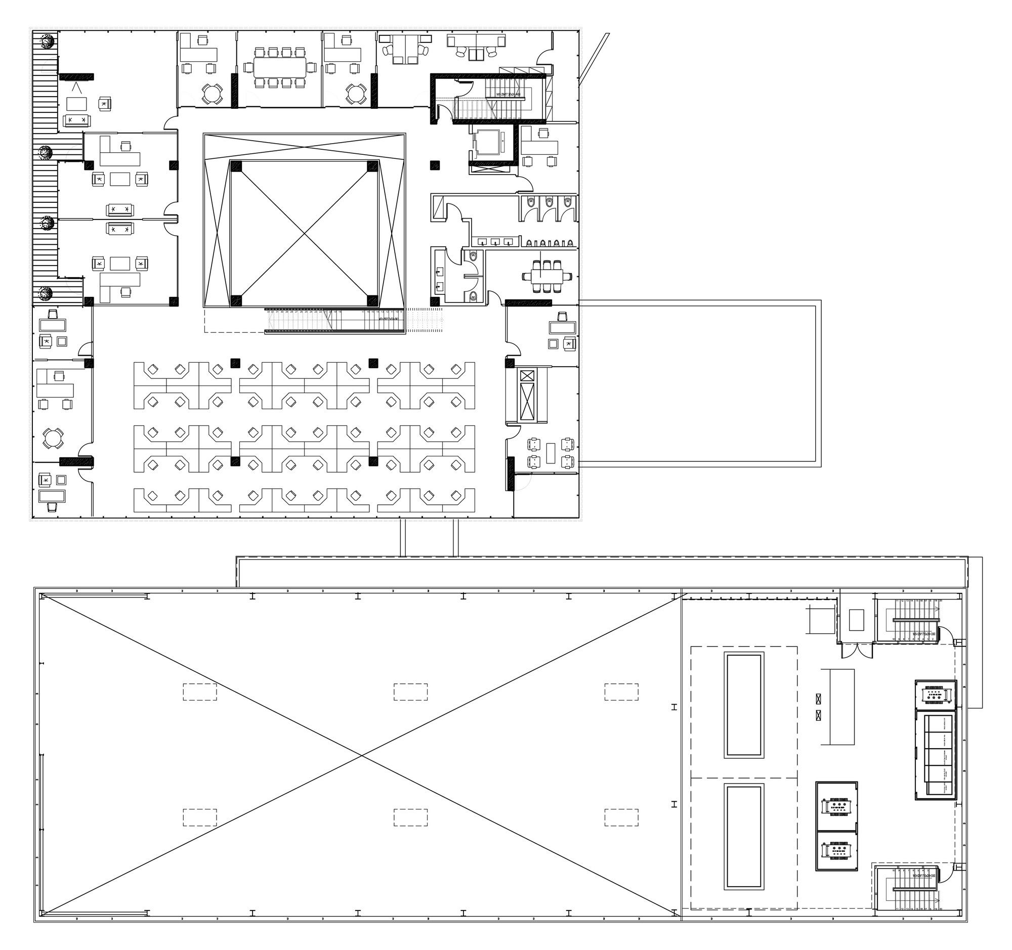
Taegutec is located in Kocaeli Organized Industrial Zone and is composed of factory and office buildings. Office building which contains main entrance, event hall, staff cafeteria and conference room on the ground floor and offices on the first floor is located near the factory building. Factory and office buildings are connected through bridges.
The building consists of three volumes reflecting different sort of use. The first one contains the iconic conference room on the ground floor, second one offices on the first floor and the third one factory building.
The main entrance is beside concrete sculpture like the long cantilevered conference block flies over eye-catching reflection pool with a unique atmosphere. In the center, the office building embraces a gallery covered with a skylight. This space may function as an exhibition area. The gallery at the same time functions as a courtyard for the open office area. All the inner space takes advantage of dimensioned daylight.
Project Info
Architects: Tago Architects
Location: Kocaeli Province, Turkey
Design Team: Mevlüt Duymaz, Hakan Özbek, Müge Eker Eryarar, Müge Turgay, Emre Kurbak, Mete Kıyan, Coşkun Armağan, Yıldırım Akbulut
Collaborators: Trimline Office Panels
Area: 4000.0 sqm
Type: Office Building
Year: 2011


















