Summerhill Residence | Edmonds + Lee Architects
Edmonds + Lee Architects’ Summerhill Residence sits high in the hills of California wine country. Its distinct forms with raised corners mold an outdoor living area and courtyard.
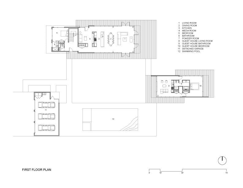
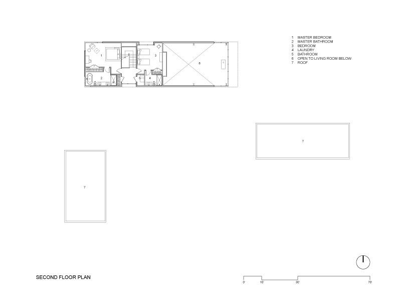
The residence consists of three separate structures, the main house, guest house, and a detached garage. The orientation of these buildings maximizes usable outdoor space and serves to connect natural and man-made elements.
Interior and exterior spaces extend outwardly to the rolling hills of the surrounding landscape. This connection is harbored by the design to both connect and blur the line between interior and exterior. Full walls of glazing and expansive wooden decks reflect a desire to heighten the experience of being in the “country”.
The main and guest houses provide an aesthetic juxtaposition while capturing their own views of the California scenery. Mirroring one another, these two structures vary in dimensionality yet feel interconnected. This also works for the detached garage and can be attributed to a mixture of common materials and a formal language that is consistent throughout each entity. These raised corners of the residential cubes add both formal interests and further serve the architects desire to blend interior and exterior spaces.
From the interior, snapshots of the horizon are mixed with the sloping lines on the interior, using natural and man-made geometries to play off of each other. A play between solid and void relating the buildings allows for privacy even within close vicinity.
By night, slits of light show from underneath the masses of these structures. Punctured windows peek out from beneath the wooden overhang of the two stories main house. The three structures rise as a geometric counterpart to the surrounding forests. Exterior wooden cladding along with exposed planes of glazing and concrete merge in order to create both distinct and dialectic design.
Project Info:
Architects: Edmonds + Lee Architects
Location: Kenwood, United States
Project Team: Robert Edmonds, Vivian Lee
Structural Engineer: Double-D Engineering
Civil Engineer: Dimensions 4 Engineering
Area: 4095.0 ft2
Project Year: 2008
Photographs: Bruce Damonte Photography
Project Name: Summerhill Residence
















Tags: Bruce Damonte PhotographyCaliforniaCourtyardEdmonds + Lee ArchitectsStructureSummerhillUnited StatesWood
Ruba Ahmed, a senior project editor at Arch2O and an Alexandria University graduate, has reviewed hundreds of architectural projects with precision and insight. Specializing in architecture and urban design, she excels in project curation, topic selection, and interdepartmental collaboration. Her dedication and expertise make her a pivotal asset to Arch2O.




