Suan Kachamudee
Suan Kachamudee project is a unique and cozy “boutique” resort located on the East Coast of Koh Samui Island in Chaweng Noi, Thailand. The project is located on a hill with a breath-taking view and with very strong constraints: a slope over 50%, large and numerous granite rocks, and lush vegetation. We developed the project around these constraints, taking advantage of each.
The main idea was to create a contrast between the buildings and the rocks. The buildings are irregular sharp white blocks lay on the luxuriant landscape in contrast with the existing massive round black granite stones.
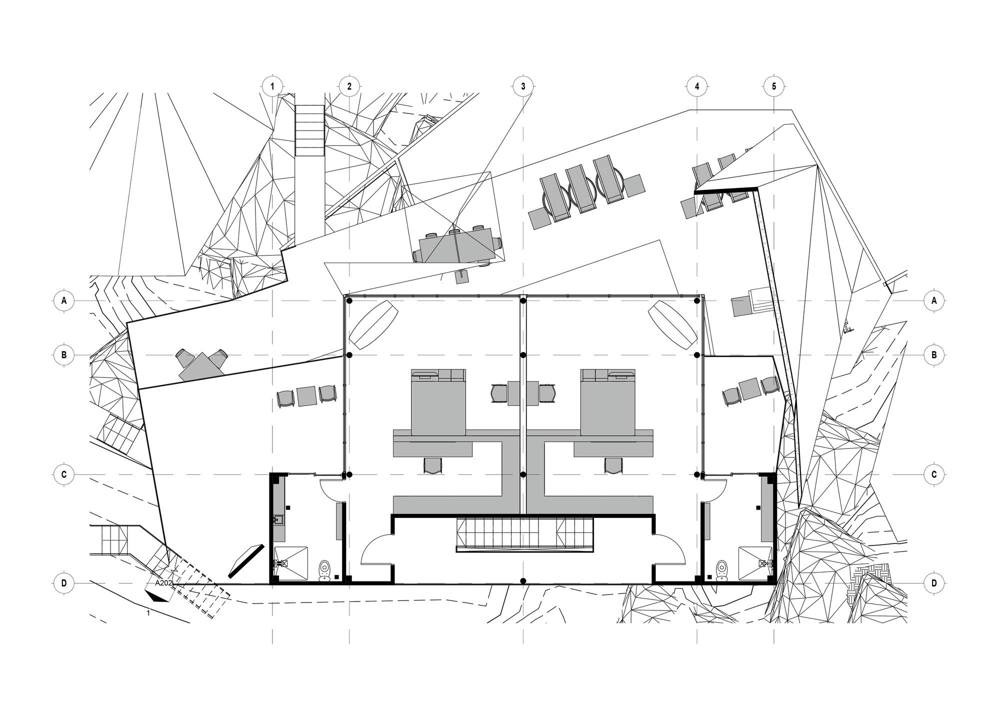
These white blocks are split into various units, distributed along the slope of the site, minimizing the density perception, and adjusting their location to the existing granite rocks, as well to preserve the existing vegetation. Besides, the design of the white shell is not a simple game of shape. They are a shell that has been studied carefully in regards to the solar protection under tropical climate.
The guests arrive at the Reception / SPA building that provides an amazing view of the sea. The path leads the guest to the Main building with the swimming pool located in the core of the land. The bedroom units with their own private terraces are spread around the main building.
Overall, the project is composed of 8 bedrooms split into 5 blocks, a SPA, a Main Building with a large swimming pool and a complete living area. The resort develops 1,000 sqm construction on a 2,500 sqm site.
Project Info
Architects: Sicart & Smith Architects
Location: Ko Samui, Thailand
Area: 1000.0 sqm
Site Area: 2,500 Sqm
Project Management: 9pm Project Management
Year: 2015
Type: Hotel
Photographs: Anne Sophie Maestracci





















