Stepping Stone House | HAMISH&LYONS
Stepping Stone House
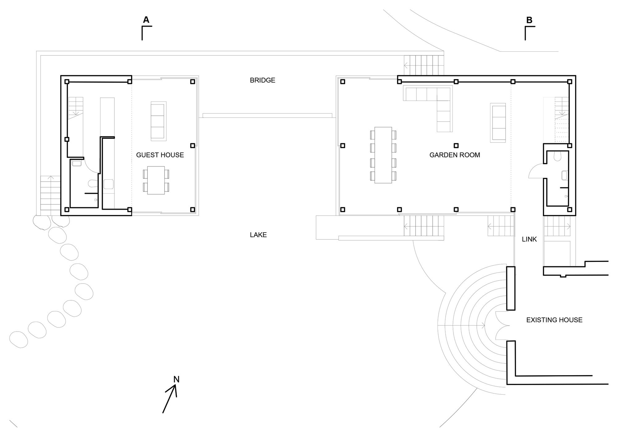
Three disconnected, under-used and flood prone outbuildings were replaced with two new buildings that provided additional living accommodation for the existing house. Specific attention was given to the 5 children, all boys. The design therefore seeks to engage the family with the calming effects of nature. This is achieved through the abundant use of daylight, an organic structure, natural materials and a new landscape design.
The smaller of the two new buildings is a self-contained guest house with a kitchen / living space, utility corridor, bathroom and bed deck. The larger building is the family’s main living space – it also has a bed deck and bathroom. It is connected to the existing house via a structural glass bridge. Both buildings can be “opened” up to each other as the glass at raised ground floor level is designed as sliding, opening, door panels.
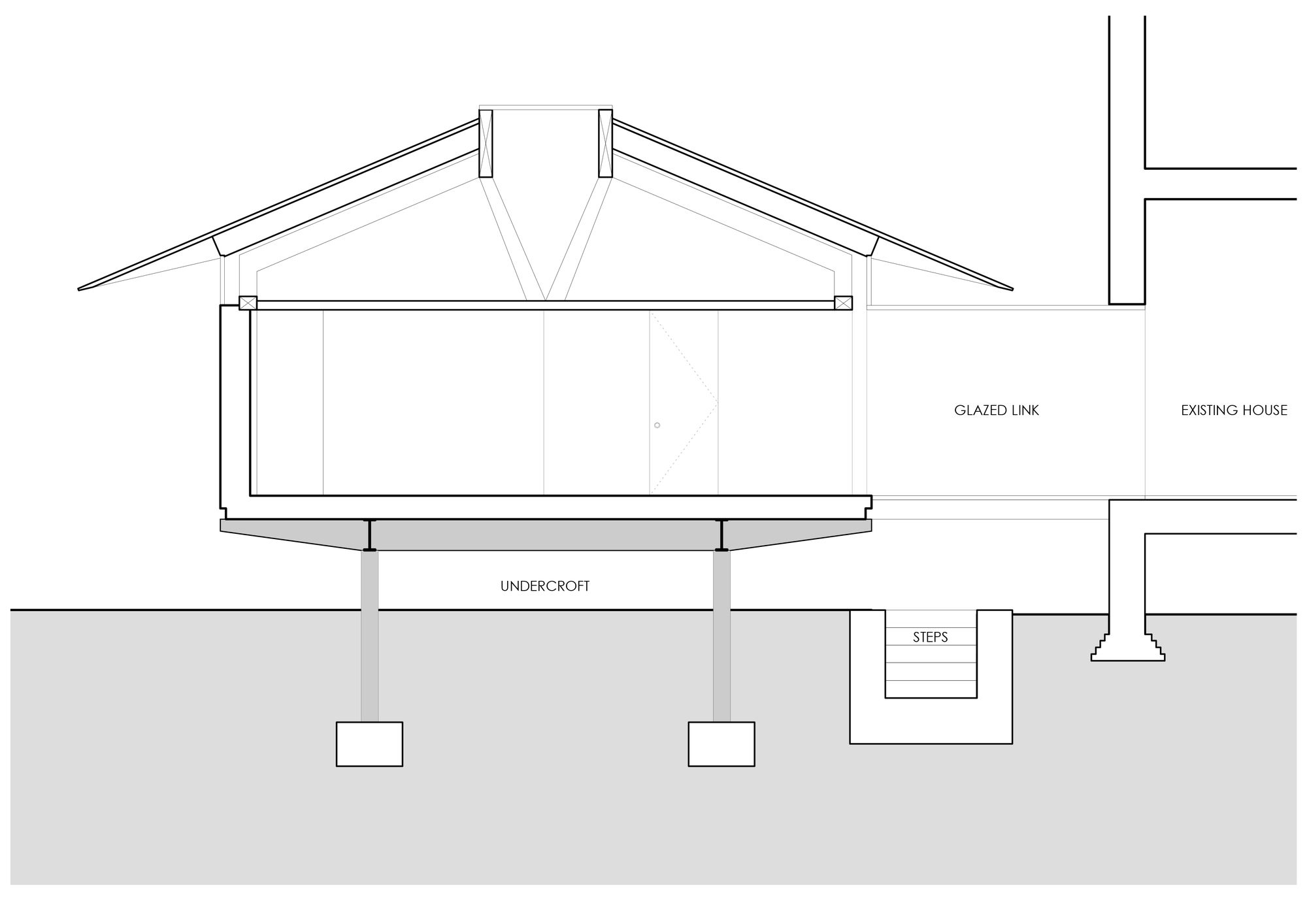
The stilts elevate the buildings above the lake, lifting them clear of flood waters and allowing flush access to the ground floor of the existing house. They also make it possible to swim under the buildings. A key feature of the design is the roof and its 1.5m overhanging eaves which serve to shade the interiors in summer and also provide a sheltered walkway that merges inside and out.
The use of hardwood for the wide handrail, deck and soffit of the roof creates a warmth and tactility to these spaces. Brick was selected to relate to the existing brick manor house and to create the impression of a monolithic, rectilinear form, floating effortlessly above the water. A longer brick dimension was chosen to emphasise the horizontality of the new buildings.
The minimal steel structure was designed to give the impression of the building floating over water. Light, bouncing off the water, highlights the building’s undercroft, where the black steel ribs are in contrast to the white corrugated floor deck. Tapered steel fins cantilever out from the Glulam structure at clerestory level to support the overhanging eaves and echo the steel floor supports around the perimeter of the buildings.
The Glulam was chosen for its precise engineering and stable qualities which were the ideal partner for the steel frame and bespoke glazing systems, both manufactured with minimum tolerance. The larch Glulam is largely exposed on the interior which, coupled with the Douglas Fir plywood paneling lend a warmth to the interior of which the central “Y” post forms a focal point. The upper part of the “Y” splits to support the central roof light which runs the entire length of each building splitting the roof and opening the interior to the sky. The pre-oxidised diamond copper roof shingles relate to the clay roof tiles of manor house, whilst providing a unique character to the new buildings. The malleable copper allowed a bespoke edge detail to be formed to give the roof eaves a blade like sharpness.
The architect’s landscape design is integral to the concept of engaging the family with their surroundings and included the swimming lake as well a circular routes around the buildings. From the front parking area a path snakes through a sheltered garden of large tree ferns eventually leading out onto stepping stones that cross the lake. The stones link to an elevated walkway and bridge which connects the two buildings.
On the south side a diving platform extends out and provides a central spot from which to experience the surroundings. A deck leads to further steps down to a brick terrace. The route then dips below the glass link ending up back at the parking bay. The resulting effect is that the architecture and landscape merge with each other to create a playful and engaging place that is both calming and spiritual.
Much of the building was pre-fabricated which allowed for a brief construction period on site and minimised waste. The architects developed the design as a modular building system, based on a repeated section which allowed for a greater level of efficiency and refinement in the details.
Project Info:
Architects: HAMISH&LYONS
Location:United Kingdom
Area: 150 m²
Project Year: 2016
Photographs: James Brittain Photography, Will Scott Photography
Manufacturers: HESS TIMBER, Sky-Frame, TECU®, Vectorworks, Cantifix, Hess Lighting, Michelmersh, Exterior Solutions, Lumion 4D, Trimble



































