Stadt Park Lehen Residential Building, The residential project “City Park Lehen” is located on one of the main roads into Salzburg. The unique characteristic of the location is the interaction of a diverse range of structures. Lending itself to vast number visitors, passers-by, and residents, the adjacent Ignaz-Harrer-Straße is a highly frequented urban core zone. On the other side of the property is a quiet park, used as a recreation area for the entire neighborhood. In addition, the site marks the boundary between large-scale block developments and loose, heterogeneous settlement structures.
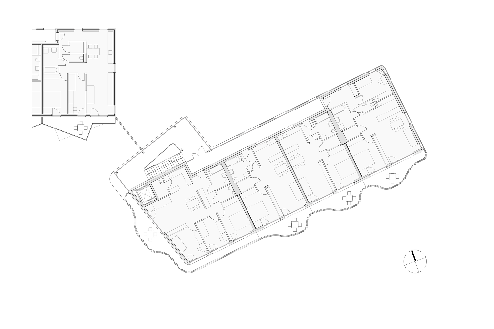
Rather than building an impermeable barrier between the road and the city park, the aim of the design is to create a structure with large openings which will enhance the qualities of public spaces and allow visual connections to the park.
The structure also implements a height modulation which mimics a transition from urban scale of block development to the low buildings in the vicinity.
The introduction of specific features lends the building its individual identity and allows its users – as well as the local residents to identify with it. This is achieved mainly by gradually shifting perforations combined with coordinated changes in the color of the façade modules.
To further accentuate the shift in scale the undulating balcony types facing the park side echo – on a small scale – the articulation of the overall building mass.This results in a differentiated, varied cityscape, adding an architecturally confident anchor to the neighborhood.
Project Info
Architects: Martin Oberascher & Partner Architekten ZT GmbH, PLOV ZT GmbH
Country: Austria, Salzburg
Area: 10500 m²
Year: 2018
Photographs: Stefan Zauner
Manufacturers Sto: Sto
Landscape Architects: Atelier Auböck + Kárász
Construction work: Spiluttini Bau GmbH
HVAC: Urdl HKLS Technik GmbH
Electric installations: Elektro Schartner


















