Sports Facility | Batlleiroig

Sports Facility , The Ciutat Vella district, one of the most populous in Barcelona with 111.290 inhabitants, is in permanent search of available areas to address its needs for public facilities. Its high urban density makes it the third most dense district in Barcelona, with 24.786 inhabitants per square kilometer. The historical conditions of its underground sometimes require a deployment of urban engineering in order to find building sites apt for public facilities. The district was lacking a sports facility, approximately 4.500 square meters, that would house an indoor basketball court, a multipurpose outdoor field, an indoor pool, an outdoor pool, a gymnasium divisible into various rooms, and the corresponding locker and service rooms.

© José Hevia1

© José Hevia

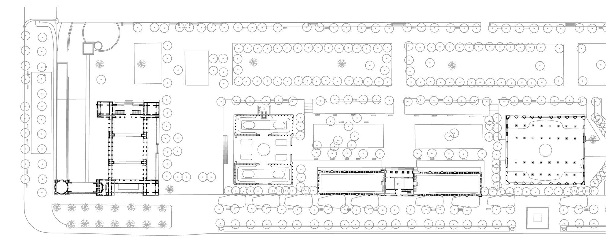
In the general framework of the revision to the masterplan for the Parque de la Ciudadela implemented in the Ciutat Vella district, a large area was destined for a sports building. This facility would substitute and improve a set of outdoor tracks, greatly successful among the inhabitants of the city, located next to the entrance to the park from the Paseo del Marqués de la Argentera.

© José Hevia2

© José Hevia

The lot chosen for the sports facility is aligned with the set of buildings that constitute the facade of the Parque de la Ciudadela towards the Paseo Picasso: the old restaurant of the Universal Exhibition of 1888, which is now the Zoology Museum, built by Lluís Domènech i Montaner; the Hivernacle, a project by Josep Amargós i Samaranch; the Geology and Natural Sciences Museum by Antoni Rovira i Trias; and the Umbracle, by Josep Fontseré i Mestres. The original project for Parque de la Ciudadela designed in 1873 by Fontseré already contemplated another building, next to the entrance from Marqués de la Argentera, which would complete the series of buildings that enclose the park on the Ciutat Vella side. Our proposal affects a surface of 750 square meters approximately. Its proximity to the aviary forced the remodeling of cages and their location (see Cages for Guacamayos in Barcelona Zoo project).

© José Hevia3

© José Hevia

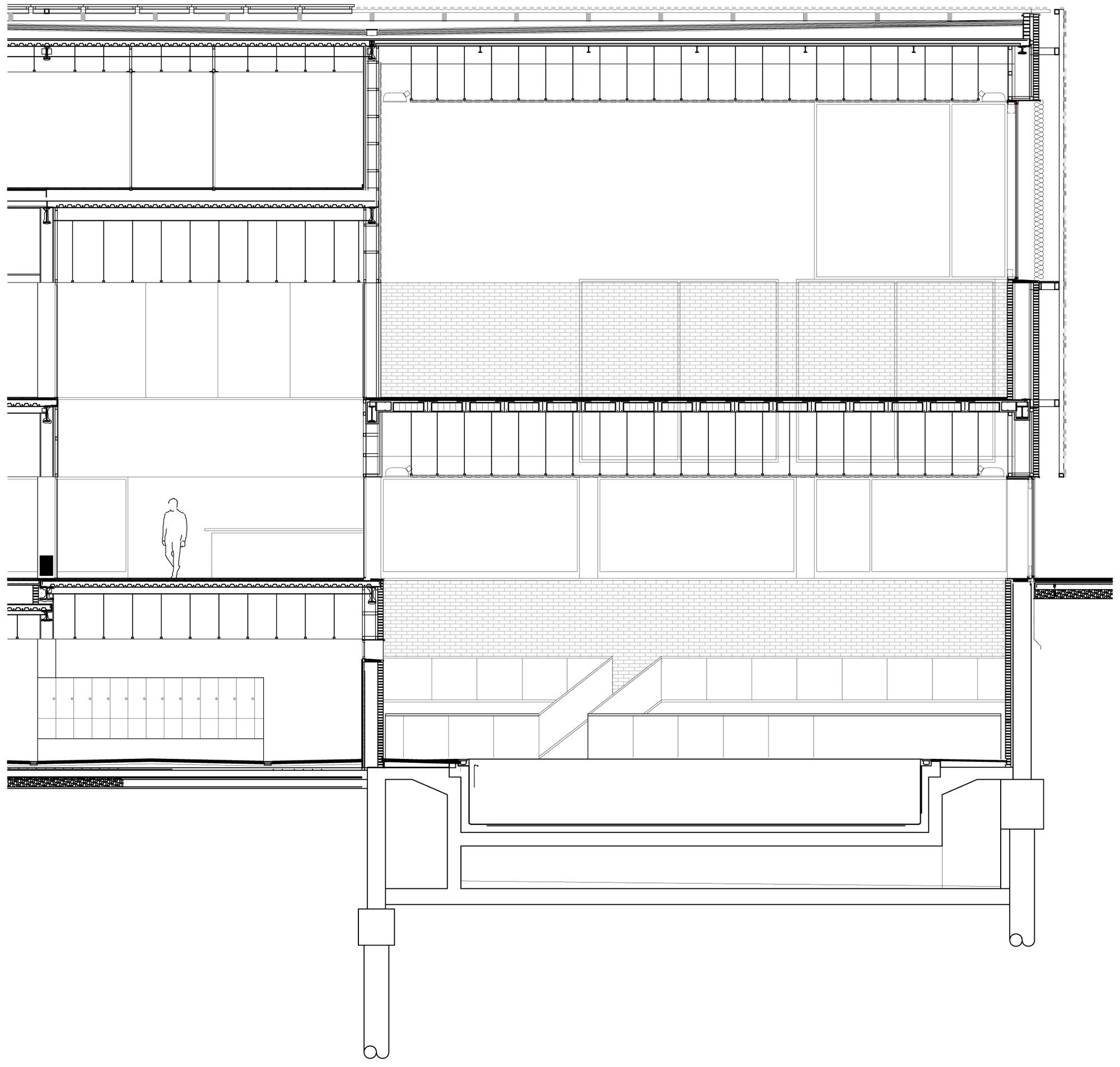
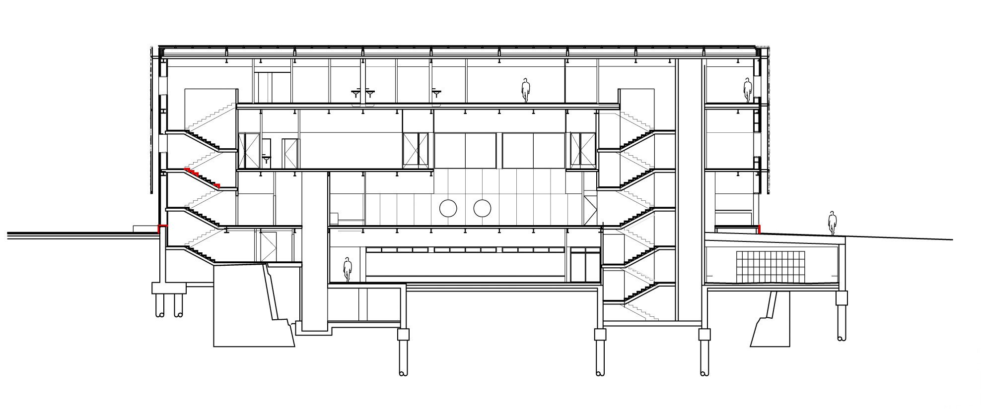
Our project seeks to assimilate the scale of the sports building to that of other buildings in the park, attempting to reorganize the program to occupy the least area on the ground, and at the same time, not grow any higher than the other buildings. To achieve this, the main uses of the building, sports track, pool and locker rooms, are located at a level 3.5 meters below the park. On the ground floor, at street level, is the general vestibule and the security check for the floors restricted to users. From here, an open access to the terraces of the sports track enables a connection through the building between Paseo Picasso and Parque de la Ciudadela, a link that also occurs in the Hivernacle. The first floor comprises the gym and fitness rooms, and the second floor includes the rest of the program required by this facility (medical center, building services, etc), as well as an outdoor pool with its corresponding services. This layout takes advantage of the height difference between the sports building and the pool to terrace the building, and therefore decrease the total height of the building to 14 meters, which is considerably below the surrounding buildings and even lower than the nearby trees.

© José Hevia4

© José Hevia

During the design of the project, remains of walls from the old citadel built by Felipe V in 1714 were discovered in the site. Their architectonic quality and archeological value made us adapt the project to the shape of the walls and provide the possibility of making them visible and accessible, at least in the pool area. Their layout delimits and separates the recreational water area from the pool area; the ruins are protected by a small pit.

© José Hevia5

© José Hevia

Outside, the building operates as an enclosure of the park, like the rest of the buildings on Paseo Picasso. It further sets the basis for the future fence of Pase de Circunvalación. For this reason, the ground floor is enclosed in glass, searching for the maximum transparency between street and park. The enclosure on other floors alternates between glass and solid mass, depending on the interior use. Finally, the building is covered with wood sheets for solar protection, to camouflage with the trees and to seek its own site near the umbraculum.

Project Info
Architects: Batlleiroig
Country: Barcelona, Spain
Area: 4300 m²
Year: 2005
Photographs: José Hevia

Madeline Brooks
Show full profile Madeline Brooks

Madeline Brooks is a Projects Editor at Arch2O, where she has been shaping and refining architectural content since March 2024. With over a decade of experience in editorial work, she has curated, revised, and published an array of projects covering architecture, urbanism, and public space design. A graduate of the Harvard University Graduate School of Design, Madeline brings a strong academic foundation and a discerning editorial eye to each piece she oversees. Since joining Arch2O, she has played a pivotal role in shaping the platform’s editorial direction, with a focus on sustainability, social relevance, and cutting-edge design. Madeline excels at translating complex architectural ideas into clear, engaging stories that resonate with both industry professionals and general readers. She works closely with architects, designers, and global contributors to ensure every project is presented with clarity, depth, and compelling visual narrative. Her editorial leadership continues to elevate Arch2O’s role in global architectural dialogue.

Arch2O.com
Logo