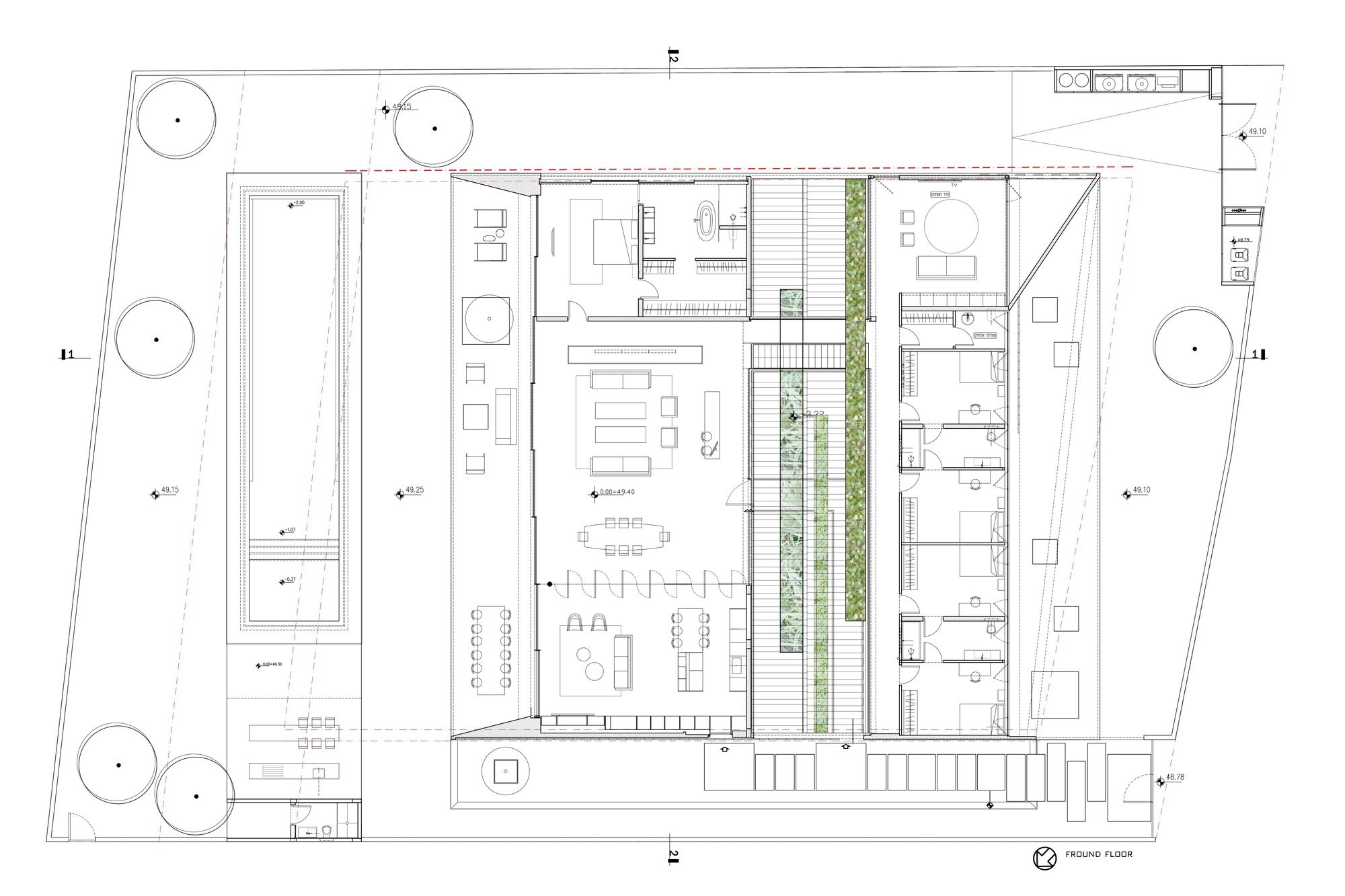
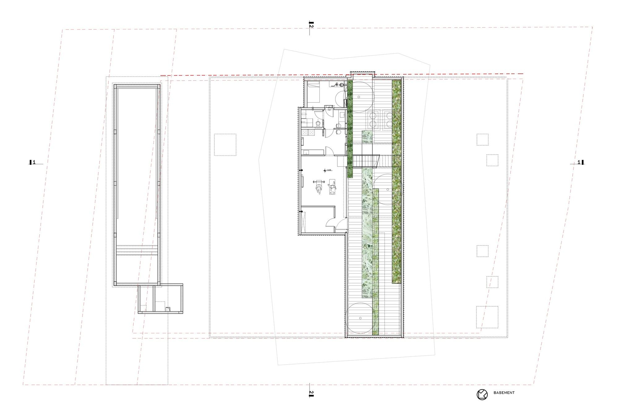
Split House
The Split House negotiates a complex range of conditions typical of emerging coastal developments. New houses for ‘downsizers’ in a suburban mode, paved driveways, and letterboxes prevail, vying for the expansive views of Port Philip Bay, and backed by the relatively wild, coastal woodland of Mt Martha Public Park. The Split House provides a range of spatial relationships to its site and the broader territory that carefully balances the owners’ desire for privacy and engagement with their surrounds. The house comprises two relatively simple volumes linked by a splayed stair that also acts as a seating area for people to gather, listen to music, sit in the sun. Occupying separate levels that follow the natural contours of the site, the two pavilions provide a separation between the upper, main living/master bedroom zone, and rumpus room/guest bedrooms below. Through the curation of windows and doors, a range of direct and indirect connections to the landscape provides multiple opportunities for occupation throughout the year. Smaller elements, such as integrated seating, stairs, and study nooks provide spaces for quiet contemplation, juxtaposed with larger communal areas for family and friends to come together.
Project Info
Architects: BKK Architects
Location: Mount Martha, Victoria
Gross Built Area: 320 m2
Builder: Overend Constructions
Structural & Civil Eng: Kersulting Engineers
Services Eng: BRT engineers
Landscaping: Mud Office
Building Surveyor: Groupii
Quantity Surveyor: Planning And Economics
Year: 2015
Type: Residential
Photographs: Peter Bennetts













































