Sovremennik Residential Building Extension | Al Studio + Front Architecture
Sovremennik Residential Building Extension, Carefully restored neo-classical facades and a new covered courtyard rooted in traditional Russian architecture is crowned by an expansive contemporary upper extension to this Moscow apartment block, which has been reimagined by London-based AI Studio. Situated in the heart of Moscow within the historical “Garden Ring” road, the building was originally purpose-built as an apartment block in the 1870s but was promptly adopted as a popular local bathing house. Since the 20th century, it has largely been utilized as an administrative office, but Vesper Moscow – the developer who purchased the building in 2016 – had the vision to return it to its original residential use.
When restoring the space, AI Studio aimed to take an “honest” approach to the redevelopment – unashamedly allowing the new extension to contrast the original neo-classical style prevalent in central Moscow. “Although the original building is not formally listed [as a historic monument], we considered it to be a perfect example of classic Moscow architecture,” said the principal of AI Studio, Anton Khmelnitsky. “So, our approach was to sensitively restore the original fabric of the building, whilst designing an upper extension which provides a distinctive contemporary contrast.” The generous extension at the top of the building offers enough space for double-height penthouses within and features cladding of perforated Corten steel composite panels on the exterior.
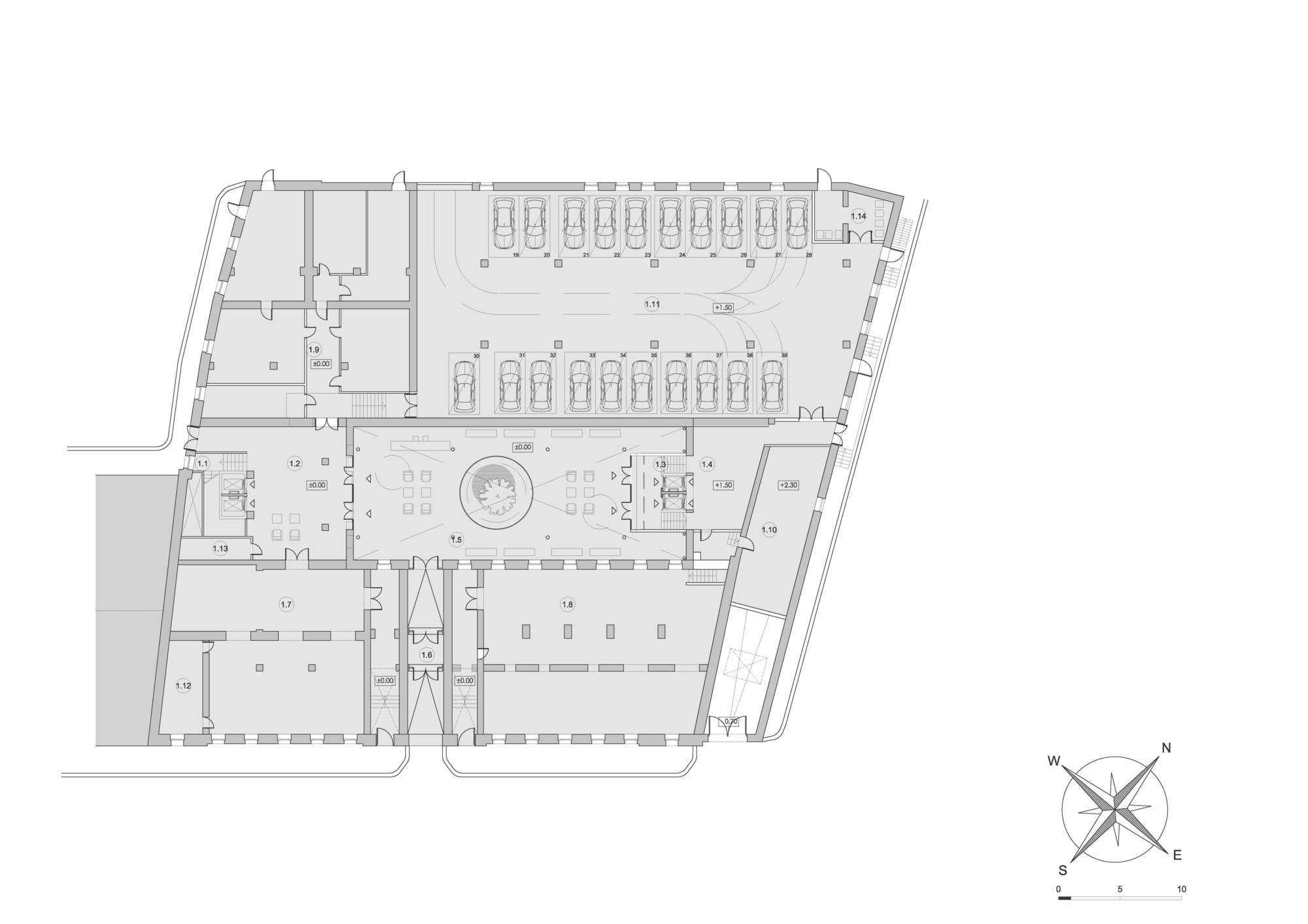
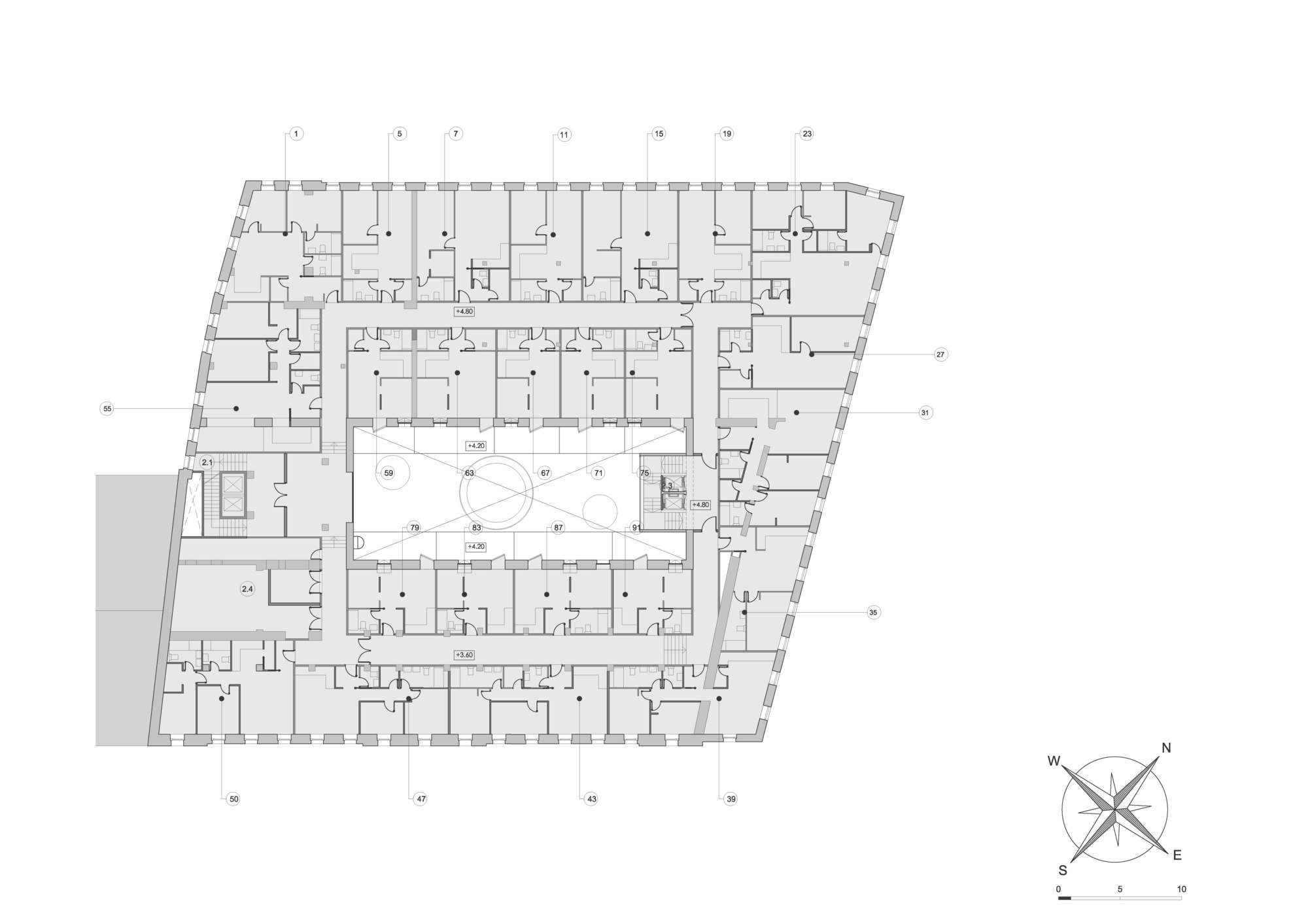
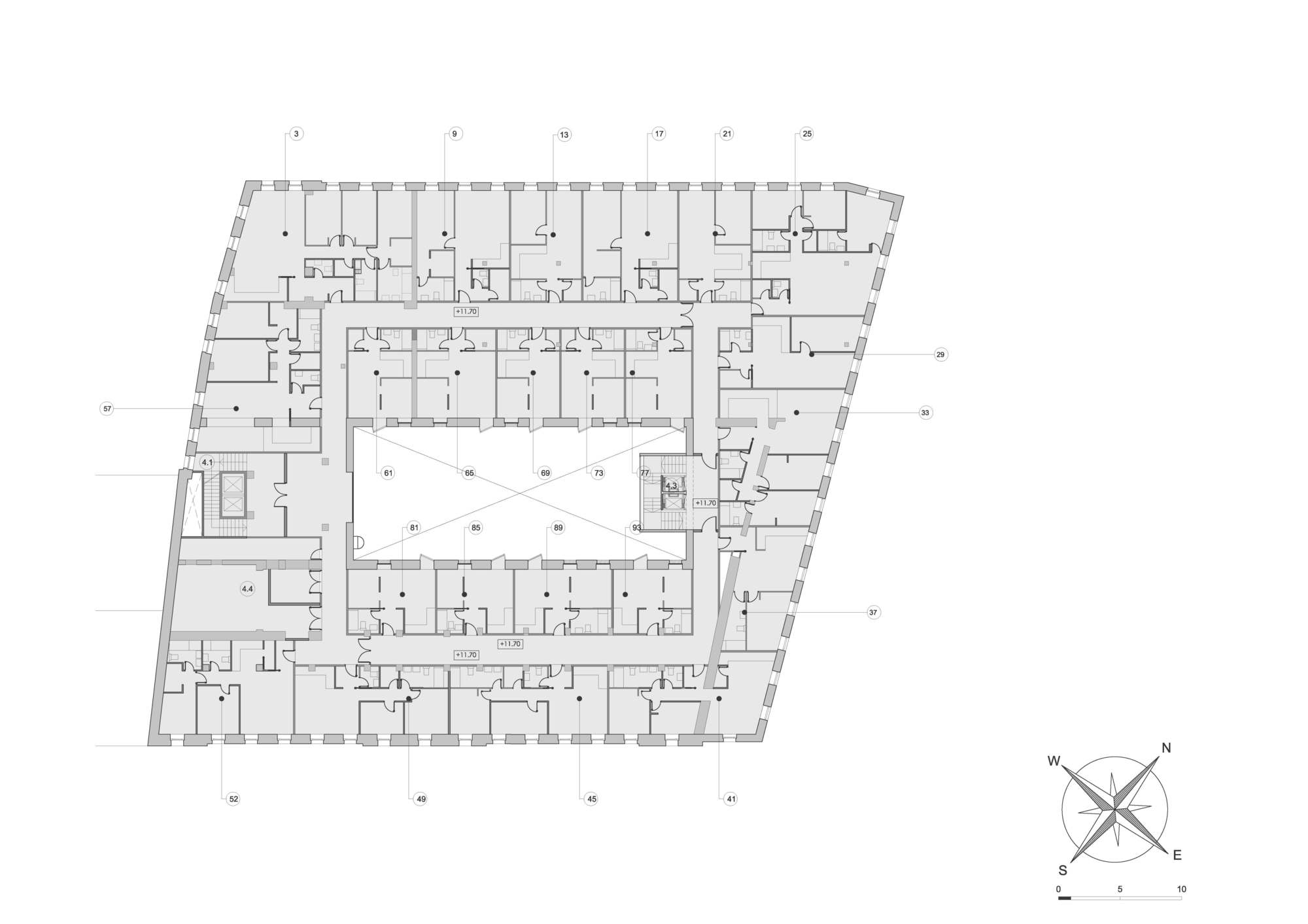
Full height glazing boasts unparalleled views of the city. Meanwhile, on the ground floor, the covered courtyard presents a reception and communal area for residents, alongside retail opportunities. This communal area is flooded with natural light from circular glass skylights, which are installed in the elevated private roof terrace directly above the courtyard, exclusively for residents’ use. The freshly extended building named Sovremennik features a collection of 75 apartments ranging in size from 32 to 146 m2 and conveniently includes two floors of parking, with space for up to 43 cars.
The Russian architectural bureau Front Architecture has created the interior design for public areas and apartments of the Sovremennik house in Moscow. The residential complex is located in the heart of old Moscow, nearby are famous theaters, which influenced the design idea – the interior is very intelligent and refers to the cultural and historical environment. Front Architecture decorated the lobby walls with corten steel panels which remind of theatre curtain folds. There are many exquisite details in the interior design – on the residential floors, Front Architecture designed the entrance doors of the apartments with decorative metal portals that visually increase the height of the doorways.
The apartment numbers on these metal frames are highlighted using laser cutting with illumination. The welcoming atmosphere of the lobby is created by a complex of thoughtful design solutions: it includes lighting, which provides several scenarios, exquisite wall decoration, carefully selected furniture in the waiting area. The apartments are designed in light colors with a predominance of smooth surfaces in combination with natural oak. The decoration is made using high-quality materials and fittings.
Project Info
Architects: Al Studio
Country: Russia, Moscow
Area: 10250 m²
Year: 2019
Photographs: Dmitriy Chebanenko, Ilya Ivanov
Manufacturers Alucobond, Grohe AG, Schüco, Villeroy & Boch: Alucobond
Client: Vesper Moscow




















































Tags: 2019Al StudioDmitriy ChebanenkoIlya IvanovMoscowRussiaSovremennik Residential Building Extension
Isabelle Laurent is a Built Projects Editor at Arch2O, recognized for her editorial insight and passion for contemporary architecture. She holds a Master’s in Architectural Theory from École Nationale Supérieure d’Architecture de Paris-Belleville. Before joining Arch2O in 2016, she worked in a Paris-based architectural office and taught as a faculty adjunct at the École Spéciale d’Architecture in Paris. Isabelle focuses on curating projects around sustainability, adaptive reuse, and urban resilience. With a background in design and communication, she brings clarity to complex ideas and plays a key role in shaping Arch2O’s editorial

