Sounder Inn | NEOSSPACE
Located in the valley near Siming Lake in Yuyao, Sounder Inn is a peaceful retreat that offers a serene escape from the busy urban life. Adjacent to the ancient village of Guanpei, steeped in history dating back to the Xining period of the Northern Song Dynasty, the property is surrounded by mountains and rivers, and enveloped by bamboo forests. The ancient village is nestled against the mountains, creating a seamless fusion of natural beauty and cultural richness. Yuyao is renowned as a cradle of talents and boasts a profound cultural heritage. The design of Sounder Inn aims to create a rural sanctuary that provides a poetic abode, connecting guests with nature.
The project innovatively adopts local eco-friendly materials and old items, showcasing regional characteristics while weaving in the area’s abundant cultural legacy, embodying homage and continuity for traditional culture. The abundant use of local stone infuses a natural allure into the project. Delicately dried bamboo poles are artfully strung together to create a decorative canopy beneath the roof; bamboo slices are repurposed as stair railings and spatial partitions. Local bamboo is transformed into bamboo wall lamps, imbuing the space with an organic ambiance. Handwoven elements like rattan and grass weaving are applied to the roof, furniture, lighting fixtures, and partitions, elevating the tactile essence of the space
The top surface of the tea room and guest rooms feature undulating rice paper hangings, evoking a layered mountainous landscape. Within the stairwell, hand-made rice paper lanterns seamlessly blend the antique allure of lanterns with modern sculptural forms. The rice paper ceiling and artisanal lamps resonate with the enduring local Confucian cultural heritage. Recycled antique elements such as the entrance door, steps, bedside pillar bases, long tables, and decorative bamboo fans not only enrich the cultural tapestry but also embody a deep-seated reverence for nature and history.
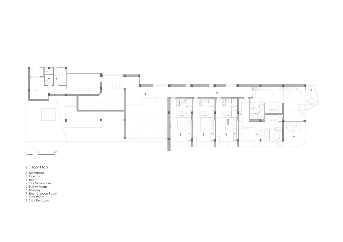
The building gracefully unfolds along the mountain forest, meandering beside the stream, with guest rooms arranged linearly, each offering picturesque views of the stream and mountains. The public area integrates spaces of varying scales in an interconnected manner to cater to diverse needs. The arc-roofed hall serves as the heart of the space, housing multiple functions like a bar, coffee bar, and leisure book bar, catering to social interactions. The skylight allows guests to experience the interplay of light and shadow cast by the stream and bamboo forest at different times.
Guest rooms are positioned near the entrance, with wardrobes, washbasins, and bathrooms arranged in a semi-enclosed garden style, fostering an expansive view while optimizing space efficiency. By harnessing local natural resources and reimagining local materials and antique elements, the project has created a distinctive rural abode, offering urban denizens a sanctuary to reconnect with nature and rejuvenate their spirits.
Project Info:
-
Architects: NEOSSPACE
- Country: Yuyao, China
- Area: 849 m²
- Year: 2023
-
Photographs: Bian Lin
-
Manufacturers: SHMABEI
-
Lead Architects: Xi Shi































