Sonnesgade 11
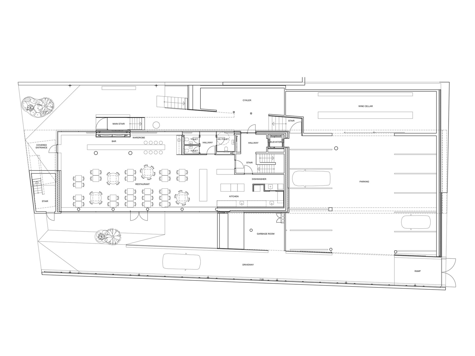
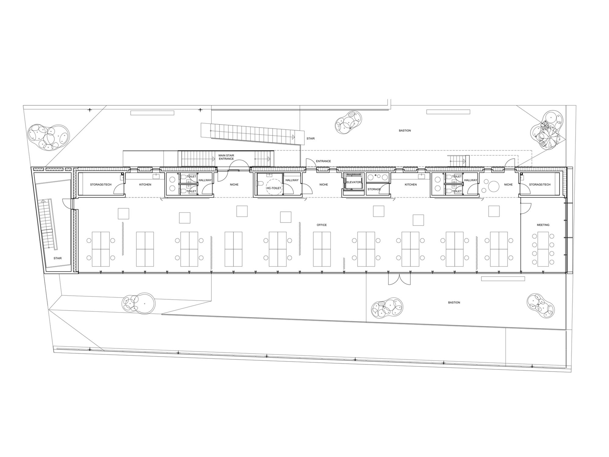
The starting point of the design of the new office building is an ambition to reuse, rethink spatial and material quality on the former industrial site. The new building is directly grounded in the original existing underground industrial constructions, which acts as the building’s foundation. The building consists of 3 layers of 50 meters of office floors supported by a core wall. Underneath the floors were the terrain defines an opening a restaurant is placed towards the street.
In the slope, a parking garage and wine retailer is located. The building is formed with a high degree of flexibility and interaction between the floors, which enhances meeting situations between different users of the building. The individual floors are designed as open, flexible working environments with all service functions integrated as a single architectural element in the eastern facade of the building. Around the building, a sloped asphalt terrain is forming the outdoor areas for terraces, bikes, and gardens. The building’s expression is the collage of elements reflecting the surroundings with 6 facades creating a dialogue with the mixed vague context. The project itself is a 1:1 realization of the architecture and challenges of the office SLETH as both landowners, developers, and architects – based on the potential of Sonnesgade.
Project Info
Architects: SLETH architects
Location: Aarhus C, Denmark
Partners in Charge: Søren Leth, Rasmus Therkildsen
Area: 2800.0 m2
Year: 2016
Type: Office Building
Photographs: Rasmus Hjortshøj / C O A S T





























Hadeer Shahin is the Built Projects Editor at Arch2O, where she curates innovative architectural works from around the globe. With a background in architecture from Alexandria University and hands-on experience in design and digital content, she bridges the gap between technical precision and editorial vision. Hadeer’s keen eye for spatial storytelling and her passion for contemporary design trends make her a vital contributor to Arch2O’s mission of highlighting excellence in the built environment.
