Solaz Los Cabos Hotel | Sordo Madaleno Arquitectos
Solaz Los Cabos Hotel
Designed by Sordo Madaleno Arquitectos, The extraordinary natural surroundings of the peninsula of Baja California with its semi-desert landscape in shades of ocher, contrasting with the deep blue of the Sea of Cortes, provides an ideal selected context for the construction of a new landmark hotel for the country.
Celebrating the integration between landscape, architecture, and art, Solaz Los Cbaos covers a total area of 9.8 hectares along a section of the coast that includes unique topographical formations. The architectural concept was guided by this need for the proper integration of the construction into its surroundings, achieved through the use of organic forms that refer to the movement of the waves, producing an attractive series of volumes that are adapted to the location. The selection of materials, planting and construction methods reinforce this concept of integration and were meticulously studied to ensure they would suit this beautiful site.
The services provided by the development are designed to offer a range of accommodation and hospitality options to visitors from both Mexico and abroad. It comprises hotel, apartments, restaurants, spa, amenities, site museum, open plazas and more.
As a result of the naturally steep topography of the site, which climbs from sea level towards the north, it was decided to form three large curved terraces running east-west, and to place the hotel rooms at the western end. The circulation between these terraces is via narrow cuttings that also operate as dividing passageways with dense planting to separate the different functions, generating greater privacy.
Given the slope, each terrace rises above the other in a stepped fashion, with south-facing façades meaning that all the spaces enjoy spectacular views of the sea. The amenities including swimming pools, beach club, sun loungers are located on the lowest level, by the beach.
The access level is located within the principal building. This construction, which displays great plasticity of form and organic movement, resembles three blocks stacked on top of each other. Each block contains two floors to give a total of six and contains hotel rooms inside. The volumetry of this building combines the same concept of integration into the surroundings while its movement permits the generation of better views, affording the development with a unique tectonic character.
The apartments operated by the hotel are three volumes of square proportions distributed along the length of the south side of the site.
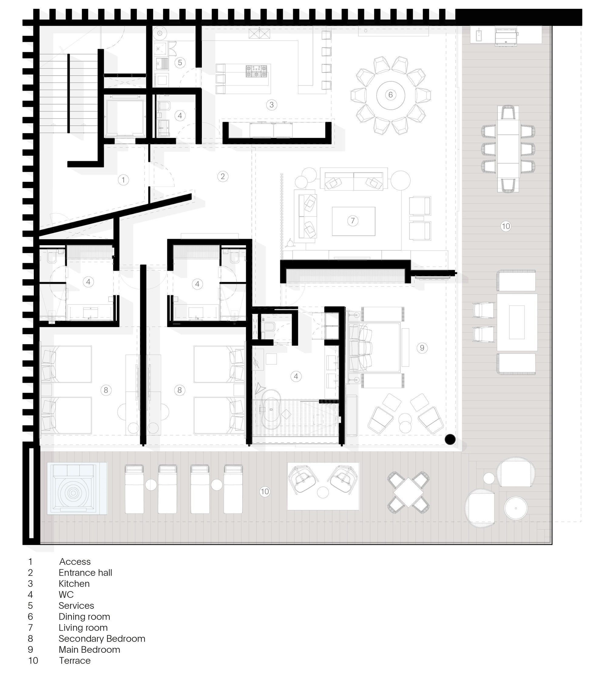
The different typologies of this hotel’s suites and rooms emerge from the topography that merges harmoniously with the sandy beach. To reach them, a courtyard-lobby serves as both entryway and bridge between the topographic undulations of the exterior and the welcoming geometry of the interior.
A warm atmosphere created using tropical wood, textiles with fresh, Mexican colors, and lines marked out in stone generate a distinctive contemporary aesthetic in every room.
One of the conceptual pillars of Solaz Los Cabos is the artistic intervention in many of the spaces. Here, Mexican artist Cesar López Negrete creates and exhibits over 400 works of art that commemorate the life and culture of Baja California in ancient times. His artistic vision complements each detail of the construction, at both the micro level (hotel rooms) and the macro level (open plazas and common spaces), in the appropriation of the space and the integration with the site.
The presence of Solaz in Los Cabos is notable thanks to the way the architecture is woven into an integrated landscape project, created in partnership with Gabayet 101 Paisaje. The palette of plants was complemented with further native species according to the landscape design and the intention of each space. In this way, the architecture and landscaping harmonize with the external walkways, passages, outdoor amenities, lobbies, restaurants, green roofs on the volumes that descend to the sea, and so on. These landscaped areas seek to imitate the local vegetation and its unique natural setting. The presence of Solaz in Los Cabos is notable thanks to the way the architecture is woven into an integrated landscape project, created in partnership with Gabayet 101 Paisaje. The palette of plants was complemented with further native species according to the landscape design and the intention of each space. In this way, the architecture and landscaping harmonize with the external walkways, passages, outdoor amenities, lobbies, restaurants, green roofs on the volumes that descend to the sea, and so on. These landscaped areas seek to imitate the local vegetation and its unique natural setting.
Project Info:
Architects: Sordo Madaleno Arquitectos
Location: San José del Cabo, B.C.S., Mexico
Lead Architect: Javier Sordo Madaleno Bringas
Area: 150000.0 m2
Project Year: 2018
Photographs: Rafael Gamo
Manufacturers: Tektil
Project Name:Â Solaz Los Cabos Hotel
















































