Designed by Bigoni Mortemard, Clichy Avenue, at the corner of Bernard Buffet Street, the architects, Stéphane Bigoni and Antoine Mortemard recently completed a social housing project that points to one of the entrances of the Martin Luther King Park. A delicate, white varnished aluminum cloak, made of perforated sliding curtains animates the south-east facade and the bow facing the park. Its bending geometry addresses three issues. It counteracts the linear aspect of the plot on its longest side, perceived as not suitable to satisfy conventional proportions. Its bending shape also accommodates loggias.
Their privacy can be adjusted by the dwellers, depending on the proportions of the aluminum curtains, whether it be stored on the side of the loggia or deployed. Finally, the folding shape of the facade enhances sidelong views. Each unit’s living room thereby enjoys distant, south oriented views over the park and beyond toward the Eiffel Tower. Access to the apartments is provided via a few gangways from which the edges enhance the view over the park. These passageways overlook a green backyard installed above the first floor and their layout allows for transition between apartments. Among the units, 46 enjoy a double or triple orientation.
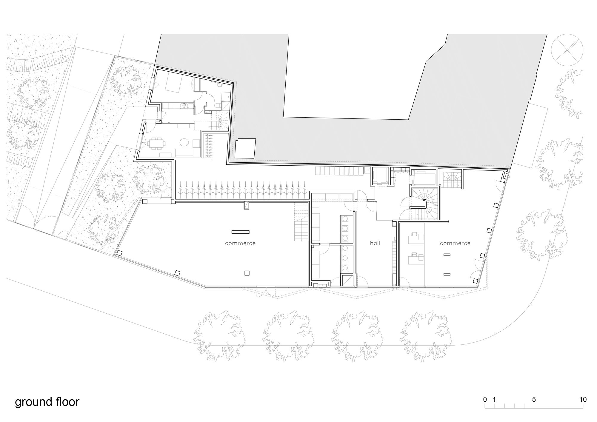
The dwellings include a hall – entry lock or loggia – and offer traditional comfort with a night section layout. Ranging from the studio to the 3 bedroom apartment, the kitchens are open plan. However, their distinct location among the unit allows the dwellers to isolate these elements. The living rooms serve as ‘hubs’ for the apartments and face the south and west facades, extended by large and practical outdoor spaces. Implanted between the two retails at the corners, the lobby boasts a kinetic art installation commissioned to Nonotak Studio.
Project Info:
Architects: Bigoni Mortemard
Location: France
Area: 3679.0 m²
Year: 2018
Photographs: Joachim Bakary, Jean-Marc Bichat
Manufacturers: Forbo Flooring Systems, Jansen, Otis, ARBOR FRANCE
Project Name: Social Housing in Paris


























