Shikor Country House | Spatial Architects
Shikor Country House
Shikor is a journey towards the core of rural life in response to the call from own roots. It’s an opportunity to discover the treasures of ordinary rural life, possessing the baton of successorship as well as celebrating the colors of nature. The story of this family is not an exception to any Bengali family whose predecessors were farmers. Successors gradually settled in urban areas. Mr. & Mrs. Khan (generation-2), both school teachers, are living their retired life in Chattogram city.

Photography © Asif Salman
Khan left his father’s (generation-1) homestead for his profession and lived mostly in school campuses. After marriage he separated his part of father’s homestead and made own his village house jointly with one of his elder brothers. though he never lived there permanently, he always maintained a strong connection with the village.
That connection was fading down gradually. Children (generation-3) have grown up and live in cities. Grandchildren (generation-4, age 2-13) are more interested to visit resorts or tourist places rather going to village house during vacations.
The old house was itself counting its last days as it’s made of mud (1983) & faced major cyclones in its lifetime. In addition lack of modern facilities and poor communication system resulted in irregular and short visit to village. Finally Mr. & Mrs. Khan initiated to build a new house. The intent was to create scope for children & grandchildren to come & enjoy their own quality time during vacations as well as pass the baton of succession. Here the journey begins.

Photography © Asif Salman
Climate is not unlike other part of Bangladesh. South-east monsoon air is accompanied by western coastal breeze in addition. Air is fresh and salt-free. The west offers picturesque panorama of the horizon through agricultural lands. colors of twilight can be enjoyed till last aura.
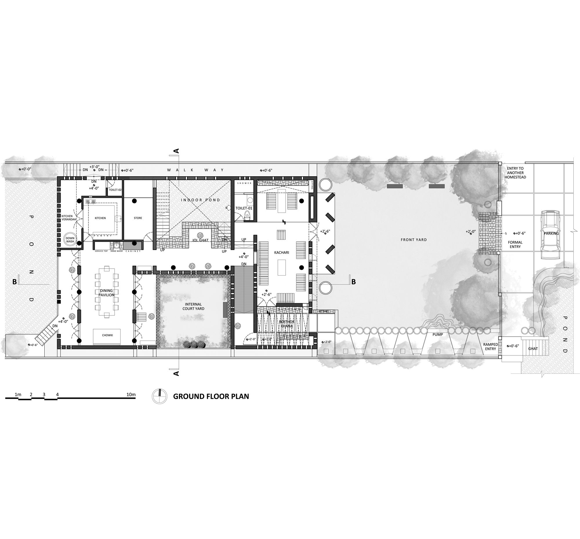
In an avenue alike site furthermore guided by the alignments of neighboring homesteads, the volume of the functions itself takes a brick shape and is nullified in mid-south to south-east to allow breezes from all three directions (south, east & west). Kachari (guest lounge) is allocated in an isolated front part. Dining lounge in the rear is perceived as a pavilion and is exposed to nature through poschati (projected) veranda.

Photography © Asif Salman
Upper floor layout is inspired by resort’s plans in contrast to traditional layout in ground floor. In order to maintain a balance between social privacy and exterior exposures, bedrooms (gudam) are allocated in upper level. An indoor pond along with screen walls and skylights recreated the ambience inside of a traditional jolghat and invigorated the cavaedium of the house.
Location & context is the essence of the value of the house. The project showcases the handcrafted workmanship of local artisans. It utilizes all the natural resources to the maximum too. Perforated peripheral walls & skylights convert each & every corner of the house to a live museum of light & shadow. experiences of spaces vary from dawn to dusk, summer to winter.

Photography © Asif Salman
Project Info:
Architects: Spatial Architects
Location:Â Bangladesh
Area: 446 m²
Project Year: 2019
Photographs: Asif Salman
Manufacturers:  AutoDesk, Lumion, Adobe, BERZER, BSRM, Fresh, Trimble Navigation



























