Share House Funabashi | Kasa Architects

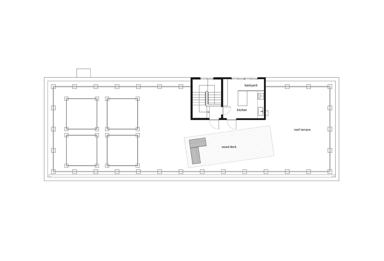
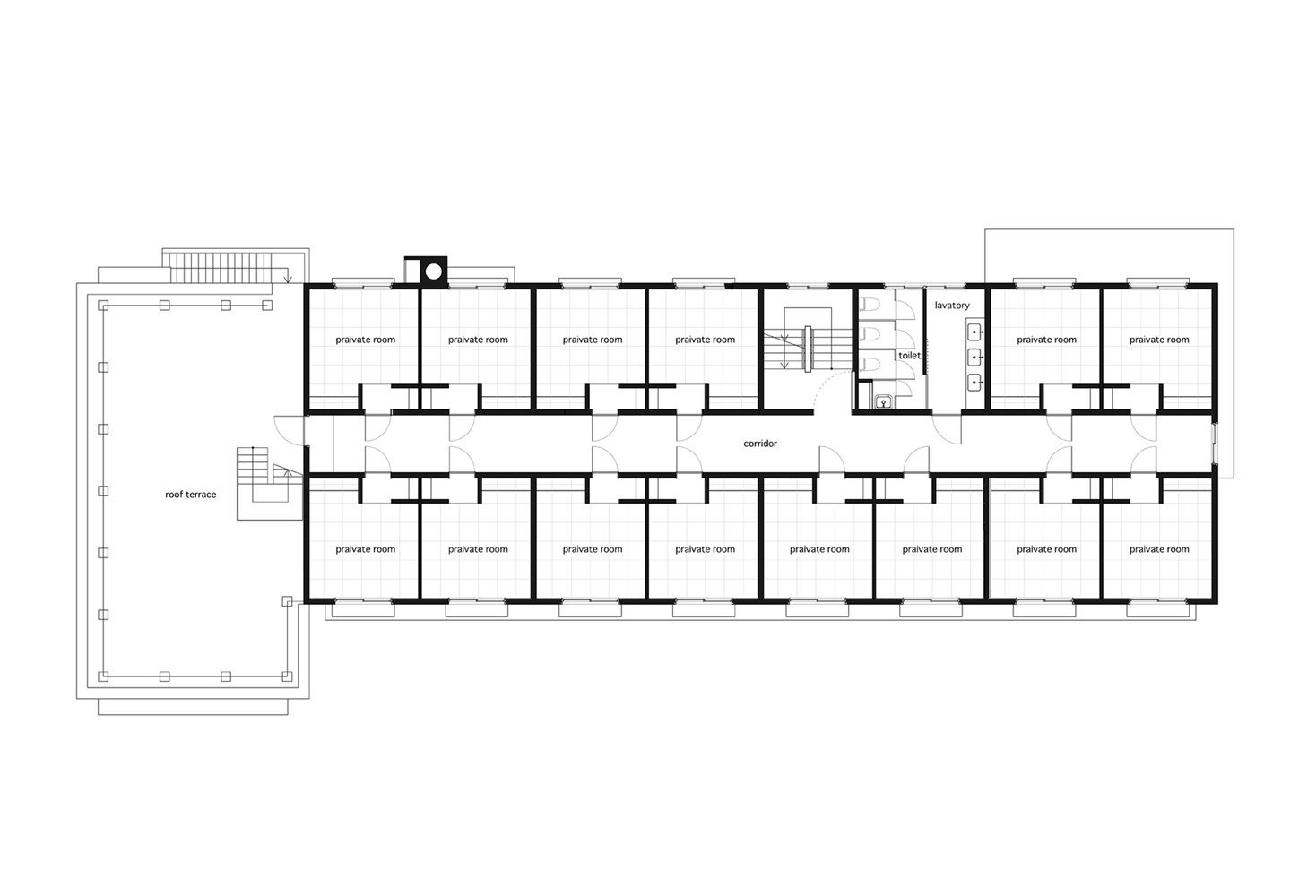
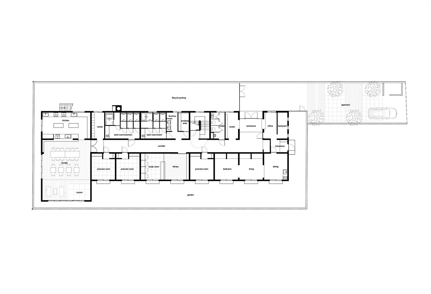
Share House Funabashi by Kasa Architects: Mall has spread to areas around a plan, the surrounding environment is a small dense region as the scale of the city and 2.0m ~ 4.0m road width.

Share House Funabashi

© Ikunori Yamamoto

In the scale of this city, it is considered that it will lead to smooth the relationship with the city while using the scale of the city, this building large in scale of urban height, frontage, and depth. First, in order to approach part to enlarge it from the scale of the city and width 6.0m, you have to divide the relationship with the city, the passage portion of about 3.0m by cunning placement planting on both sides, the scale of the city retracted to flow line up to a building, and urban.

Share House Funabashi

© Ikunori Yamamoto

While connected to smooth the relationship, planting also plays a role in the buffer zone of the city. By emphasizing the shape of the existing building volume is horizontally divided by the eaves and close to the scale of the city building volume, facade design is a design that the building itself is snuggled up in the town in this region scale of the city is small. In contrast to various natural materials of wood, etc. to finish, share House of conventional type and An often to finish décor minerals, common areas, proprietary parts, design a lot of people feel like the nostalgia somewhere was designed to think that it becomes a comfortable space that can be and, to send the daily life people who inhabit while feeling the comfort.

Share House Funabashi

© Ikunori Yamamoto

Project Info:
Architects: Kasa Architects
Location: FunabashiJapan
Architect in Charge: Shin Kasakake
Area: 11285.0 sqm
Photographs: Ikunori Yamamoto
Construction frem: dainichi.inc
Furniture: studio anagram.inc
Site Area: 830.48 sqm

Shin Kasakake
Arch2O.com
Logo
Send this to a friend