Shaanxi Culture and Art Museum (1st Phase) | TJAD Atelier L+
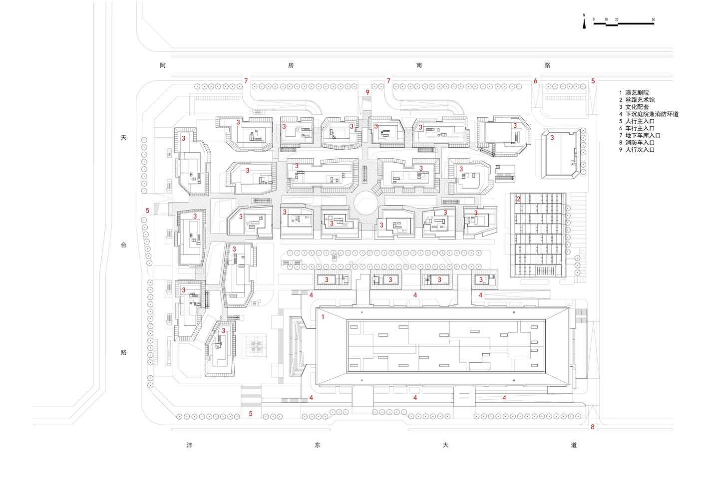
Shaanxi Culture and Art Museum is located in Xi’an’s Xixian New Area, east of the West Third Ring Road and west of the Epang Palace ruins. The planned site area is 94,000 square meters, with a total construction area of 135,000 square meters. The project primarily includes a performing arts theater, a Silk Road Art Museum, and comprehensive cultural facilities
The first phase of the project is the performing arts theater, with an overall length of 220 meters, a width of 66 meters, and a construction area of 32,000 square meters. It regularly stages the epic immersive performance “Majestic Qin”, bringing together teams in architectural design, cultural creativity, stage and set design, and intelligent technology. The project establishes an innovative cultural landmark in Xi’an and has been included in Shaanxi Province’s key cultural tourism projects and major cultural industry projects under the 14th Five-Year Plan. Through the innovative “culture + technology + tourism” model, it is expected to drive regional development and the upgrade of the cultural and tourism industry. Upon completion, it was selected as one of Xi’an’s top ten new cultural landmarks.
The project is situated in a historically and culturally significant environment, within the construction control zone defined by the national heritage authorities for the front hall of the Epang Palace ruins. Surrounding the site are important cultural relics such as Epang Palace and Shanglin Yuan. The site has height restrictions of 8 meters in first-class construction control zones and 18 meters in second-class zones.
The design actively responds to the unique historical context and strict external constraints. The overall building complex adopts a “sunken and recessed” design strategy, with the site lowered by 1.5 meters to create a calm, contained atmosphere and establish the spatial tone. The overall master plan draws inspiration from the “Li-Fang prototype” layout of the Qin and Han dynasties, responding to multiple directions of urban space and pedestrian flows. Intersecting streets and alleys form the framework, with public spaces arranged between the large-scale performing arts theater, art museum, and ancillary buildings. Multi-level plazas, gardens, terraces, and ramps serve as core organizational elements of the public space system, creating a layered and rhythmic pedestrian network.
The first-phase performing arts theater seeks continuity, contrast, and dialogue with the historical and cultural context, exploring the distinctive presence of contemporary architecture within such settings. The theater is the largest building, located at the southeast corner of the site—the farthest point from the ruins, within the 18-meter height-restricted zone. The stage pit is sunken 5–8 meters. The sunken mass draws inspiration from Qin-era rammed-earth foundations, tightly integrating the building with the site as if it naturally emerges from the ground. The rough-textured concrete cladding, with layered treatment and horizontal lines, emphasizes the horizontal extension of the base. The upper structure and roof feature fully transparent glass façades and matte semi-reflective aluminum roofs. Folded ultra-clear glass panels and construction techniques create a light and contemporary façade. Internally, the cubic theater form is clearly expressed and combined with massive cultural-themed reliefs, highlighting both historical weight and contemporary lightness.
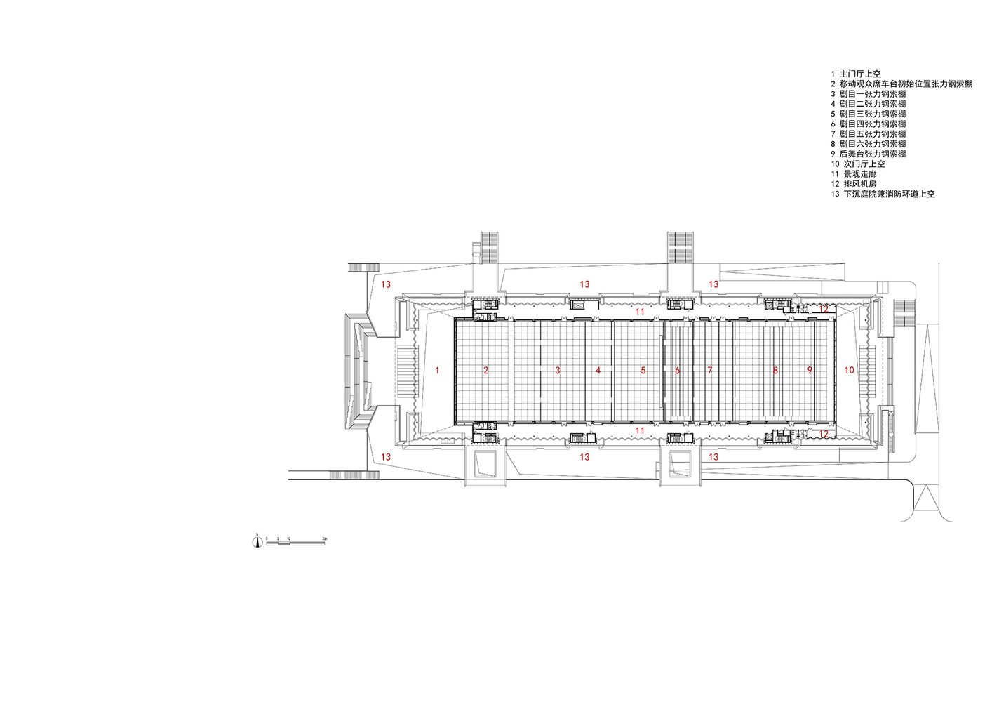
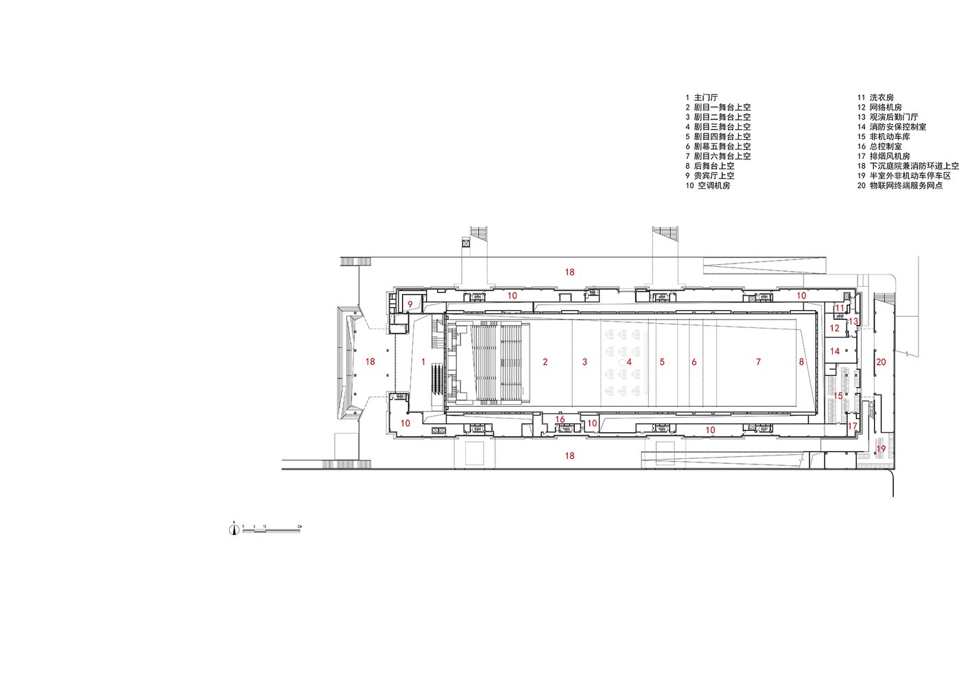
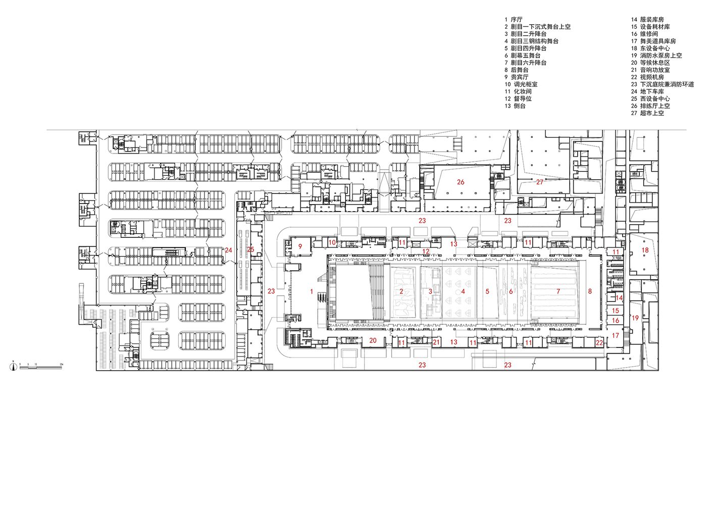
The design, construction, and rehearsal of the performing arts theater were carried out simultaneously. The architectural team worked closely with renowned stage director George Tsypin’s team to create a 160-meter-long, 40-meter-wide integrated indoor space for movable seating and stage, with 1,500 flexible seats. Combined with a movable lift stage and intelligent lighting, sound, and multimedia technology, the design creates a panoramic immersive performance space. This approach overturns the traditional fixed-seat theater model, breaking the conventional boundary between stage and audience, forming a unique new paradigm of the “super theater.”
Around the main performance space, multi-level lobbies, lounges, cafés, and cultural-creative spaces are arranged, while actor and service circulation routes extend vertically around and above the main theater. The enormous steel-framed canopy, internal lower areas, and surrounding corridors form actor spaces. The movable seating and panoramic stage posed unique design and fire-safety challenges, requiring innovative solutions.
The theater presents a six-act performance, featuring pioneering moving seating, multi-space integrated theater design, and immersive multimedia audio-visual effects. This makes it the world’s first moving high-tech theater and the largest immersive super theater, earning a Guinness World Record for the largest theater stage.
Project info:
Architects: TJAD Atelier L+
Country: China, Xi’An
Area: 90440 m²
Year: 2024
Photographs: Schran Image
Lead Architect: Li Linxue
Architectural Design: Li Linxue, Zhou Kaifeng, Liu Yang, Jiang Yongqian, Ye Xincheng, Shan Yunxiang, Wang Yanwen, Jiao Yan, Guo Ganli, Ni Run’er, Li Lan, Dong Zhihui, Wu Yumei, Zhang Qi
Project Leaders: Li Linxue, Zhou Kaifeng
Project Managers: Zhou Kaifeng, Shen Weiyu
Structural Design: Yu Zhongjun, Wang Jianfeng, Pan Hua, Wang Zhengcheng, Yin Tengzong, Su Chenxiao
Plumbing Desig: Qin Liwei, Yin Leping
Hvac Design: Wang Xixing, Hua Li, Yang Tianyi
Electrical Design: Huang Shengyou, Zhang Shen, Zhang Wenjie, Xu Junwei
On Site Construction Design: Li Yang
Stage Visual Design: George Sipin
Performance Director: Zhou Liya, Han Zhen
Interior Design Partner: Shenzhen Jishang Construction Group Co., Ltd.
Facade Design: Huana Engineering Consulting (Beijing) Co., Ltd. & Tianhe Lianchuang Design Co., Ltd.
Green Building Design: Xi’an Muniu Energy Technology Service Co., Ltd.
Landscape Design: Shanghai Beidouxing Landscape Design Engineering Co., Ltd.
Floodlight Design: Beijing Dongfang Huamai Architectural Design Consulting Co., Ltd.
Acoustic Design: Acoustic and Theatre Specialized Design Institute of East China Architectural Design and Research Institute Co., Ltd.
Stage Machinery Design: Beijing Beitershengdi Technology Development Co., Ltd.
Stage Art And Performance Design: Shaanxi Shenscai Performance Art Co., Ltd.
Design Consultants: Qu Peiqing, Zhang Chaowen, Qu Peiqing Studio China Northwest Architectural Design and Research Institute Co., Ltd.
Clients: Shaanxi Cultural Industry (Xixian New Area) Investment Co., Ltd.
Engineering: Tongji Architectural Design (Group) Co., Ltd.
















































