Since 1947, Sejet Plant Breeding has been a leader in the breeding of modern varieties of grain. The company is located in the small town of Sejet, in Jutland, within easy reach of the rest of Denmark and the rest of Europe. It has recently put its new main entrance building into use; a building that underlines the company’s importance as a high-end biotech business that develops and refines modern varieties of grain for an international market.
“Experimental farms are considered by many to be a bit old-fashioned,” says Birger Eriksen, the CEO of Sejet Plant Breeding. “The new entrance building makes it clear that our company is not just an experimental farm. It is a modern biotech-based business with state-of-the-art laboratories, where we use the latest technologies and develop new genetics at an international level.” The stately brick buildings from 1947 have now been given a modern entrance portal. The new entrance is respectful of those buildings, complementing their robust expression with a simple, light construction that conveys the company’s modern ambitions.
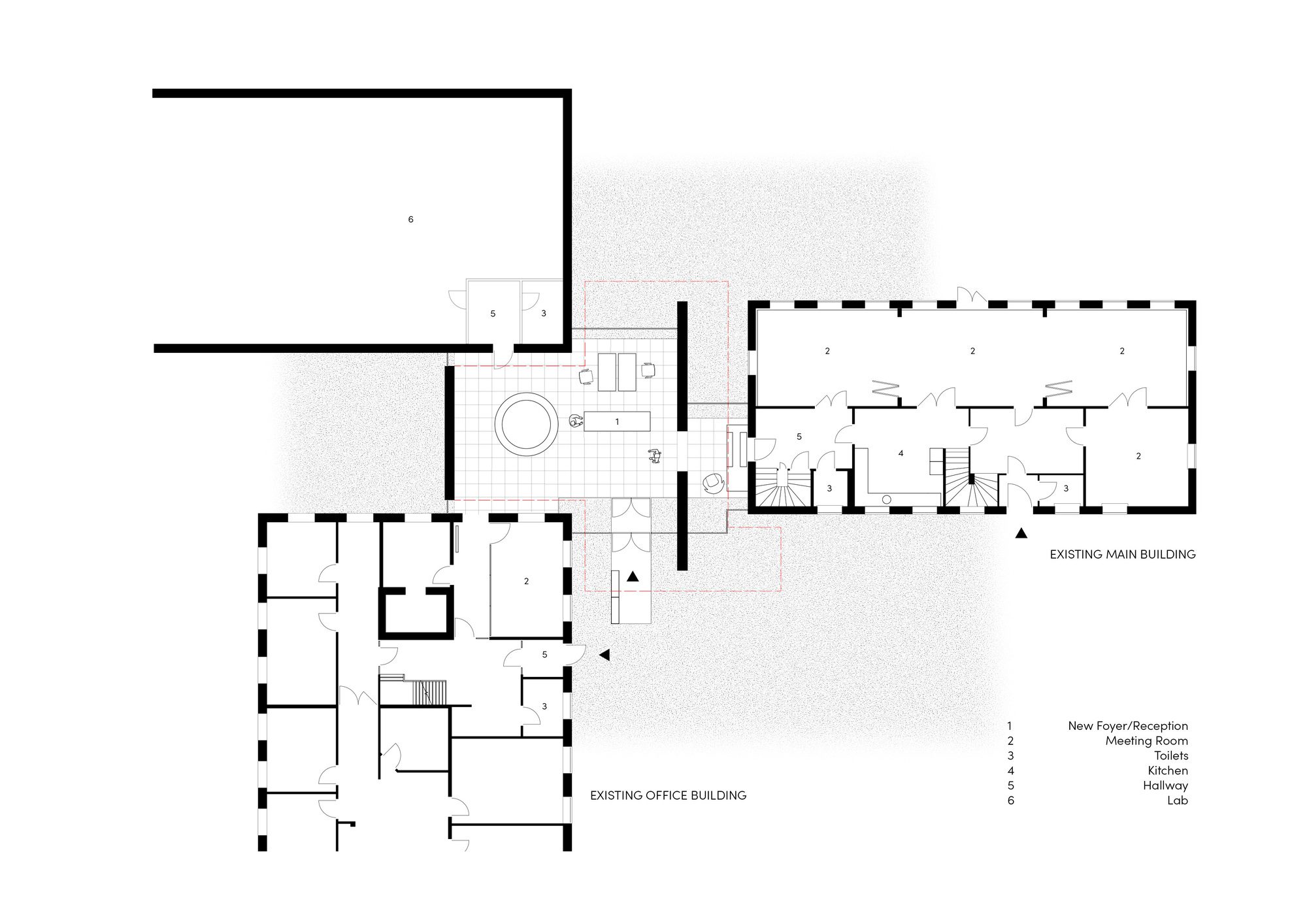
Architecture planting seeds for a modern biotech business Martin Schack, an architect and partner at GinnerupArkitekter, explains: “With great respect for the classic courtyard motif, we have designed a straightforward building that carefully binds together the older buildings by only touching them with glass. At the same time, we let the motif of the courtyard flow through the new building.” With large glass sections, round skylights, and light strips in glass which connect the new entrance with the existing buildings, the whole effect is modern and transparent, eliminating the difference between the interior and the landscape outside. It is an elegant complement to the nature that surrounds this biotech business.
Natural materials. The interior stands out with its use of beautiful natural stone on the floors, the counter, and on selected parts of the walls – all in a warm grey tone that mimics the pavement of the courtyard. In addition to natural stone, the architects chose oak as an important material with which to connect the new to the existing. The old farmhouse has been transformed into a modern part of the company, with meeting and conference facilities. Its herringbone parquet flooring has been preserved. The architects have added slatted walls and wooden panels in oak, thus continuing the parquet in vertical movements. The careful choice of highly textured and natural materials is appropriate for the company’s brand.
Danish design throughout. GinnerupArkitekter designed all the fixtures and fittings, and the green frame tables with surfaces in green linoleum. The colour green reappears in the textured paint on the walls. The precious materials and the company are further emphasized in the choice of furniture, with lamps from Louis Poulsen, curtains from Kvadrat, Wegner furniture, and water armature and handles in brass designed by Arne Jacobsen for d line.
About GinnerupArkitekter. Permanent architectural solutions, this is what GinnerupArkitekter aims for every time they build new projects. The design studio is led by four committed partners with a strong team of 20 passionate and competent employees. At the same time, GinnerupArkitekter have solid experience dating back to 1978. In addition to day-care institutions, the studio primarily designs high-quality housing projects, high-end villas, ambitious business projects, and a range of technical facilities.
Project Info
Architects: GinnerupArkitekter
Country: Denmark
Area: 234 m²
Year: 2021
Photographs: Ulrik Tofte Olesen
Manufacturers Louis Poulsen, Carl Hansen and Son, D-Line, Flügger, Kvadrat, PP Møbler, ROCKWOOL, Zurface: Louis Poulsen




















