Ripple House is a sculptural, site-specific home designed as a forever residence for a couple approaching the next stage of life. The project challenges the constraints of suburban infill by embracing a bold, contextual response that combines sculptural form, aging-in-place functionality, and sustainable performance.
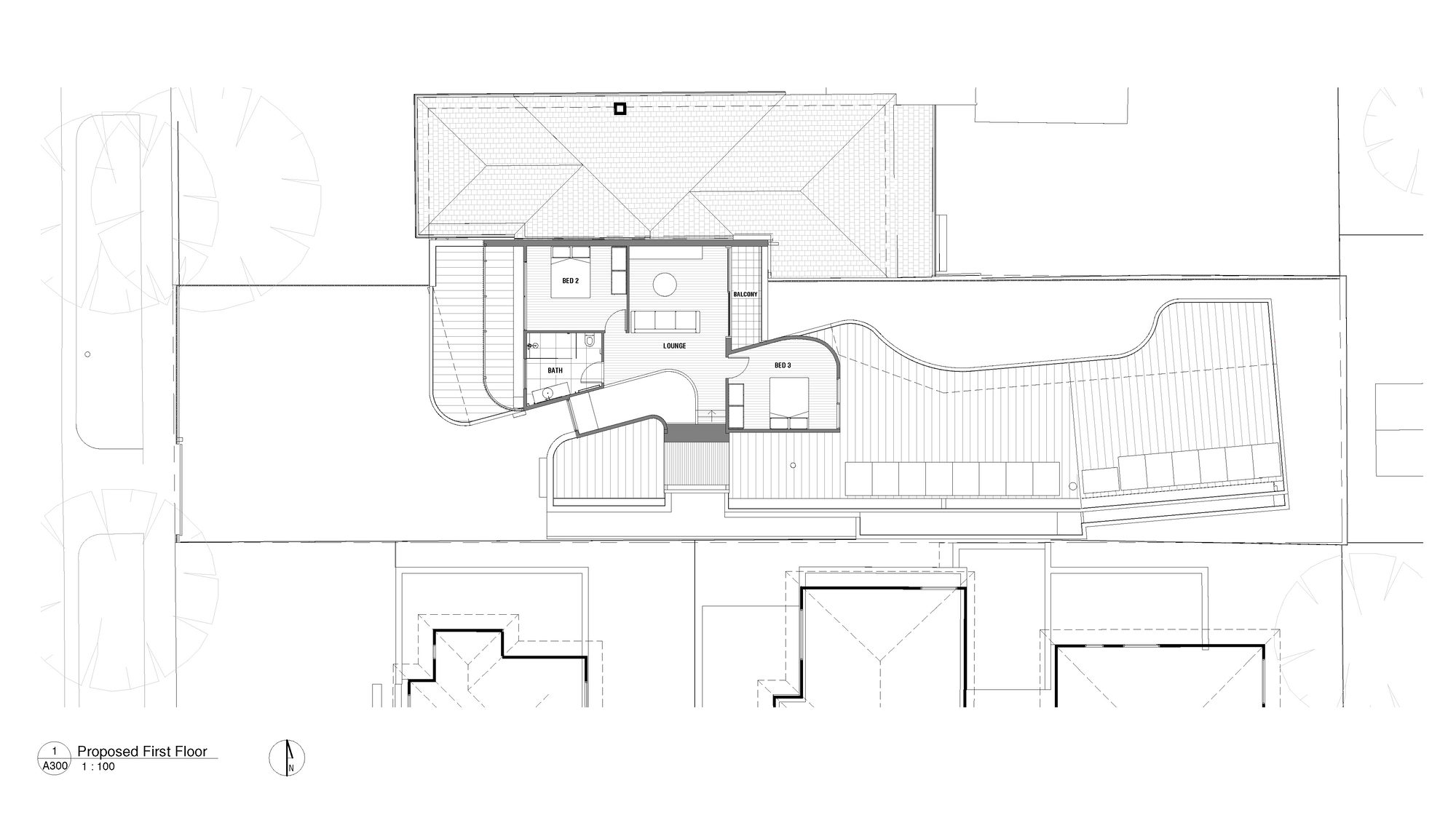
The brief called for a low-maintenance sanctuary where all essential living occurs on the ground floor, while the upper level accommodates guests or future live-in care. The architectural concept centres around a north-facing courtyard, with the plan bending gently to guide circulation and encourage visual connections between indoors and outdoors. This approach breaks from the long, narrow nature of the site, introducing moments of openness, calm, and privacy.
Construction began with the demolition of a semi-detached structure, enabling a fresh start. The key materials—light grey brick, custom orb corrugated steel, and aluminium battens—offer a balance of durability, low maintenance, and expressive form. Internally, the palette is warm and tactile, featuring concrete, stone-look tiles, and timber-look laminates. A sculptural concrete kitchen island and curved ceiling forms echo the exterior’s language, promoting fluid movement through the space.
Setbacks included planning restrictions from the original party wall, overshadowing concerns, and neighbourhood character controls. These were resolved through responsive massing, careful orientation, and strategic articulation that respected the streetscape while pushing design boundaries.
Sustainability was integral to the design. Passive solar strategies, natural cross-ventilation, double glazing, and rooftop solar panels contribute to long-term energy efficiency. The result is a home that feels grounded, adaptable, and intuitive.
Ripple is more than a residence—it’s a case for progressive urban design. It asks whether “neighbourhood character” must mean conformity, and proposes a future where beauty, functionality, and environmental responsibility coexist within the suburban fabric.
Project Info
Architects: Atlas Architects
Country: Australia, Glen Iris
Area: 303 m²
Year: 2025
Photographs: Tess Kelly Photography

























