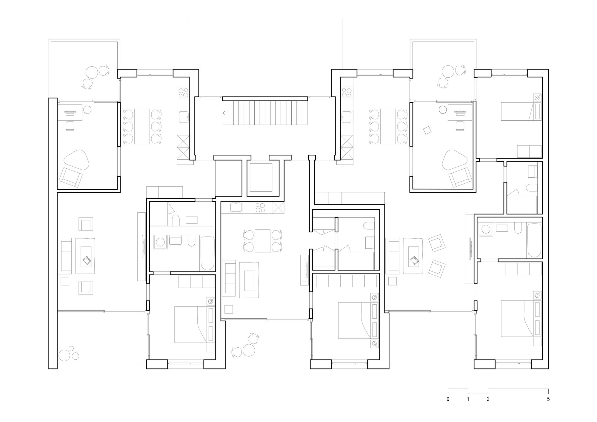
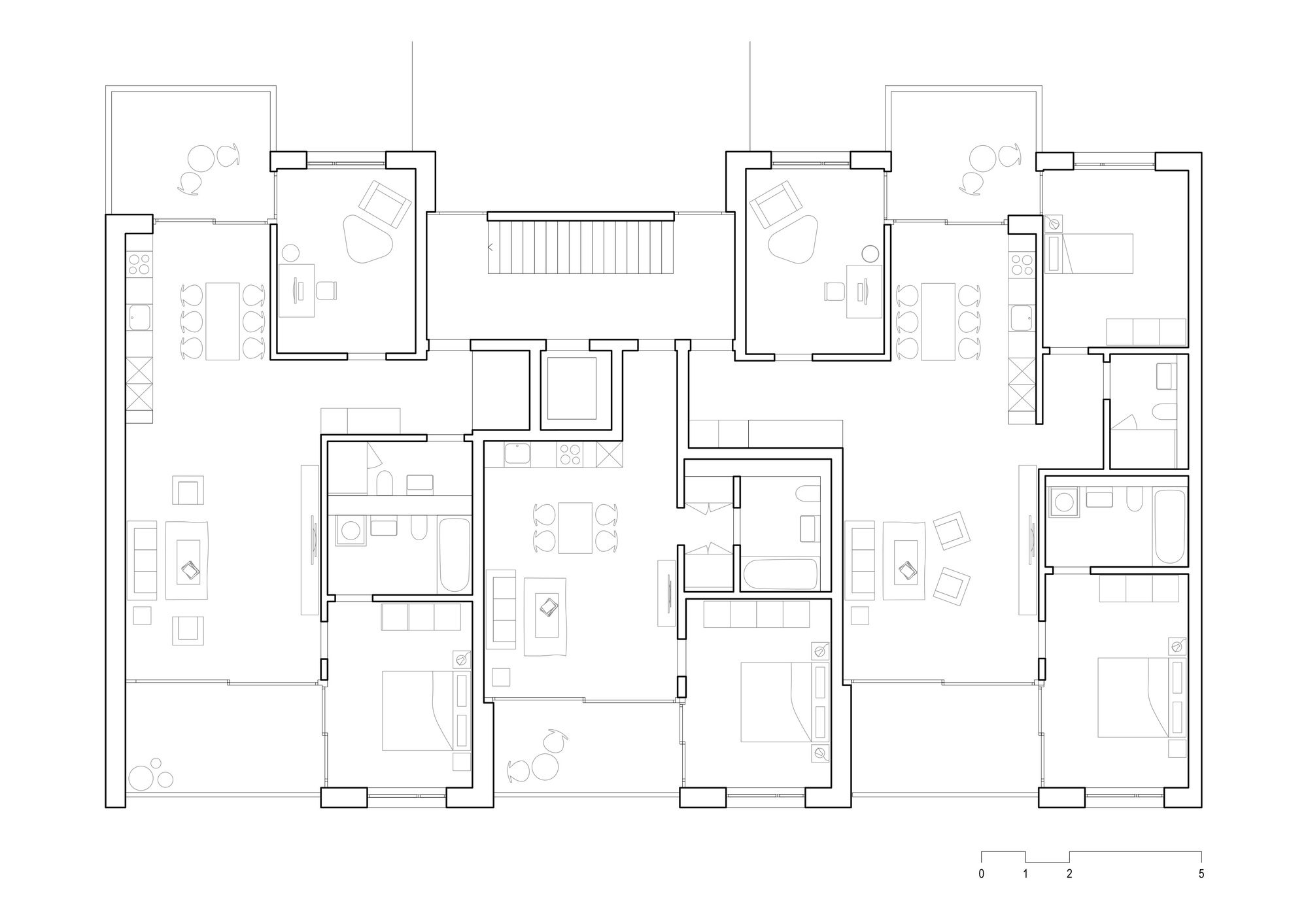
Ried B Monarch Apartments, The 217 apartments of the Ried Baufeld B «Monarch» are directly derived from the logic of the masterplan: the buildings are surrounded by the green landscape on the outer edge with a contrasting dense courtyard towards the inside of the neighborhood.
The incorporation of the buildings into the context emerges from the close inter weavement of landscape and built environment. The courtyard plays a central role in the settlement, as it serves as a space for social interaction.
The architectural elements of prefabricated brick elements serve as a strong identity and signal a high appreciation of the collective living space. In these elongated, plaza-like courtyards, a neighborly social life can unfold. The expanded courtyard structures contain laundry rooms, stroller rooms, and roof terraces for the respective residencies.
The brick volumes successfully structure the housing estate and create clear addresses. The east-west orientation allows floor plans to have continuous living areas and therefore benefit from both the wide landscape and the qualities of the neighborhood courtyard. This allows for a new, lively neighborhood–the primary goal in the implementation of the project.
Project Info
Architects: HILDEBRAND, Ruprecht Architekten
Country: Switzerland, Köniz
Area: 22200 m²
Year: 2022
Photographs: Roman Keller, Roland Juker
Building Manager: Marti Gesamtleistungen AG



















Tags: 2022HILDEBRANDKÖNizRied B Monarch ApartmentsRoland JukerRoman KellerRuprecht ArchitektenSwitzerland
Isabelle Laurent is a Built Projects Editor at Arch2O, recognized for her editorial insight and passion for contemporary architecture. She holds a Master’s in Architectural Theory from École Nationale Supérieure d’Architecture de Paris-Belleville. Before joining Arch2O in 2016, she worked in a Paris-based architectural office and taught as a faculty adjunct at the École Spéciale d’Architecture in Paris. Isabelle focuses on curating projects around sustainability, adaptive reuse, and urban resilience. With a background in design and communication, she brings clarity to complex ideas and plays a key role in shaping Arch2O’s editorial
