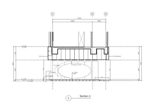
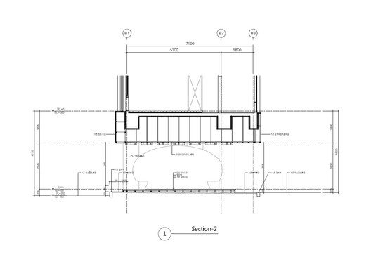
Rest Hole in the University of Seoul, design is all about improving existing spaces. In this particular case, the first floor of the dormitory in University of Seoul used to be an empty parking lot, with almost no aesthetic appeal. Dark and with large, heavy columns, the space becomes a place only for smoking and parking bikes.
In order to bring a more human appeal to the space, the architecture students from the University, in collaboration with UTAA created a solution that would completely change the space and transform it into a pleasant resting space.
The design consists in wooden, curved panels that cover the columns and blend with the wooden sitting areas. The arches create an unexpected visual component for the almost industrial building, and a series of overlapping lights and shadows, which enrich the space.
Project info:
Architects: UTAA
Country: South Korea, Seoul
Area: 180 m²
Year: 2012
Photographs: Jin Hyo-suk, Kim Yong-soon
