Red Cedar Lake House | Lundin Architects
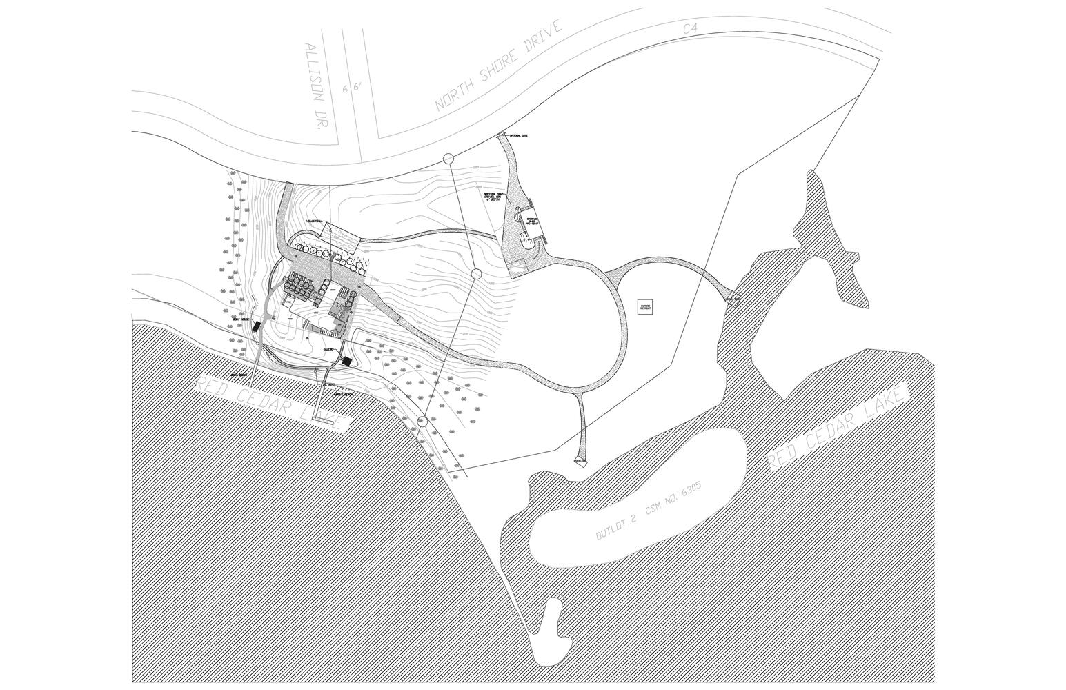
The Red Cedar Lake House is a modern architectural home fused with the natural landscape. Departing from the traditional aesthetics of the clients Cass Gilbert-designed Saint Paul home, they envisioned a contemporary, open-concept cabin harmonizing with nature. The selected site, abundant in wild beauty, offered expansive lake views and secluded inlets. The design concept divided the land into two zones: a meticulously landscaped area surrounding the house and the untouched remainder left in its natural state.
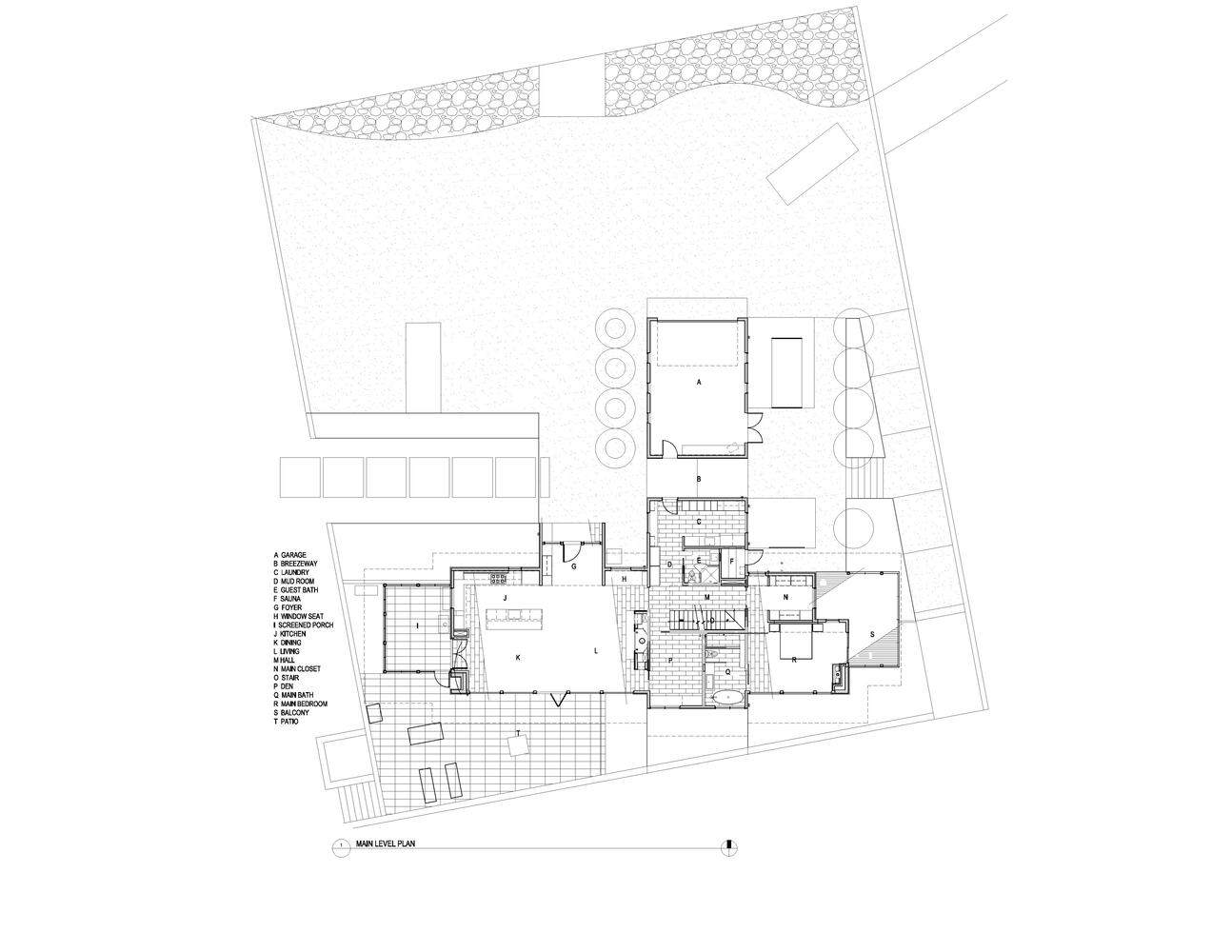
Approaching the residence, visitors encounter a prominent high point that conceals the house from the road, unveiling a trap rock courtyard. A wooden portal serves as the threshold to the home, framing a panorama of the lake. For those not entering immediately, a network of concrete lily pads leads to a path to the water’s edge, or an inviting portal to the east providing access to the private realm and an ADA accessible route to the water.
The house is organized along an east-west axis, anchored by a low masonry wall to the north, ensuring privacy within the courtyard while providing structural support to a distinctive shed roof. This architectural feature gracefully ascends with glulam beams, maximizing the connection to the lake and its expansive views. A charred wood structure, oriented along a north-south axis, effectively demarks the boundary between the public and private spaces of the home.
Inside, blackened steel and glulam tread stairs guide one upwards to a guest loft with Douglas Fir bunks, natural cork floors, and Birchbark wallcovering. Living spaces unfold to the west along the central spine of the structure, transitioning to an expansive patio and a screened porch. Here, a fireplace with a custom blackened steel hearth, bench, and wood box serves as a focal point, while the dining and kitchen areas on the western edge connect to the porch through oversized double swinging doors and a custom pass-through window to a bar on the porch.
The outdoor areas are designed to provide a spectrum of experiences. A native groundcover slope leads to a raised fire pit and a serene family beach, while a Corten-edged pathway guides visitors westward to a boathouse and a discreet water toy dock.
On the eastern flank of the residence, the primary bedroom seemingly floats above the ground, boasting a private balcony where tranquil sunrise breakfasts and sightings of local wildlife in a small clearing are a daily delight. An accessible path led to a quick dip in the lake, followed by a rejuvenating sauna and an invigorating outdoor shower before breakfast. Beyond the house and courtyard, a network of trails reveals a secluded dock tucked away in a tranquil inlet bay, a family volleyball court for spirited recreation, and a unique storage shed featuring a 12-foot-wide screen wall providing vistas of a forest glade.
Project Info:
-
Architects: Lundin Architects
- Country: United States
- Area: 3500 ft²
- Year: 2021
-
Photographs: Farm Kid Studios
-
Manufacturers: Grohe, Cambria, Cherry Forrest, Eldorado Stone, Marvin, reSAWN Timber
-
Lead Architect: Richard C Lundin
-
Structural Consultants: AM Structural Engineering
-
Civil Consultants: Elliott Design Build
-
General Contractors: Briarwood Construction































