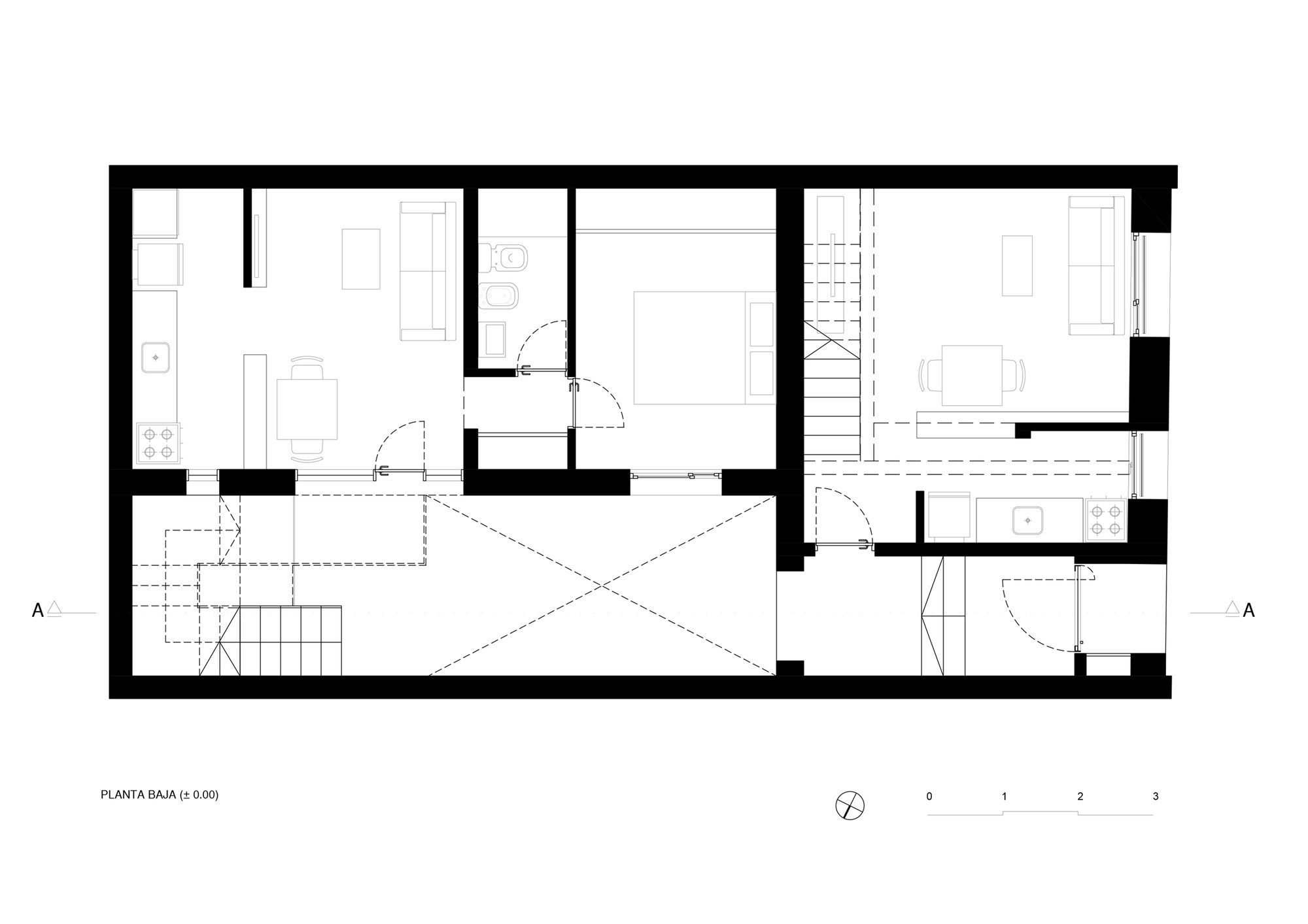
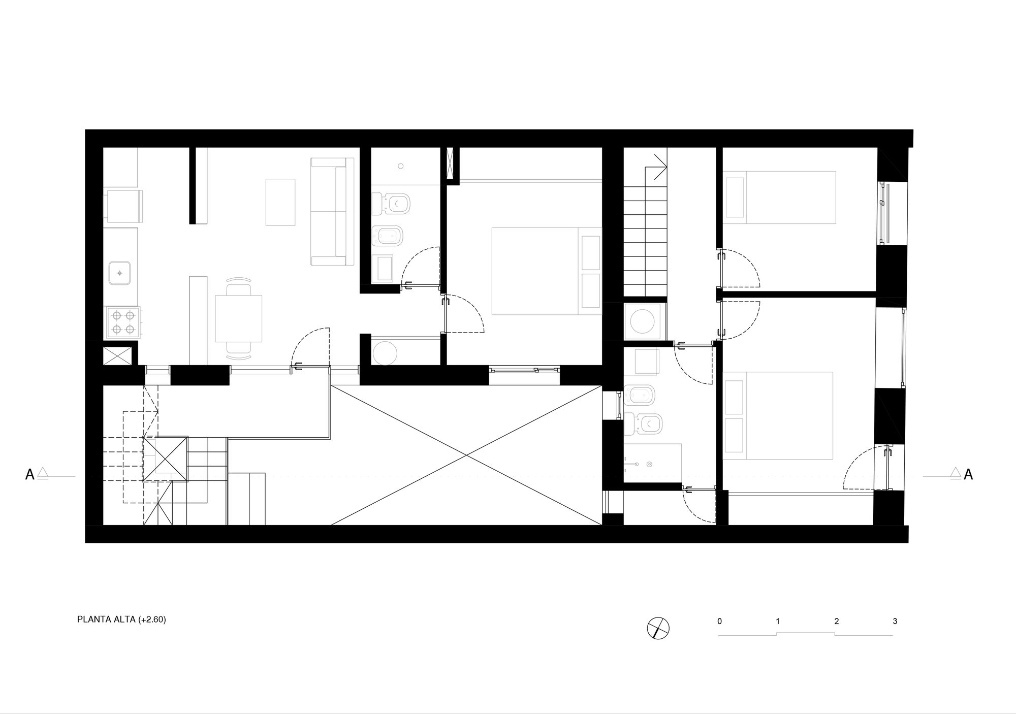
Recycling Frugoni involves the recycling of a standard house, with a structure in poor conditions, in the Cordón neighborhood of Montevideo. The building, originally a traditional courtyard house, is transformed into a small complex of three units. One of them is a two-room duplex unit facing the street while the other two are one-room flats looking at the central courtyard. The roof incorporates a pergola and is equipped with a barbecue and a tender. The aim of the project is to develop homes satisfying today’s demands, but taking advantage of the existing elements of the old house.
The patio is consolidated and secondary construction is demolished in order to provide natural light and ventilation to the interior units. The existing structural scheme is preserved as well as all the load-bearing walls. A new reinforced concrete slab is built as a mezzanine. A large part of the existing openings is used on the facade, but with a different architectural language.
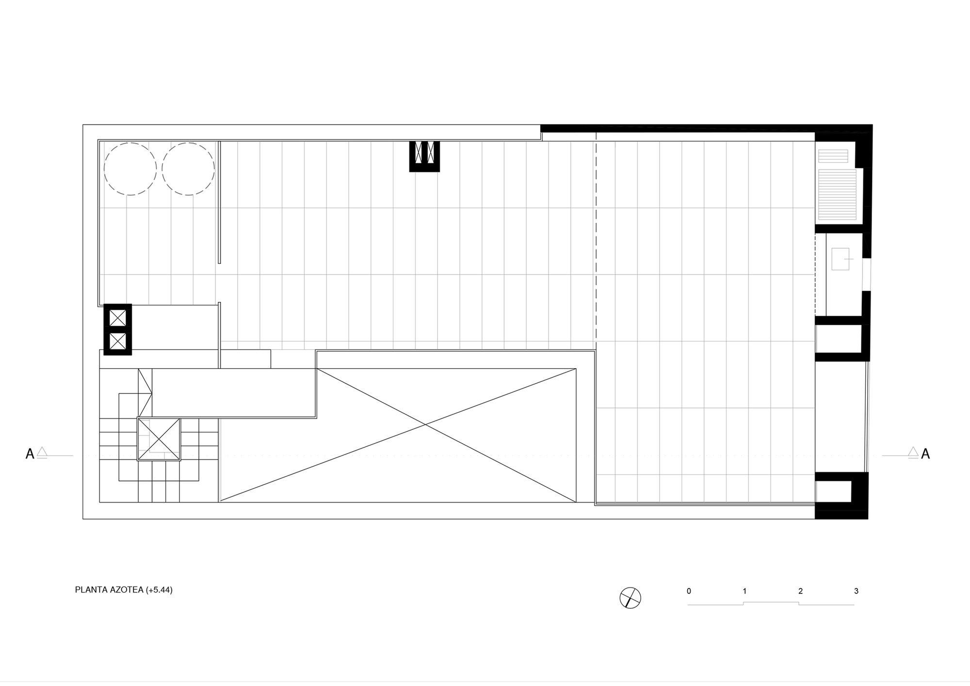
The roof is conditioned as an outdoor recreational space. It is understood as an opportunity to locate the barbecue – table – bench on the front.
This means having more elements to define the new facade. The facade is a smooth white plane with holes. The intention is to appreciate the thickness of the original wall, which is half a meter. For this, the openings are tackled in different leads. Each hole is shaped in a different way, this generates movement both in the plane of the facade and in the depth of the openings
Project Info
Architects: Estudio Cabrera
Country: Uruguay, Montevideo
Area: 200 m²
Year: 2020
Photographs: Santiago Veas
Design Team: Rafael Lussich, Leonel Rocca













Isabelle Laurent is a Built Projects Editor at Arch2O, recognized for her editorial insight and passion for contemporary architecture. She holds a Master’s in Architectural Theory from École Nationale Supérieure d’Architecture de Paris-Belleville. Before joining Arch2O in 2016, she worked in a Paris-based architectural office and taught as a faculty adjunct at the École Spéciale d’Architecture in Paris. Isabelle focuses on curating projects around sustainability, adaptive reuse, and urban resilience. With a background in design and communication, she brings clarity to complex ideas and plays a key role in shaping Arch2O’s editorial
