Reconstruction of a Reconstructed House, Conversation during the first house visit – Richard: “It’s actually quite wonderful just the way it is. The rest doesn’t seem so important.” Matej: “Yes, beauty can wear off. It’s just… the house kind of turns its back on us, don’t you think?”
Reconstruction of a reconstructed house. Architecture without architecture. Respect and working with context. A new program. That’s enough for us. Truly.
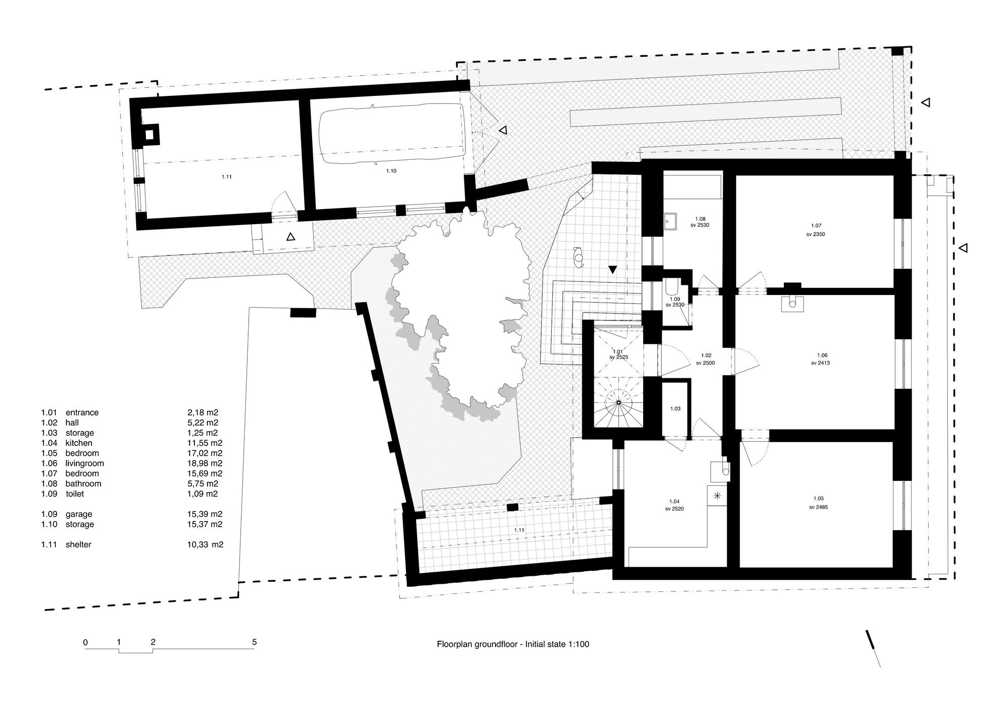
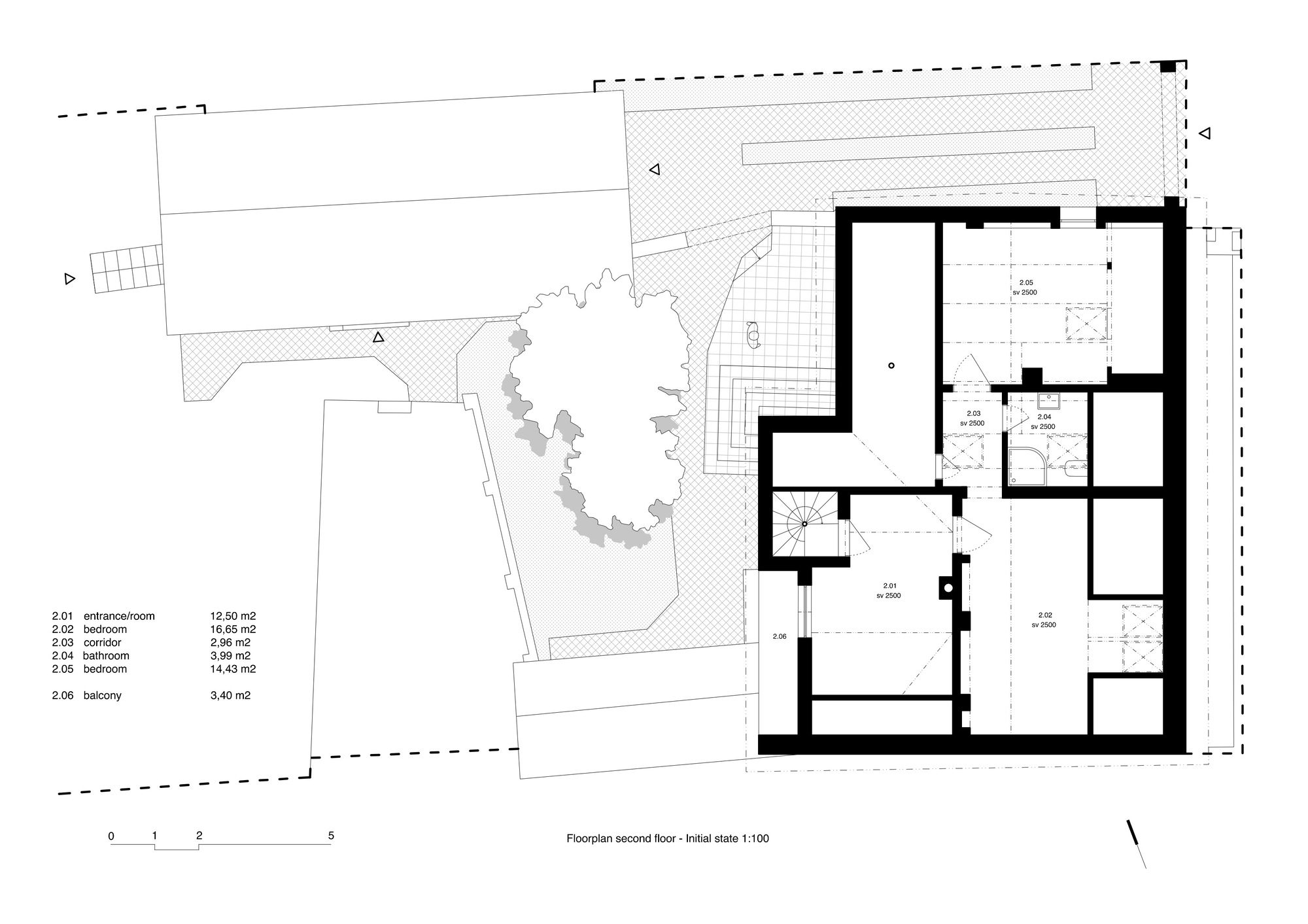
A classic countryside house built in 1926, renovated roughly 25 years ago, though not very happily. In contrast, a stunning garden ending in a forest. In the garden, a sort of “square,” and in the middle of it, a magnificent old walnut tree. We were enchanted.
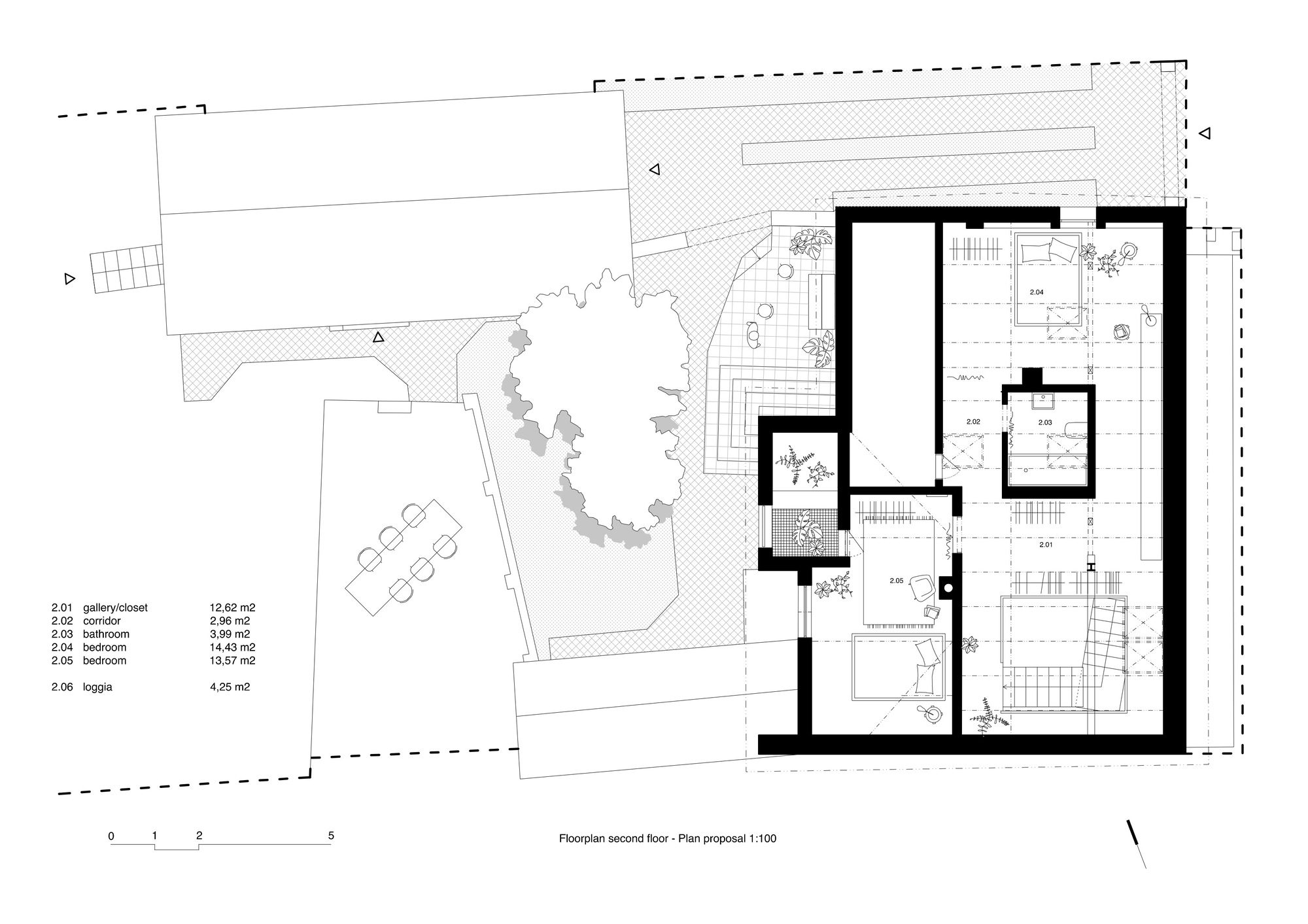
We’re searching for the essence, for space, for a program, for architecture. At the same time, we turn the house toward the garden. We open it up and connect it properly with the site. We want to live in the garden, we want to live under the old tree, that’s it, can you feel it? Beneath the forest, where someday we’ll build a sauna. Yes, way back there, so we have to walk through the whole garden. Past the vegetable beds, past our little hideaway made from an old shed. So that not everything is conveniently at our fingertips.
We’ll put a tub or a barrel out there, too, for cold plunges. And generally, we want to live a bit more simply. After all, that’s why we came to the countryside. We’re also shifting the boundary of the interior. By inserting a new recessed glass wall. Because we don’t just want inside and outside. We want something in between.
A place with summer shade, where a breeze gently flows, where the house doesn’t overheat. Where we can linger, grow flowers, tinker with something, or just sit and do nothing. To soften the boundary between in and out. Just being us, the air, the light, and our life.
Project Info
Architects: Kilo / Honc
Country: Slovakia, Plavecký Štvrtok
Area: 147 m²
Year: 2024
Photographs: Matej Hakár
Manufacturers Fritz Hansen, Kludi, Cinca, Cortizo, Element System, FLOS, JØTUL, Koło, Mawa Design: Fritz Hansen
Lead Team: Richard Kilo, Matej Honč
Design Team: Ľubomíra Blašková
Structural Engineer: Igor Bujdák
Building Statics: Alexander Pálkovács



































Tags: 2024ConcreteGlassKilo/HoncMatej HakárPlavecký ŠtvrtokReconstruction of a Reconstructed HouseSlovakia
