Raw Restaurant | Weijenberg

Raw Restaurant

Raw is a wooden artifact designed by the architecture firm Weijenberg, and conceptualized by one of the world’s best chefs, Andre Chiang and his Taiwanese creative team. Raw Restaurant is a true embodiment of the name of the restaurant in the Taiwanese context. With the help of the Dutch Camiel Weijenberg, the implementation of the concept is beyond successful.

photography by © mwphotoinc

The organic structures that form the kitchen and some other parts of the restaurant are both brutal and organic, with the wooden material so vivid, and its texture so visible, neither hidden by paint nor by any other finishing. While this gives the customers a sense of brutality, the spatial modeling of the wooden decorations is digitally organic, creating curvy, seamlessly integrated decorations that fit right in with the cubic space of the restaurant.

photography by © mwphotoinc

The lighting is a different story to tell; each table is set to be a distinct stage, and the show is all about the food. The  look of it gives the customers not only the appetite, but also the need to watch that show on the tweaked wooden tables, with that kind of dedication to the presentation of their food.

 

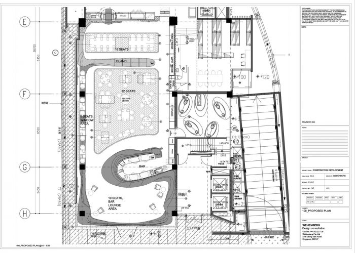
Floor Plan

The firm’s design embodies another thing as well; the firm’s design approach, which is briefly described by the architect: “Camiel’s foundation in carpentry and interior design, and his research at the AA on the inter-relationship between structure and components have trained his sense of space, structure and materials. This has contributed to the office’s inventive part-to-whole relationships between architecture and the environment.”

portada RAW2 (high res)

photography by © mwphotoinc

By: Hazem Raad

Project Info:

Architects: Weijenberg Architects
Location: Lequn 3rd Road, Zhongshan District, Taipei City, Taiwan 104
Area: 4500.0 ft2
Project Year: 2014
Photographs: mwphotoinc

Weijenberg Architects
Arch2O.com
Logo