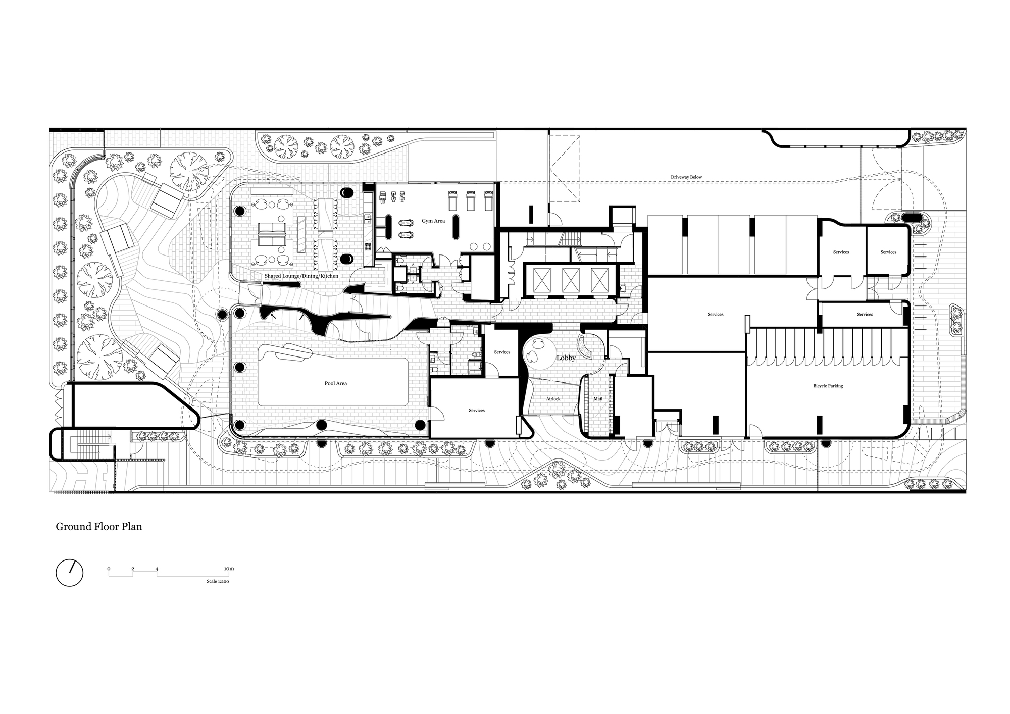
Queens Domain is located on Melbourne’s Queens Road. Queens Road together with St Kilda Road are Melbourne’s preeminent residential boulevards lined by buildings from various eras and different styles. When Queens Road is viewed from Albert Park, one can see a narrative of Melbourne’s architectural history emerge. Amongst them are some proud contributions by Frederick Romberg a renowned Modernist architect. The Stanhill and Newborn Flats are beautiful functionalist buildings with sweeping open balconies and fine glass detailing. Queens Domain takes up the next thread in this story, re-interpreting existing elements, whilst embracing design and construction techniques of our time.
The setback from Queens Road allows for the creation of a front yard for residents to enjoy. The apartments feature deep balconies and the curved form of the tower provides shading, particularly on the west. The roof deck includes barbeque areas enclosed within a tall glazed balustrade. This provides breathtaking panoramic views while ensuring protection against wind. As a prominent part of the urban fabric of Queens Road, Queens Domain respects the established setbacks and contours of the skyline defining the area. The outline of the building has been softened by using materials with a range of textures and degrees of transparency, as well as curved balcony and façade elements. Queens Domain is a building that balances sculpture and structure. It has a contemporary design, yet it’s respectful of its surrounds and place in history. Its elegant form will add to the Queens Road precinct and stand as an important part of Melbourne’s architectural story.
Project Info
Architects: DKO
Country: Australia, Melbourne
Area: 36450 m²
Year: 2017
Photographs: Tom Blachford
Manufacturers ForestOne, ShapeShell, Austral Bricks, LOCKER GROUP, Signorino: ForestOne
Developer: Kangoala
Builder: Hacer Group
Interior Design: Nexus Designs
Project Manager: PDA Australia



















