Project Residence BB 214 | Minimalist Architecture & Design Studio

Project Residence BB 214,The residence is conceived as an architecture of quiet presence. It unfolds as a quiet architectural composition, shaped by light, proportion, and deliberate restraint. Eschewing overt ornamentation, the design allows space, material, and daylight to take precedence, creating an environment in which architecture gently recedes to support everyday life.

Project Residence BB 214

© Nakul Jain

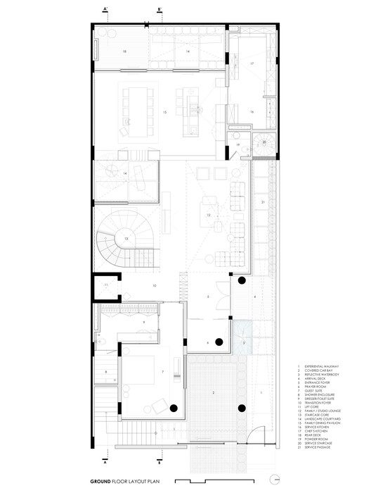
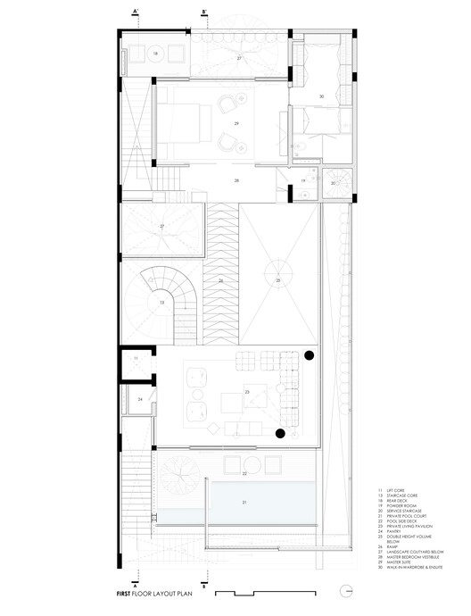
The house is composed of a sequence of layered volumes. Openness and privacy are negotiated through setbacks, screens, and voids rather than walls alone. Light enters indirectly—filtered, softened—casting slow-moving shadows that register the passage of time across surfaces and floors.

Project Residence BB 214

© Nakul Jain

At the center of the home, a vertically connected living space anchors the plan. A sculptural stair rises within this void, not as an object, but as a spatial element that binds levels together. Double-height volumes extend the interior upward and outward, framing controlled views of sky, landscape, and light.

Project Residence BB 214

© Nakul Jain

The material language is intentionally muted and tactile. Concrete, stone, light-toned wood, and soft textiles are employed in a restrained palette, balancing monolithic presence with warmth and intimacy. Detailing is subtle and exacting, with emphasis placed on edges, junctions, and proportions rather than decorative expression. Furniture and built-in elements are conceived as architectural extensions, reinforcing a unified and coherent spatial narrative.

Project Residence BB 214

© Nakul Jain

Private spaces are drawn inward. Bedrooms are conceived as places of retreat—defined by muted light, reduced material contrast, and a heightened sense of enclosure. These rooms offer silence and introspection, balancing the openness of shared living areas.

Project Residence BB 214

© Nakul Jain

Private spaces are drawn inward. Bedrooms are conceived as places of retreat—defined by muted light, reduced material contrast, and a heightened sense of enclosure. These rooms offer silence and introspection, balancing the openness of shared living areas.

Project Info:

  • Country: Ludhiana ,India
  • Area6870 ft²
  • Year202
  • Photographs :Nakul Jain
  • Manufacturers:   HANS GROHE+ FIMA CARLO FRATTINIARTN-GLASSASTRONEA ITALIAArteCortizoDaikinFlosNILAYAANTHOLOGYNorisysSCIC ITALIA
  • Architecture R&D & DesignSamridh Aneja
  • Interiors R&D & DesignSamridh Aneja, Anima Aneja
  • TeamSamridh Aneja, Anima Aneja, Arshdeep Singh, Abhijeet Kalsi, Karishma Narula
  • Interior StylingMinimalist Architecture & Design Studio
  • Lighting ConsultantStudio Lightscapes
  • Landscape ConsultantAsl Landscapes + Minimalist Architecture & Design Studio
  • Structure ConsultantThirdspace Consultants
  • VisualizationInfinity Studio + Minimalist Architecture & Design Studio
  • Acoustic ConsultantsAnterbox
  • AutomationAkubela
  • PmcAyush Taneja
  • CarpentrySr Interiors
  • Tile ManufacturerKronos
  • SuppliersTapmasters, Deluxe Lights, Kashish Furniture, Naveen Bharat Furnishings
Mohamed Saleh
Arch2O.com
Logo
Send this to a friend