Primary School Extension, Vič Primary School has the largest number of pupils in Ljubljana. As the city develops and densifies, the number of pupils continues to increase. Despite the increasing number of pupils, the school management is also committed to maintaining the quality of the school’s space, which provides a suitable educational environment for each pupil. Priority space requirements include sufficient classrooms. The number of pupils in classes is standardised, as is the size of classrooms. Therefore, the priority of the school management is to provide equivalent classroom space.
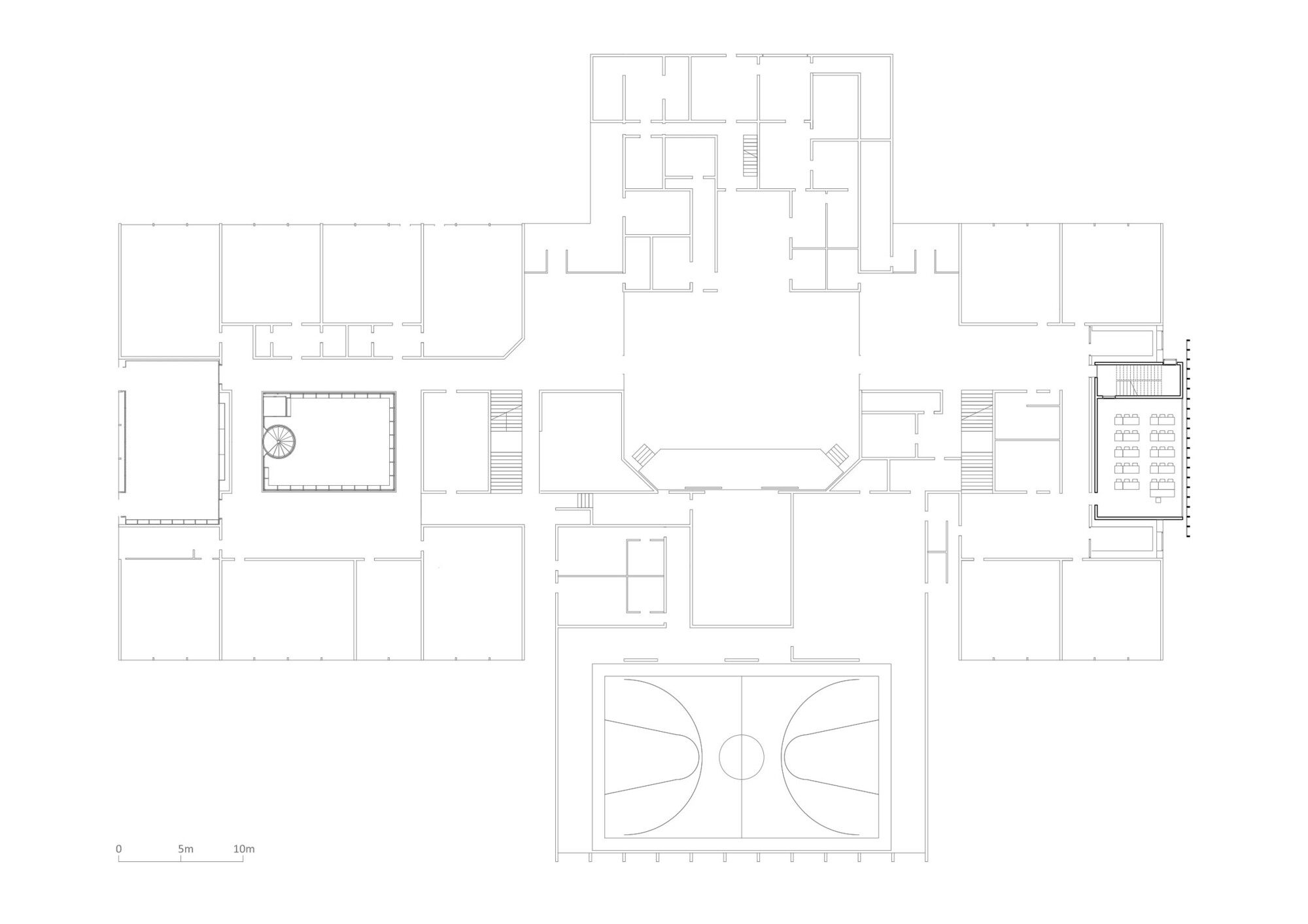
The Vič Primary School was built in 1976. The school has a clear functional layout. It is divided into two parts, with classrooms and cabinets for upper and lower grades. Between the two parts, in the central axis, there are common areas for all children (dining room, gym, assembly room). The western part, with classrooms for the upper classes, was completed according to the original plans, while the eastern part, with the lower classes, was not completed according to the plans, leaving an unfinished niche on part of the façade. The unbuilt space offered the opportunity for a new intervention to solve the school’s space constraints, providing two new classrooms and small cloakrooms for the youngest pupils. Due to building laws and regulations, the new intervention had to be structurally and firesafe autonomous. The new structure is therefore not in contact with the existing structure, and the extension also includes fire escapes to allow direct access from the two new classrooms to the outside.
The intervention is designed as an insertion between the two existing side façades, which were renovated during the construction. The whole eastern façade is thus treated as a single façade. The new element is visibly added and extends beyond the existing façade plane. A façade of vertical slats is therefore added, extending beyond the basic volume on both sides and softening the transition between the new and the old part. The classrooms are made from natural materials. In addition to wood, the walls are covered with cork, which is used by pupils and teachers as a display surface with unlimited possibilities. The large windows in the classrooms overlook the green area next to the school, where additional trees have been planted. Children will be able to hunt, hide and play among the trees, from the ground floor classrooms they will be able to see the scattered trunks and the shade of the treetops, and upstairs they will have the feeling that at least part of their lessons are taking place in the treetops. The view of them is just as important as the view of the blackboard. Being dreamy is also part of learning.
Project Info
Architects:ARP studio
Country: Slovenia, Ljubljana
Area: 229 m²
Year: 2019
Photographs: Tadej Bolta


















