Positive Energy House | People’s Architecture Office
The Positive Energy House is inspired by nature’s resilience and rejuvenation. Serving as a net-positive energy building, this dwelling not only diminishes its environmental impact but actively contributes to regeneration by producing surplus energy.
Its design, a transformation of an existing property, showcases how older buildings can be revamped for peak efficiency without starting from scratch. Renovating existing properties aligns with environmental sustainability principles, contrasting with the resource-intensive process of demolition and reconstruction
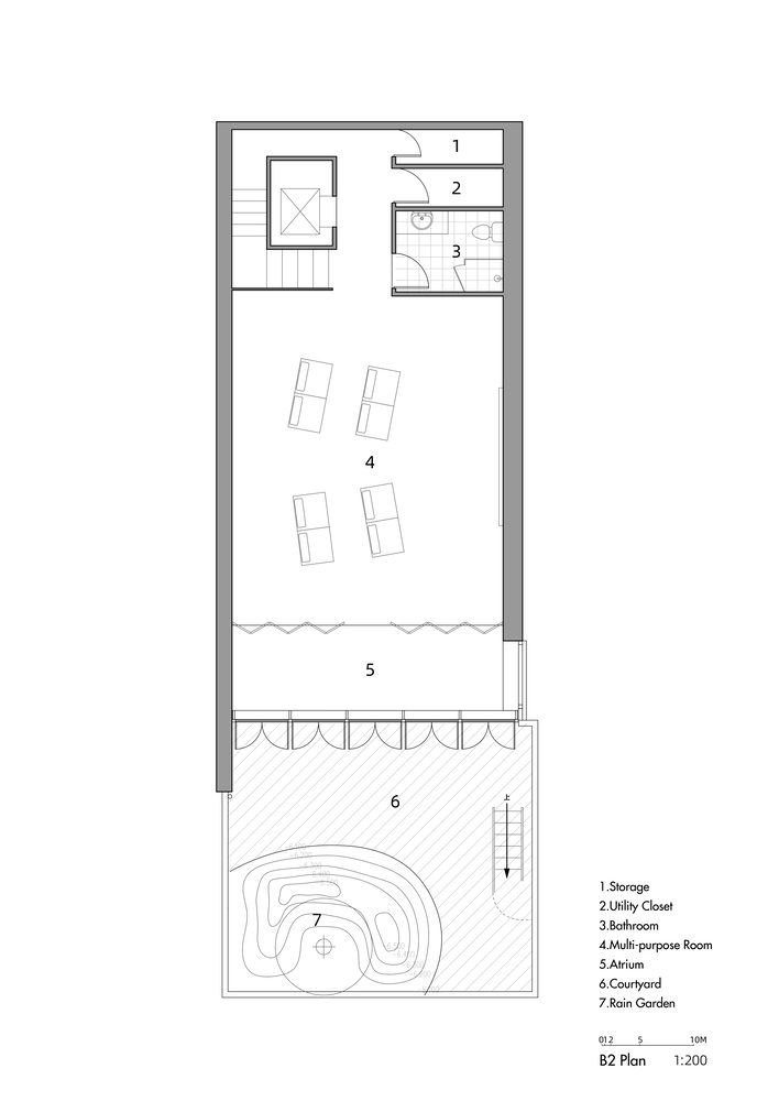
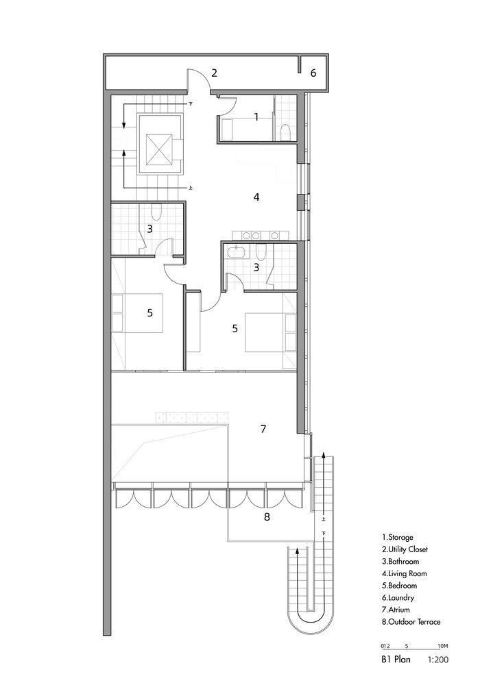
Our renovation strategy involved adding two additional layers to the existing structure. To enhance energy efficiency, the building was enveloped with a well-sealed and insulated skin. On the south side, this new layer created an interstitial atrium space outside the original building but within the insulated shell. Enclosed with a triple-glazed glass facade, the atrium incorporates operable windows and doors for passive ventilation during mild weather.
Within the original building an air vent was integrated with the existing elevator core, utilizing the chimney effect to draw air through the house while also serving as a light well to maximize natural illumination and reduce reliance on artificial lighting. During moderately severe weather, the atrium can be sealed and mechanically ventilated to cool the house efficiently, reserving the need for air conditioning for most extreme weather conditions. Additionally, the atrium features a climbing wall tailored for the home owner, an enthusiastic rock climber, spanning across and granting access to all four levels of the house.
Extending beyond the new building skin is an outer layer comprised of solar roofs. These roofs harness the sun’s energy to power the house and are adorned with cadmium telluride photovoltaic panels. Supported by lightweight prefabricated truss structures, these roofs offer significant shade for the house and outdoor terraces while maintaining unobstructed airflow and sightlines. The stacked layers of curvilinear roofs tiled in solar panels create a cohesive architectural form.
The concept of wrapping an existing house with two additional layers to reduce energy consumption and generate electricity serves an innovative strategy and a model for sustainable renovation.
Project Info:
-
Architects:Â People’s Architecture Office
- Country: Shenzhen, China
- Area: 505 m²
- Year:Â 2023




















































