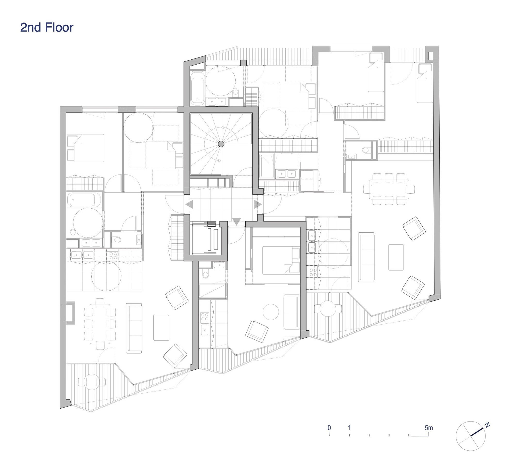
Point du Jour Apartments is a 19-unit, 8 story building built on one of the few plots in the area of Point du Jour in Boulogne-Billancourt, Greater Paris. The client’s request was for the creation of a building where all the dwellings have outside spaces and a maximum amount of natural light.
On the façade, the thickness of the slabs was minimised to maximise the fully glazed surface. The composition of the angled bays and the overhanging balconies provide a dynamic characteristic to the building.Four materials complement and balance each other inside and out:Corian, aluminium, wood and glass.The columns and façade slabs are clad in white Corian and the ground floor and the last two levels are covered with black Corian. In the lobby of the building, artist Daniel Buren offered a black and white Corian inlay.
Inside, 95 mm wide mesh blades, cut with laser and then glued back in the form of plates, completely cover the vertical surfaces (walls, doors, technical closets). The landings are dressed in wood with hanging doors. In the apartments, the kitchens also have a work plan in Corian and custom-made storage. Finally, separate locksmiths are integrated between the cooked areas and lounge.
Project Info
Architects: Studio Vincent Eschalier
Area: 2025 m²
Year: 2018
Country: Boulogne-Billancourt, France
Photographs: Axel Dahl, Joan Bracco
Manufacturers: Technal, DuPont
Lead Architect: Paolo Gatti
Engineering: SAS Sato & Associés
Clients: ESPRIMM





















