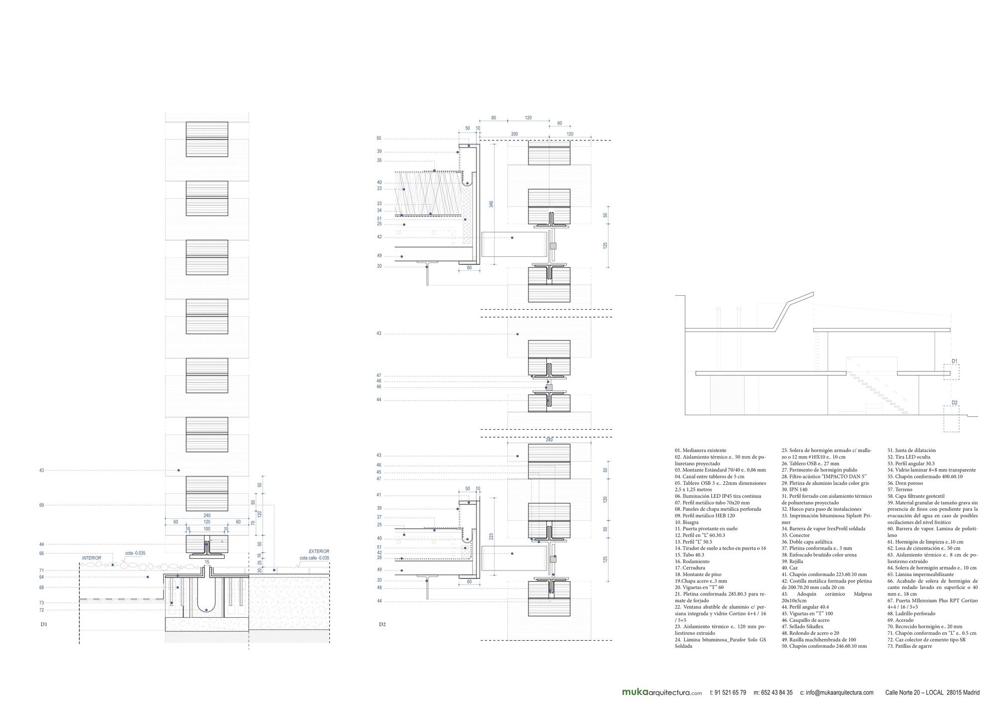
The ceramic in the Piedrabuena house acquires diverse qualities as a relevant element. The continued presence of this material in the town and the limited budget suggested a proposal that reread its more material condition.

Courtesy of MUKAarquitectura
In a plot of two and a half meters of façade, the use of a paving of pressed clay off the edges of the floors acts as if it were a ceramic curtain. A curtain that hides any reference to the domestic size of the voids and proposes to unify the adjoining facades. The scale disappears and the proposal highlights the link between existing buildings.
The alternating arrangement of the module with rope and rowlock draws a vibrant and porous latticework. Vibrant is the play of shadows, and porous because it filters the direct light that penetrates the interior of the house on the vertical glass cloth behind it. This light is molded by the pieces of clay and go through the interior of the house over the day. When the sun’s rays do not directly affect the façade, the set of folding and pivoting parts offers a new relationship between the interior and the exterior.

Courtesy of MUKAarquitectura
The different delayed positions of the glass create intermediate spaces such as the access and terraces. The façade is present in all the interior rooms, since the plan proposes the diagonal as a spatial relationship scheme: extending the distances of a narrow plan and the perception of its limits. The possibility of moistening the ceramic pieces periodically proposes a bioclimatic system of natural ventilation in the interior.
The air that penetrates through the wet lattice elevates its relative humidity and accesses the home to improve the comfort.

Courtesy of MUKAarquitectura
Project Info:
Architects: MUKAarquitectura
Location: Piedrabuena, Ciudad Real ,Spain
Area: 135 m²
Project Year: 2017
Photographs: Courtesy of MUKAarquitectura
Manufactures: Cerámica Malpesa, Intelec, Sanpec

















Tags: AirbuildingsceramicsCiudad RealCurtain wallExteriorFacadeFacadesGlasshomeHouseInteriorlightMaterialModuleMUKAarquitecturaPiedrabuenaSpainsystemVentilationvibrant
