Piedade House | Nitsche Arquitetos

The architectural project of the “Piedade House” was developed with a focus on efficiency to precisely meet the specific needs of the local environment and the demands of the client. Located in the interior of São Paulo, the house, with approximately 1,500 square feet, stands out for its programmatic simplicity, speed of construction, and reduced costs.

© Arthur Duarte2

© Arthur Duarte

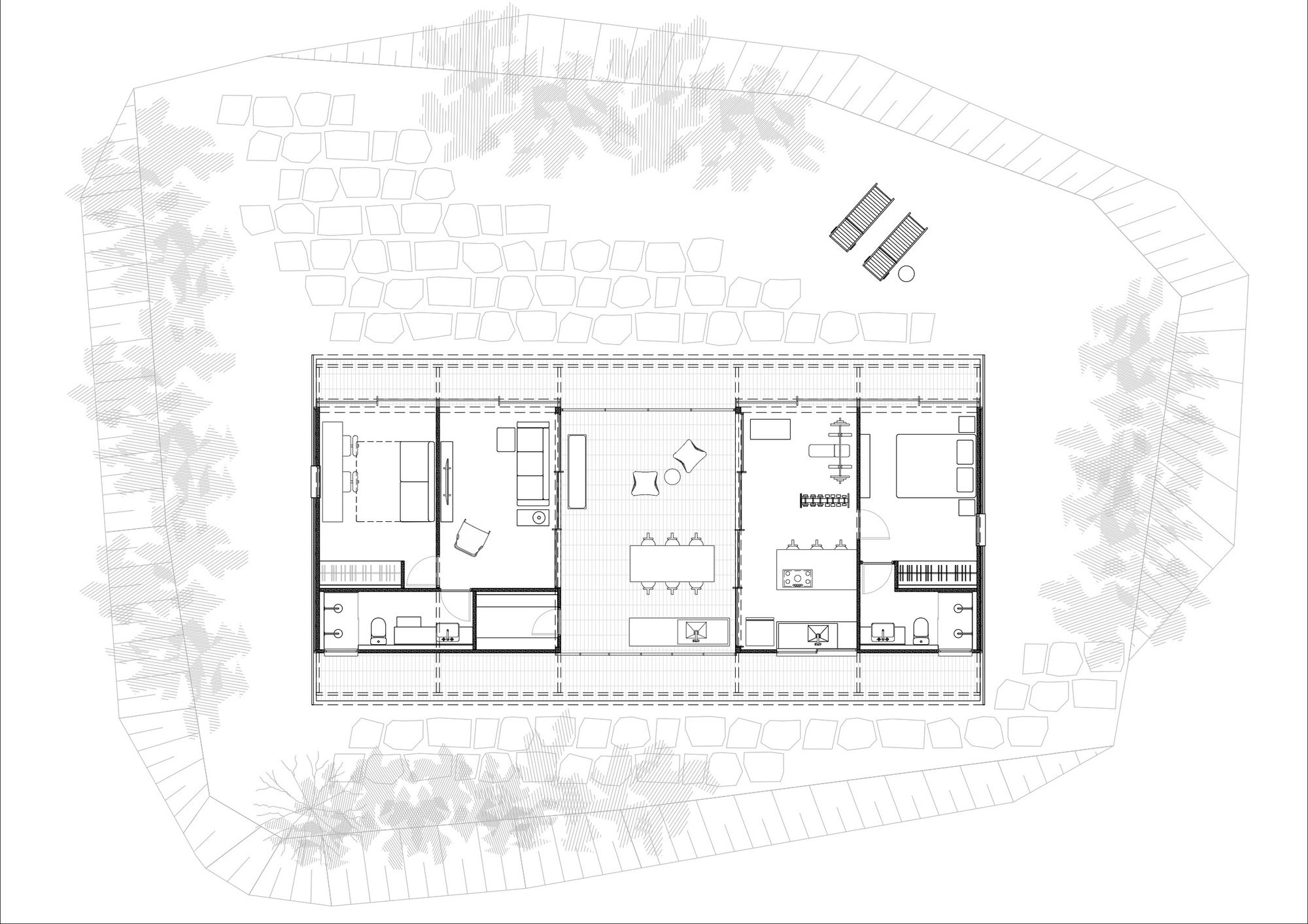
The residence is composed of two main programmatic blocks that house bedrooms, bathrooms, a kitchen, and a living room. Between these blocks, a covered balcony with transparent roofing was positioned, designed to be a sheltered space with sunlight, especially important in a mountain city subjected to lower temperatures during the winter.

© Arthur Duarte9

© Arthur Duarte

The cross-laminated timber (CLT) construction system was chosen due to the reduced spans and the need for rapid construction. The complete assembly of the house’s structure was completed in less than a week. The use of wood panels as a structural element not only prioritizes construction efficiency but also ensures lower environmental impact, considering that the production of this material, besides retaining greenhouse gases, uses less energy than steel and concrete.

© Arthur Duarte8

© Arthur Duarte

Translucent roofing was employed throughout the house, not only to protect the CLT ceiling panels from exposure to rain but also to allow light to enter the central balcony and eaves. The design of the “House in Piedade” represents a balance between functionality and sustainability, addressing the practical demands of the project while new construction possibilities are explored.

Project Info
Architects: Nitsche Arquitetos
Country: São Paulo, Brazil
Area: 140 m²
Year: 2024
Photographs: Arthur Duarte

Mohamed Saleh
Arch2O.com
Logo
Send this to a friend