Pedro House aims to rescue the city’s architectural heritage by restoring an early-20th century building and adding an annex to the back, thus establishing a discrete and respectful dialogue between the historical and contemporary. As part of a large-scale urban reactivation plan for Guadalajara’s Historic Center, Casa Pedro plays a role in the re-densification of an area that is partially unoccupied and devitalized.
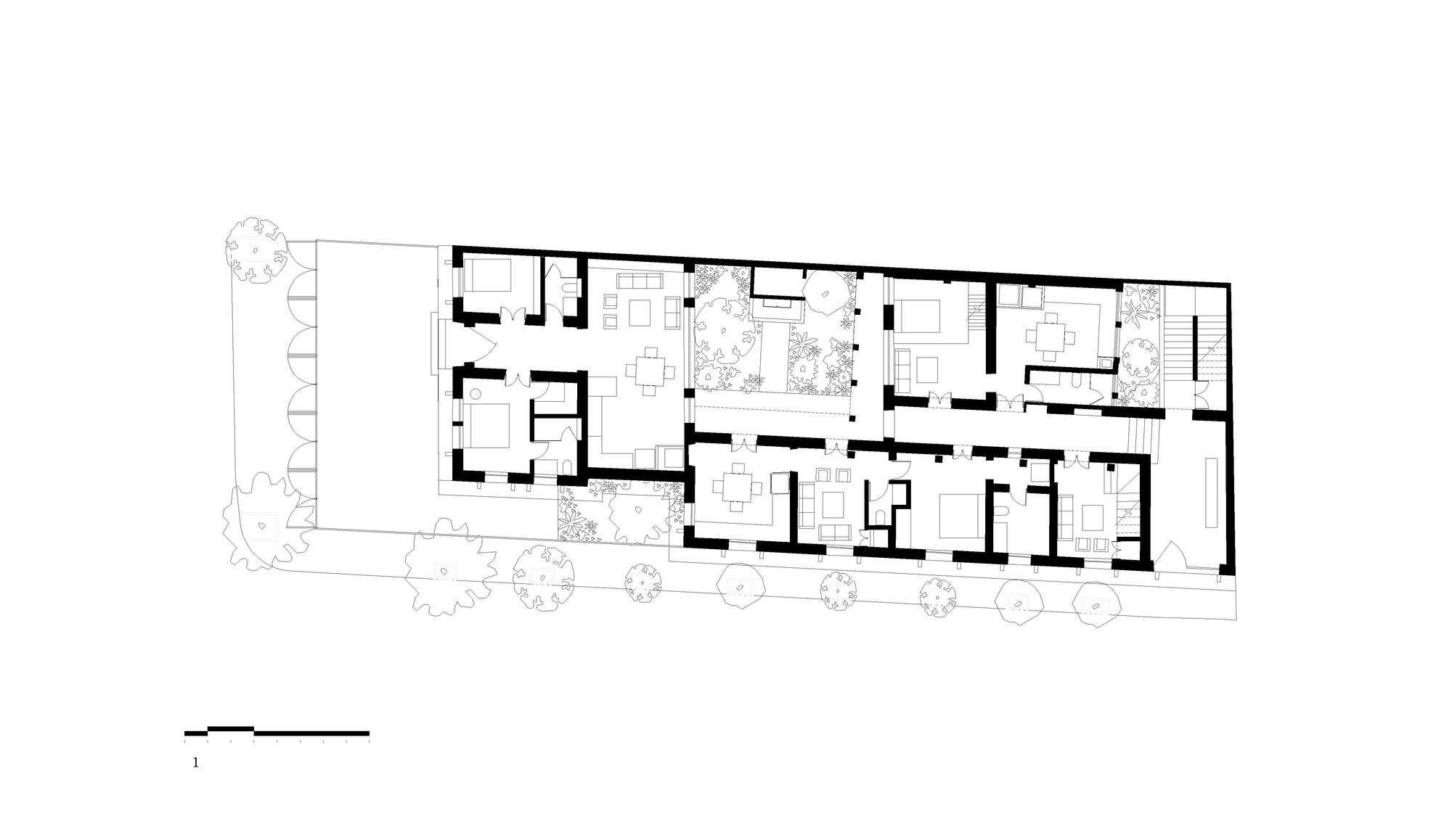
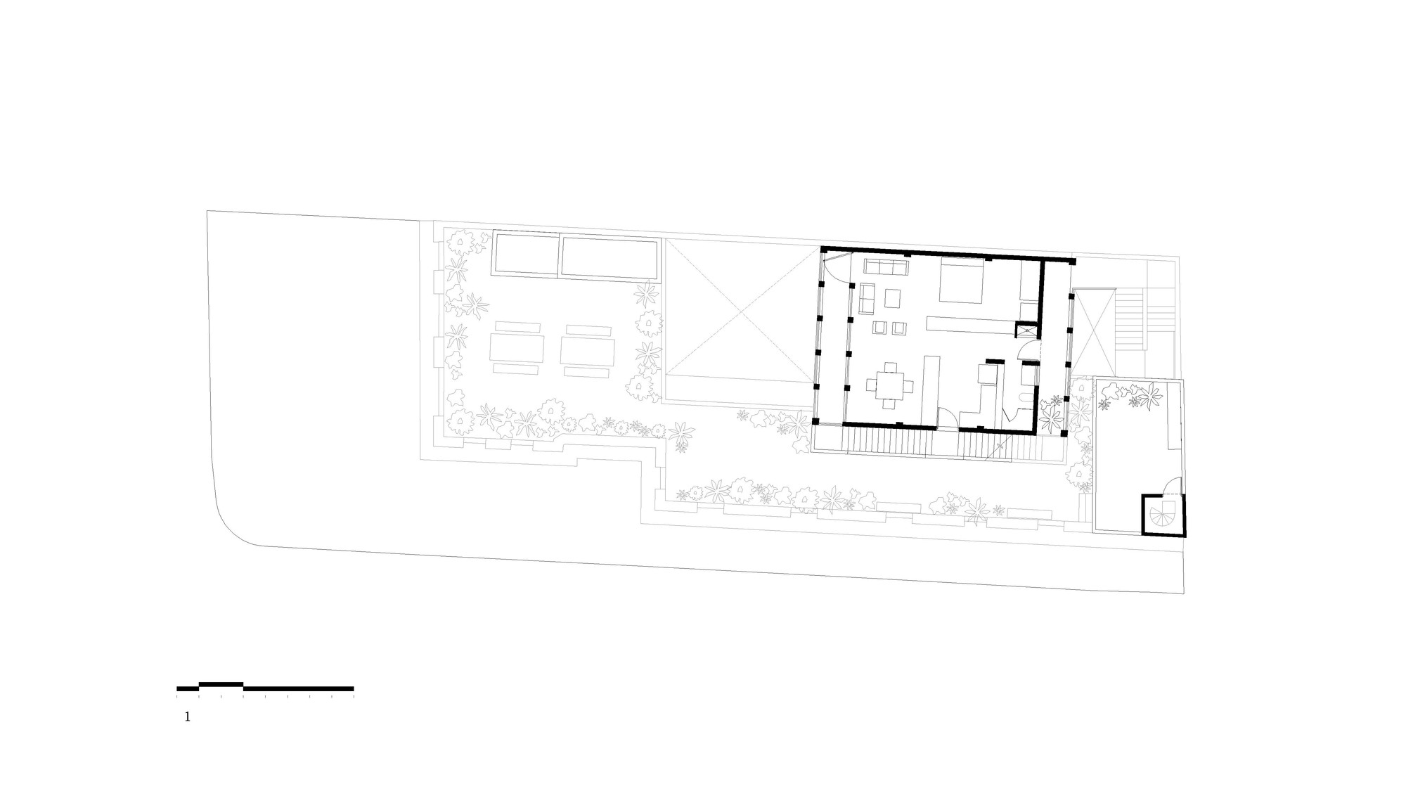
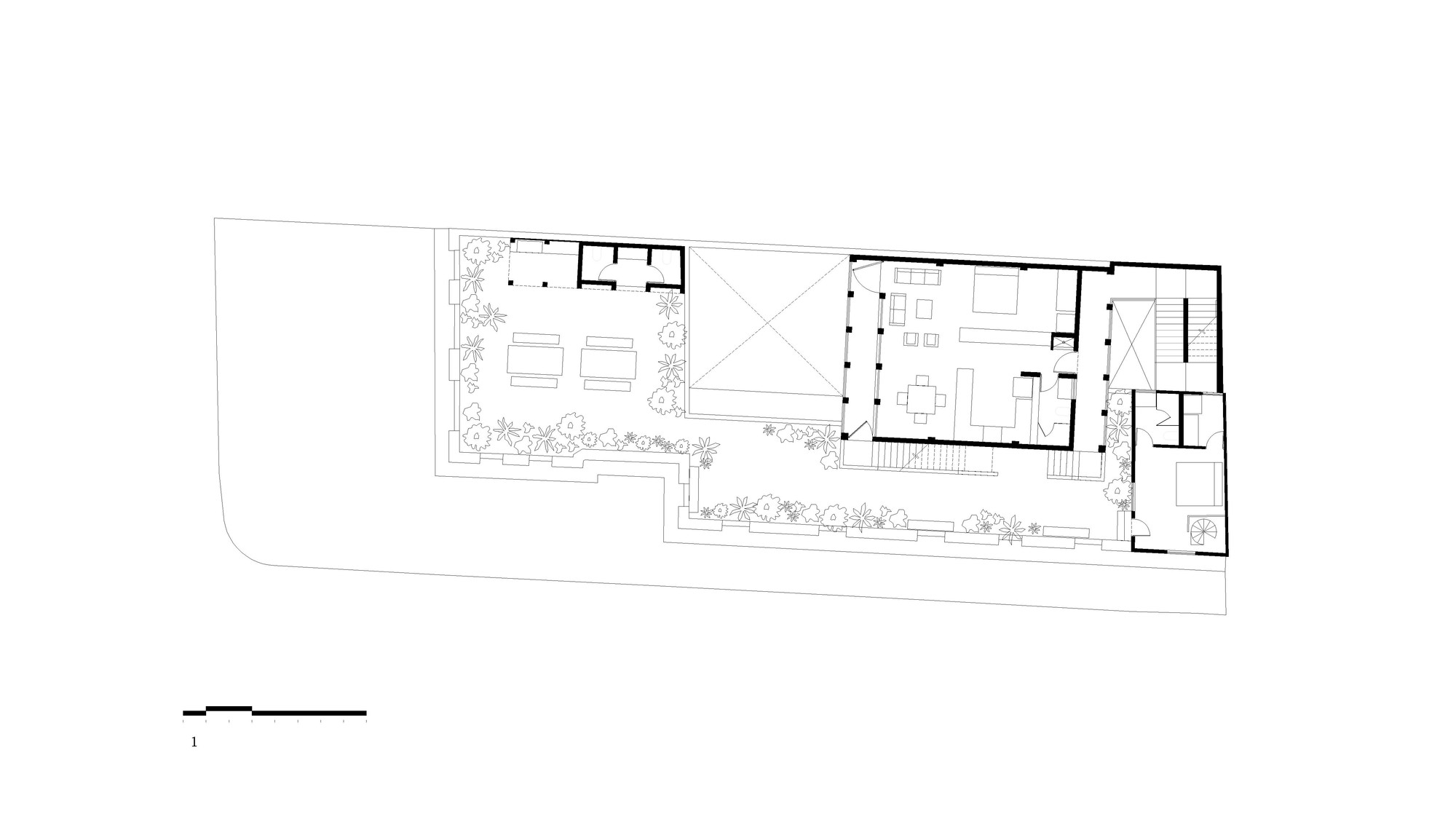
The restoration respected the preexisting doors and windows that divided the home, while the annex was placed in the lesser-seen terrace area in order to avoid modifying the building’s original circulations and central patio, which functions as the heart of the project.
Six residential units are located throughout the house — four within the original building and two in the annex — in typologies suited for one person or a couple, as well as larger ones that are able to accomodate a family. Respecting the project’s original distribution ensured that each apartment unit within the heritage house is unique. Both of the units located in the annex function as open-plan lofts. On the rooftop, a green space adds to the building’s shared-use areas.
Project Info
Architects: Diagrama Arquitectos
Area: 525 m²
Year: 2019
Country: Guadalajara, Mexico
Photographs: César Béjar
Manufacturers: AutoDesk, Adobe, Trimble
Lead Architects: Luis Aurelio Piña Plaza, Laura Elena Barba Prieto
Design Team: Arturo Molina
Clients: Huella Desarrollos
Landscape: BAC Taller de paisajismo
Collaborators: Isadora Vargas, Gisela Reyes, Regina Alarcón.
























