Pavilion Aurore | Sisto studios

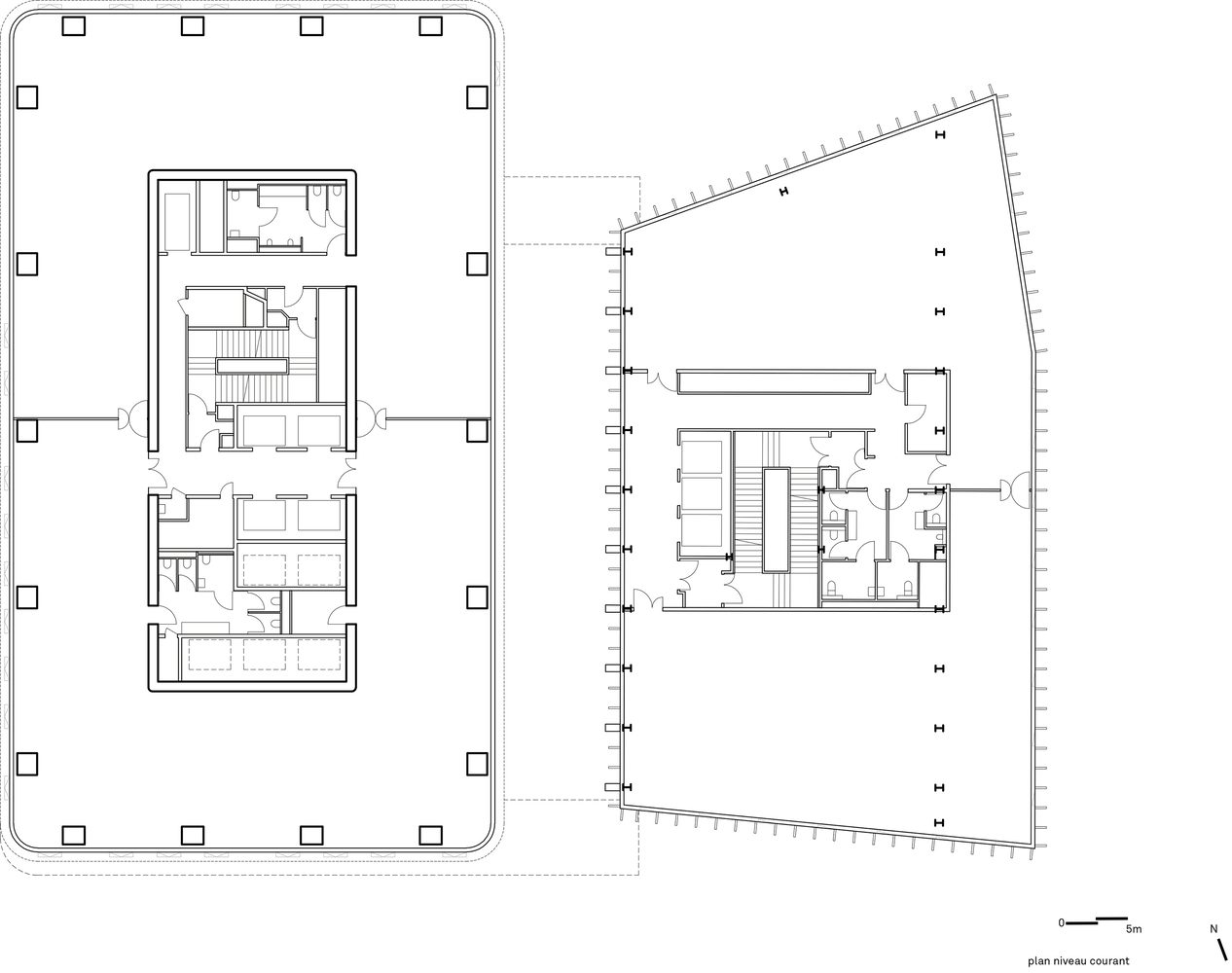
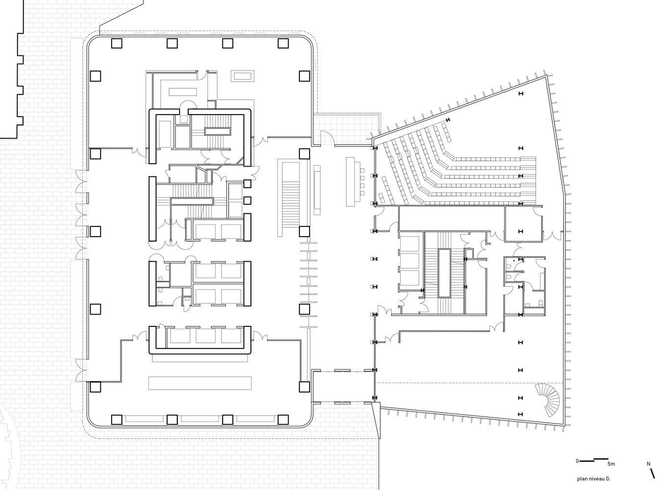
The Aurore project is an architectural ensemble that includes the renovation and extension of the Tour Aurore at La Defense, along with the construction of a ten-story service building, Pavilion Aurore, at the front of the tower. Sisto Studios, as an associate architect, is responsible for designing the Pavilion and some of the tower’s common spaces.

Pavilion Aurore

© Nicolas Sisto

The Pavilion is surrounded by three towers, reaching heights of 100 and 200 meters, which overshadow its location. Only its southern façade opens onto Place de l’Iris and the historic axis of La Defense. To offer a fresh perspective on how this district is inhabited and experienced, the Pavilion’s design is guided by two organic principles: – An innovative lifestyle program dedicated to the users of the Aurore Tower and surrounding buildings, the Pavilion provides versatile and inviting spaces for work and leisure. These include shops, restaurants, a business center, an auditorium, lounges, coworking areas, and a rooftop. A living architecture shaped by free movement. Inspired by the image and function of a lantern, the Aurore Pavilion captures and diffuses light, creating an open, dynamic space. Its design embraces fluidity, encouraging interaction and movement within its environment.

Pavilion Aurore

© Nicolas Sisto

The Metamorphosis – The Pavilion is a precious glass object, reflective by day and transparent by night. It is encircled by vertical slats of frosted glass, acting as subtle filters that serve both the building and its users. This organic skin captures shifting light throughout the day, either amplifying or diffusing its glow. It creates a rare sense of architectural intimacy in a district dominated by office towers, offering controlled, discreet views of the surrounding neighborhood. The rhythm of the slats fully reveals its potential where the building’s geometry creates angles.

Pavilion Aurore

© Nicolas Sisto

However, the Pavilion does not conform to strict right angles. Each of its corners has its own significance: bow, retreat, caesura of the longest façade – reinforced by the building’s creation of three urban levels (slabs). This is living architecture in its truest sense, organic both in form and function. The public can move freely within and around the Pavilion, from the circular level to the rooftop, from Place de l’Iris to Place des Reflets, or into the Aurore Tower’s reception area. An internal street, designed as an extension of Place des Reflets, links the tower and the Pavilion, enhancing the fluidity of movement. These new pathways, integrated into the project, contrast with the district’s original design, which enclosed the circular level in relation to the pedestrian forecourt.

Pavilion Aurore

© Nicolas Sisto

Materials – The materials used in the Pavilion’s construction are an integral part of its identity and urban design. In contrast to its smooth, watertight glass exterior, the building’s core is composed of opaque, warm, and porous materials. A steel structure with a 15-meter span minimizes vertical supports, freeing up the façade to function like a delicate curtain. The strict repetition of glass slats, combined with the building’s ‘irrational’ geometry and organic flow, gives it a timeless elegance. The materials were chosen for their intrinsic qualities – raw, unadorned, and sustainable. This reflects both an aesthetic and ecological vision, breaking away from the conventional plaster and carpet finishes typical of commercial interiors.

Project Info:

  • Architects: Sisto studios
  • Country: France
  • Area: 7000 m²
  • Year: 2024
  • Photographs: Nicolas Sisto
  • Manufacturers: Kyotec
  • Lead Architect: Nicolas Sisto
  • Structural Design: SETEC TPI
  • Acoustic: ACV Acoustique, ACV
  • Project Manager: Artelia
  • Construction: Groupement Vinci construction
Nicolas Sisto
Arch2O.com
Logo
Send this to a friend