Participative social housing in Crolles | INDY ARCHITECTES

Participative social housing is located in the Isère Valley in Crolles (France), and benefits exceptional views of the Chartreuse and Belledonne mountain ranges. It was initiated by the municipality, a social housing provider, and a group of residents who wanted to design and build a 15-unit housing project (from one-bedroom to four-bedroom duplex), using a sustainable approach.

Participative social housing

© Laura Lyson

The project’s architecture is the result of a co-design process that was implemented with the future residents through thematic workshops. The building, constructed from a mix of materials (concrete, thermal brick,  wood, etc.) combines a certain compactness and adopts specific features from individual, intermediate, and collective housing. One of the building’s distinctive features is its large balconies at each corner, creating bi- and even tri-oriented housing units overlooking all the far-reaching views surrounding the site. Each unit has been individually customized with each resident, down to the size and variation of the facade openings, giving the project a unique and singular identity.

Participative social housing

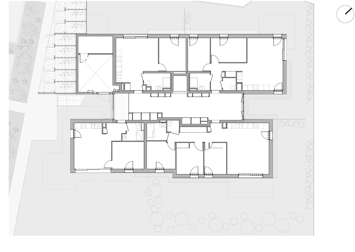
Plan

Accessible by an external staircase, each floor leads to a central common area, designed as an additional living space for the four apartments on the same level. These common areas are equipped with large storage cupboards and shared amenities (washing machines, freezer, etc.) and have been converted by the residents into a reading corner, co-working space, and children’s playroom.

Participative social housing

Diagram

Some partitions between apartments can be removed for greater future flexibility. A shared common space has been created on the ground floor of the building. It is equipped like a small apartment and can be used as a reception room, meeting room, or to accommodate family or friends. A panoramic rooftop terrace was designed for the residents. It is equipped with a photovoltaic pergola that produces electricity while cooling the building during the hot season.

Participative social housing

© Laura Lyson

At the foot of the building, green spaces, including a large communal garden with fruit trees, a vegetable garden, and a compost bin, have been provided for residents. Each apartment has at least one bicycle storage room and outdoor wood-frame cellar, as well as outdoor parking.  Rainwater from the roofs is collected and used for watering.

Project Info:

 INDY ARCHITECTES
Arch2O.com
Logo
Send this to a friend