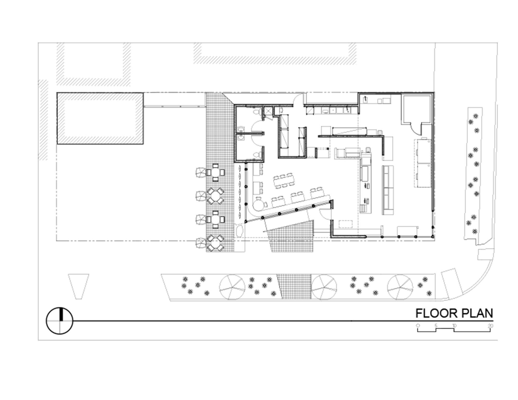
Designed by Floisand Studio, Pagliacci Pizza 2,100 square foot artisan pizzeria was previously a delivery kitchen attached to a two-story duplex. The duplex was demolished to make way for the new restaurant and delivery kitchen, which remained open during construction.
The entry to the Pagliacci Pizza restaurant is articulated by a low slanted canopy which provides sun shading and contrasts the higher ceilings within. The west-facing windows are also shielded by large, kid-friendly, movable louvers, which can be rotated by hand. Solar panels were designed into the roof parapet, which is also viewable from a skylight located directly inside the main entrance.
The interior ceiling is articulated by exposed glu-lam beams and car decking. Valentino marble, white-washed oak boards, and hot-rolled steel line the interior walls. Interior seating includes custom stained oak and steel benches with white cushioned upholstered backrests. The main table has a stained-oak top and utilizes camshafts from a WWII marine diesel engine for legs.
Project Info:
Architects:Â Floisand Studio
Location: 4001 Stone Way North, Seattle, WA 98103, United States
Area: 2101.0 ft2
Project Year: 2013
Design Team: Richard Floisand, Allison Hogue, Patrick Nopp, Kevin Tully
Structural Engineer: Giraf Engineering
Project Name:Â Pagliacci Pizza
All Images Courtesy Of Floisand Studio
















Tags: CanopyConstructionFloisand StudioPagliacci PizzaPagliacci Pizza SeattleSeattleskylightSteelUnited StatesUSAWood
