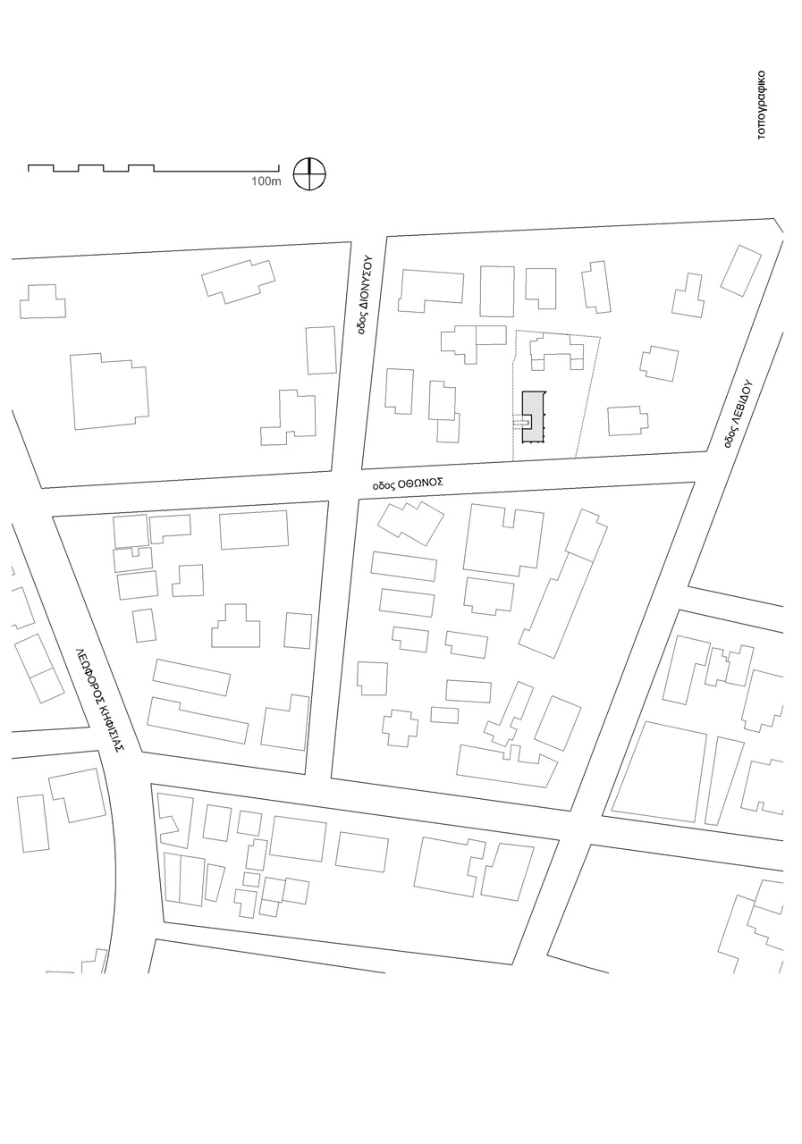
Designed by Nikos Smyrlis, Othonos House is located near downtown of Kifisia. Are an area with low density and it consists mostly of neoclassical villas of the early beginning of the 20th century? The two-story residences disappear behind the dense vegetation that prevails.
The displacement of the house was defined by an effort to conserve the big old trees.
The new building is simple in the geometry of its volume so that it completed by the elements of the environment – the old villas and gardens.
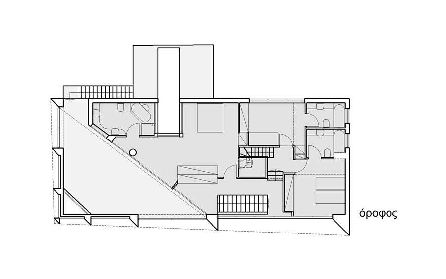
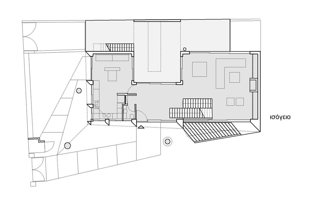
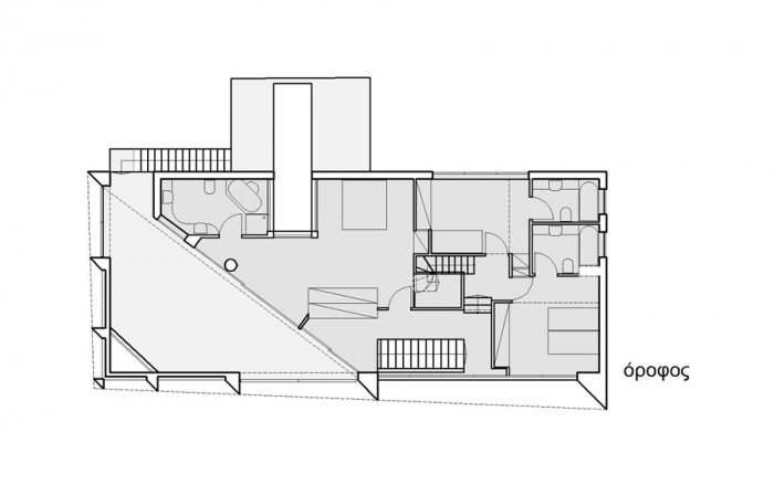
From the entrance, the house shows up as a ground floor archway in symmetry with the listed building. As one moves towards the house he realizes its actual size while the three levels appear together with the underground floor. The triangular columns gradually get higher, with fixed proportions.
A correction of distortion applied on the view from point A so that the house appears to be a rectangular façade with 8 columns in proportions.
As a sequence of the correction, a diagonal plane on the top intersects the box shape building. The subtraction from the roof creates an open-air veranda on the 1st level, closed across the entrance in order to shelter the bedrooms from the busy street of the museum opposite.
The space between the building and the west edge of the plot is transformed into a sheltered patio – continuity of the indoor ground floor, especially during the summer.
Project Info:
Architects: Nikos Smyrlis
Location: Athens, Greece
Civil Engineer: Ypsilon ltd
Electrical Engineering: P. Panagiotou
Area: 350.0 m2
Project Year: 2008
Photographs: Erieta Attali
Project Name:Â Othonos House





























