Ostra House, Located in a residential area in Brasília, Ostra is a renovation project designed to welcome the start of a new family. The clients’ desire for flexible and integrated spaces guided the design exercise.
The compositional precision of the front facade is marked by the line of the roof beam that is suspended from the vertical plane of the outer front wall, providing a perception of structural lightness. This line also announces the scale of the house, where the low ceiling height accentuates the notion of horizontality and warmth. While the vertical plane clad in natural stone anticipates the experience of the interior by guiding the pathway, the roof line continues over the prominent white volume of the garage, creating a formal unity between line, planes, and volume.
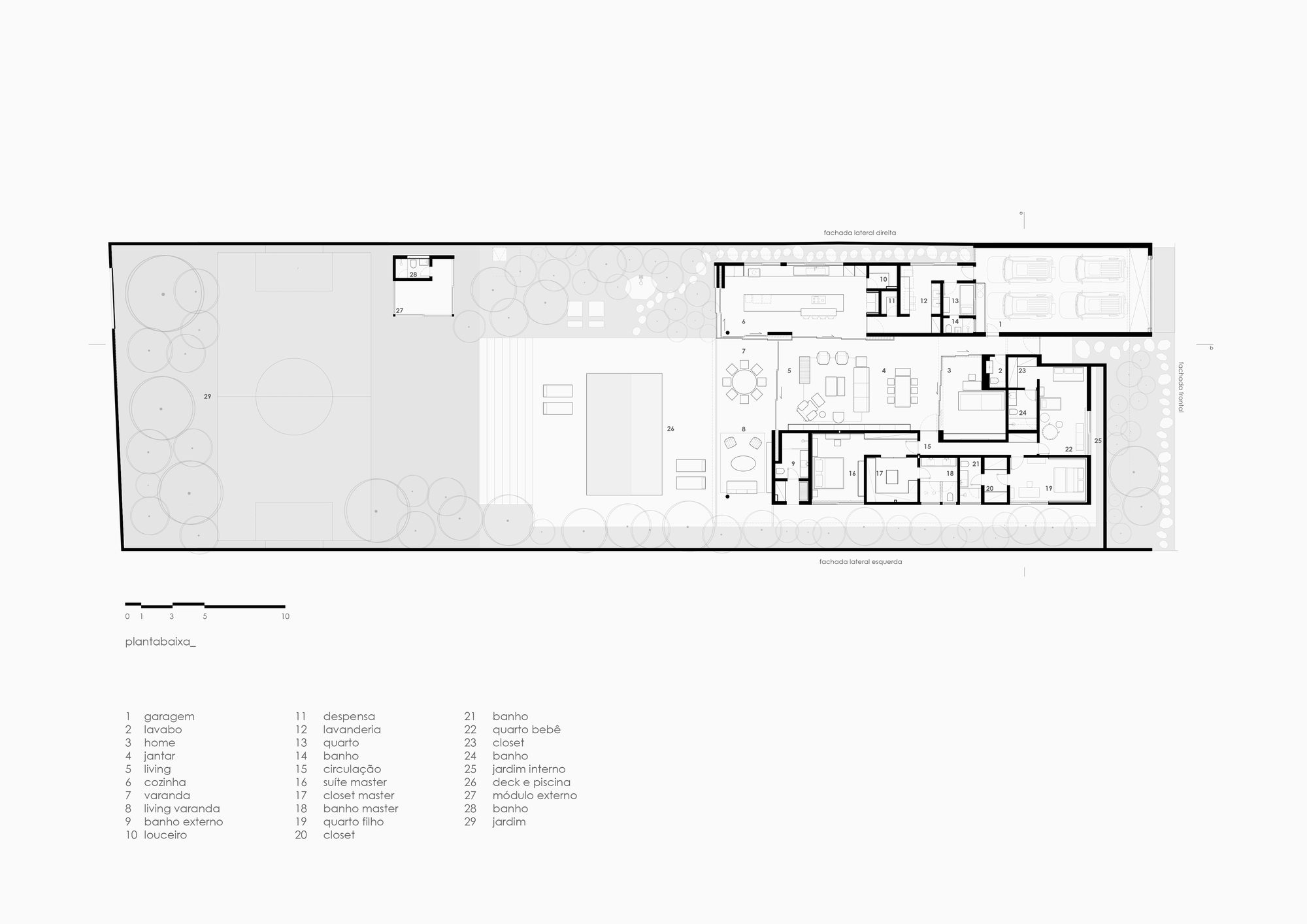
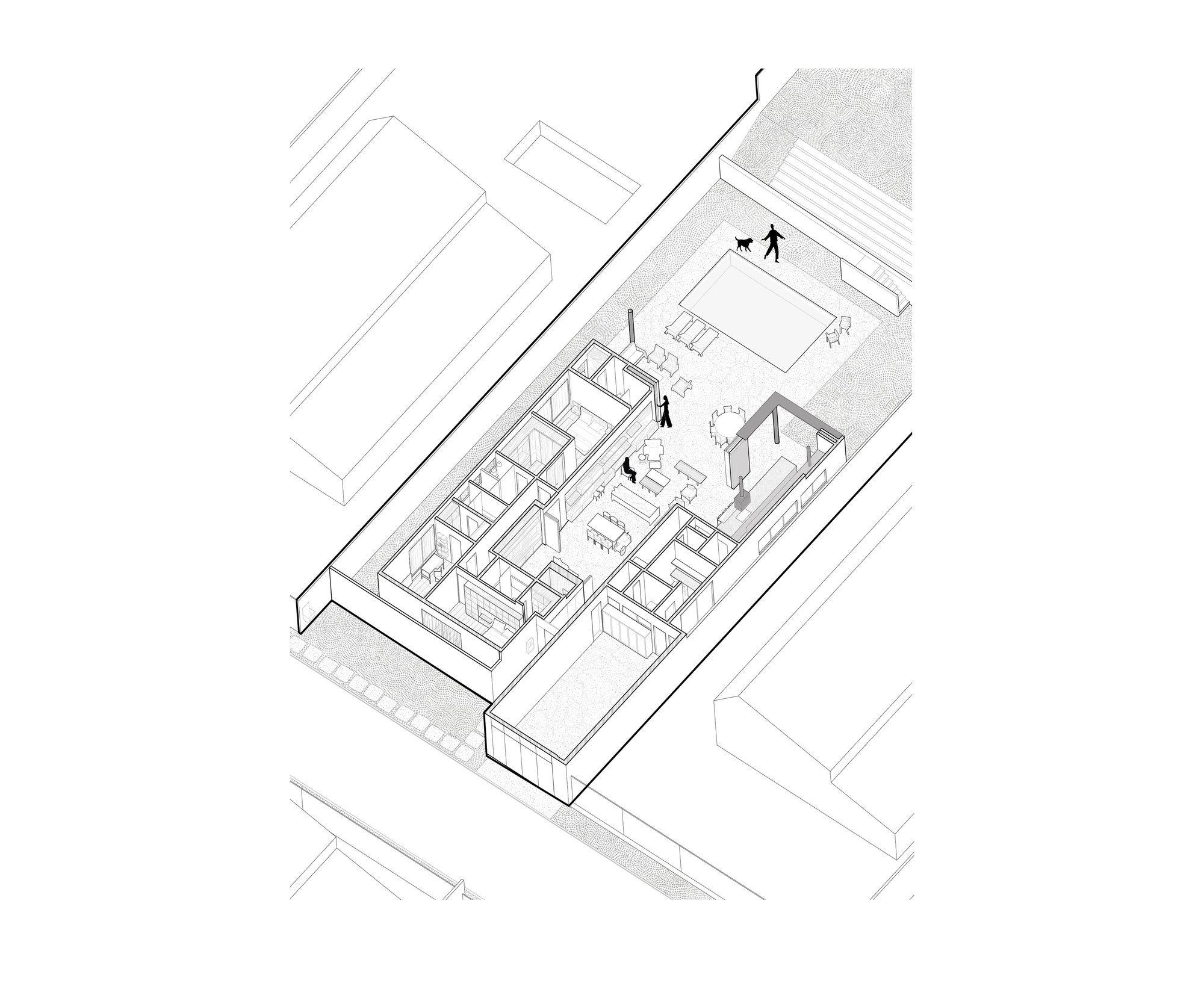
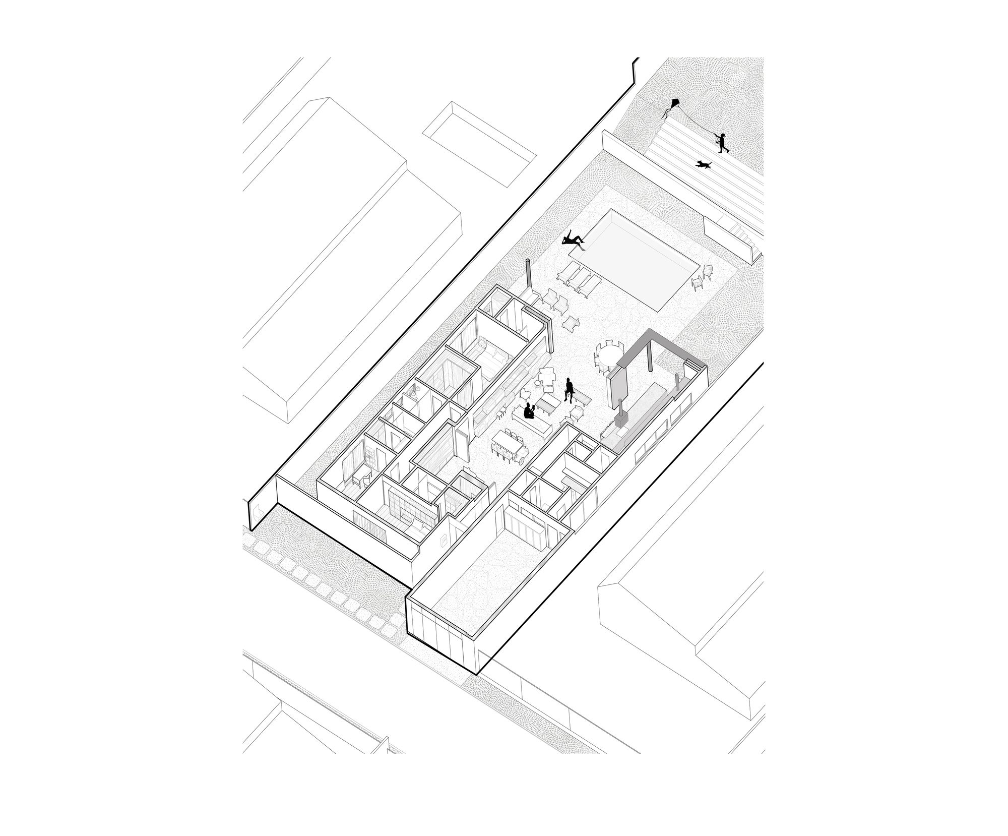
Based on the premise of utilizing the main existing structural elements, the project is organized on a single level formed by two blocks: one houses the intimate area, consisting of three suites with closets; the other concentrates the service spaces—kitchen, gourmet area, laundry, and garage. Between these blocks, the social area is articulated, where the living room, dining room, and home/office merge into a continuous space. The articulation between these environments is mediated by a system of sliding doors at different planes, allowing for a fluid connection between the kitchen, living room, dining room, and home/office. This dynamic of openings and closings—similar to the movement of an oyster—inspired the name of the residence.
Large sliding glass panels in the living and gourmet areas allow natural light to enter and project the garden into the house, dissolving the sensory limits of architecture and landscape. Other strategies for increasing light entry into the interior spaces include skylights in the restroom and bathrooms of the intimate area and low-sill windows in the bedrooms.
The natural wood cabinetry plays a central role in this gesture of continuity. The generous suspended shelf designed by the office and installed under the extensive white plane emphasizes horizontality and brings balance and coziness to the spaces. More than a purely aesthetic or functional element, this shelf holds objects, works of art, books, and photographs that carry the memories and personality of the residents. Complementing the space, the clients’ collection of furniture highlights iconic pieces of modernist and contemporary Brazilian design.
The choice of natural materials reinforces the narrative of the house. The rough stone flooring, with organic pagination, stitches together the living, dining, and gourmet spaces and extends to the outdoor area and pool, while the natural wood present in the cabinetry and the flooring of the intimate areas creates a welcoming atmosphere. The white walls reflect natural light, intensifying the sense of spaciousness, and the white marble used in the bathrooms reproduces the same effect. The project explores spatial boundaries through the study of formal composition and the dynamics of residential uses, resulting in a cohesive architectural response that proposes an experience marked by fluidity, balance, and intimacy.
Project Info
Architects: STUDIO PIPPA
Country: Brazil, Brasília
Area: 630 m²
Year: 2024
Photographs: Larisa Sad – Urban Sadness
Project Year: Priscila Gabriel, Virgínia Castro, Cecília Graf, Bárbara Sant’Anna
Landscape Design: Ana Paula Roseo Paisaigismo
Engineering & Consulting > Civil: RHC Engenharia





























