OCEANA is a mixed-use condo hotel, focused on commercial, touristic and multi-family activity, which is located at the corner of 28th Street and Cozumel Street, a few meters from one of the most popular beaches of the Mayan Riviera known as “Playa Mamitas”. The main design intent is to generate a social environment in a green and pleasant place, at one of the most vibrant zones in Playa del Carmen. The market at which this compound is aimed to are tourist and visitors, where they can rent a beach apartment close to the shore and enjoy the comfort from a hotel but with the freedom to benefit from the proximity to 5th Avenue. The project is inspired by the craftsmanship and traditional Mexican construction techniques, referencing endemic textures, which were translated in a fresh and contemporary way highlighting a careful selection and use of materials, specifically the use of exposed board-formed white concrete and wood. This project’s architectural design reflects a contemporary trend and pursues to become an urban point of reference for residents and visitors to the complex. The building optimizes its current views due to its large terraces, generating a unique experience in relation to the natural environment around it. The main access to the housing complex is located on 28th Street, either one can walk into the courtyard or drive into the parking garage. Moreover, the lobby welcome visitors and residents directly and is located at the end of the access stairs and ramp as a focal point. The main design concept is focused on opening the building envelope towards the street and the urban space, where the connection with the pedestrian street and nearby beach is enhanced, defining a living experience as the midpoint between having a solid communication to the outside and enjoying a private and secluded environment, finding the best of both situations. OCEANA is organized through a central courtyard, set half level above the main street, that generates a unique experience in relation with its natural and urban context, where the residents or visitors gradually get in touch with the amenities, corridors and apartments. Additionally, the gym, services and some amenities are located right next to the lobby.
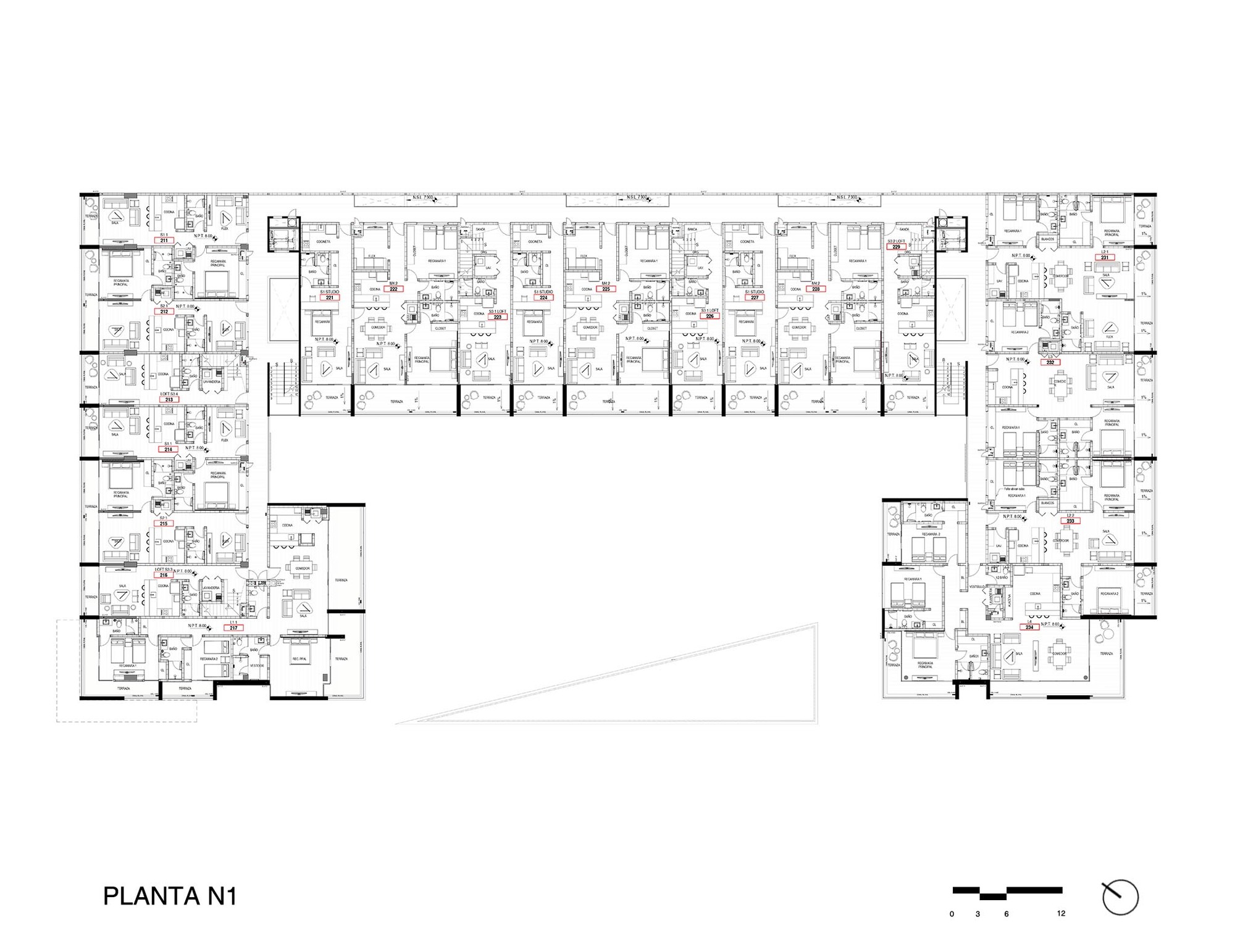
The central courtyard is undoubtedly the heart of the project, a large open space that integrates the amenities of the complex and promotes social interaction and gatherings. This patio exhibits extensive garden areas with native tree and plant species, along with some plants rescued from the original land. Similarly, in this area there is a pool, bar and lobby, which have a privileged location to the outside and at the same time the privacy of the residents is preserved, and noise is prevented from reaching directly during a social event. Exterior lighting design is shown indirectly, comfortably and elegantly, providing the necessary visibility for pedestrian traffic. Likewise, decorative lighting was placed on the garden and as a detail on the building facades and apartment terraces. The complex is divided into three main five-level blocks plus solariums. The building has a dynamic design on the facade, encouraging each apartment to look outward and have natural ventilation. The vertical circulation cores are located at both ends of the layout, connecting them through exterior corridors. Also. emergency exits, accesses and evacuation routes facilitate evacuation of the building and the entry of emergency staff. In the same way, the emergency stairs connect each floor and are naturally ventilated. Consistently, 34 apartments types were designed, ranging from 75 to 120 m2, according to the idea of having greater flexibility and adaptability according to the real estate market in Playa del Carmen. In total, 74 dwelling units were designed on 5 levels.
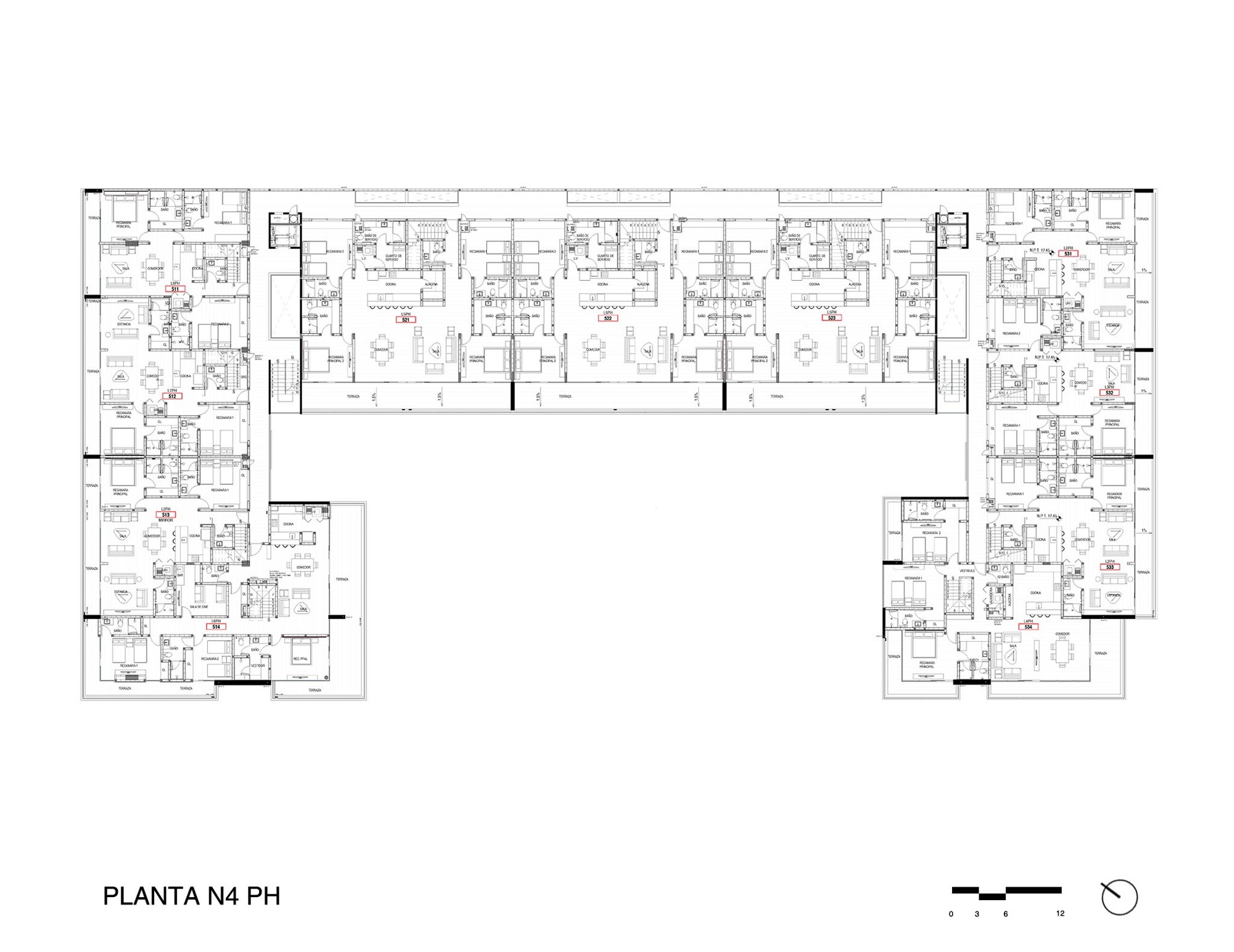
The PH are located on the 5th level, which have direct access to solariums through a private interior staircase. Solariums are private areas well equipped with grills, plunge pool, outdoor lounge and terrace, an ideal space for every occasion. All apartments have lighting in all its interior and exterior spaces. It also has telecommunications outlets located according to the needs and apartment type. The materiality is based on the use of exposed board-formed white concrete as the main element for walls, which becomes one detail that defines the architectural image and personality of the building. Similarly, this scheme of materials is also integrated with wood planks for the decks, white pebble and marble flooring with different finishes. In the housing interiors, on walls there was used a base of putty with white paint, while using wooden panels in bedrooms and social areas. Also, for the interior floor, a polished clear travertine Silk Georgette tech stone marble was selected in a 120 x 60 cm format, while for corridors and terraces the same material was specified, but with a brushed finish.
El patio central es sin duda el corazón del proyecto, un gran espacio descubierto que integra las amenidades del conjunto y promueve la convivencia. Este patio exhibe amplias áreas de jardín con especies de árboles y plantas nativas de la región, junto con plantas rescatadas del terreno original. En esta área, se cuenta con una alberca, bar y el lobby, las cuales tienen una ubicación privilegiada hacia el exterior. De igual manera, en esta área se cuenta con una alberca, bar y el lobby, las cuales tienen una ubicación privilegiada hacia el exterior y al mismo tiempo se mantiene la privacidad de los departamentos y se evita que llegue directamente el ruido en caso de un evento. La iluminación de las áreas exteriores se muestra de manera indirecta, confortable y elegante, aportando la visibilidad necesaria para circular peatonalmente.
Asimismo, se implementó iluminación decorativa en los jardines y como detalle en las fachas del edificio y en las terrazas de los departamentos. El conjunto se divide en tres bloques principales de cinco niveles de altura más los solariums. El diseño de las torres tiene un diseño dinámico en fachada, promoviendo que cada departamento tenga vista hacia el exterior y se ventile naturalmente. Los núcleos de circulación vertical se ubican en ambos extremos de la planta, conectándolos por medio de pasillos exteriores. Las salidas de emergencia, accesos y rutas de evacuación facilitan el desalojo del edificio y la entrada de personal de emergencia. De igual manera, las escaleras de emergencia comunican cada planta y se ventilan naturalmente. Se diseñaron 34 tipos de departamentos, que van desde los 75 al 120 m2, conforme a la idea de tener una mayor flexibilidad y adaptabilidad de acuerdo al mercado inmobiliario en Playa del Carmen. Se diseñaron 74 departamentos en total en 5 niveles.
En el N5 se ubicaron los PH, los cuales tienen acceso directo a los solariums por medio de una escalera interior privada. Los solariums son áreas privadas equipadas con asadores, plunge pool, sala exterior y terraza, un espacio ideal para un evento o para la convivencia familiar. Todos los departamentos cuentan con iluminación en todos sus espacios interiores y exteriores. Se cuenta además con salida de telecomunicaciones ubicadas de acuerdo con las necesidades y el tipo de departamento. La materialidad se basa en el uso del concreto entablerado blanco como elemento principal, el cual se convierte en uno de los detalles recurrentes y define la imagen del edificio. De igual manera, a este esquema de materiales se integra también con madera para los decks, piedra bola blanca y mármol en distintos acabados. En los interiores de los departamentos se utilizó una base de masilla con pintura blanca en muros, utilizando detalles de lambrines de madera en recámaras y área social. También, para el piso interior se seleccionó un mármol Silk Georgette claro pulido en formato de piedra tecnológica 120 x 60 cm, mientras que para pasillos y terrazas se especificó el mismo material, pero con acabado cepillado.
Project Info
Architects: rdlp arquitectos
Area: 14844 m²
Year: 2018
Country: Playa del Carmen, Mexico
Photographs: Jorge Taboada
Manufacturers: AutoDesk, CASTEL, Mosaicos Venecianos de México®, NewTechWood, Osel, URREA
Lead Architect: Rodrigo de la Peña Larralde
Design Team: Rodrigo de la Peña, Delia Leal, Miguel Galván, Eduardo Ruiz, José Juan Garza, Roberto Cavazos, Madeira Agüero, Omar García.
Engineering: Ingeniería Alternativa
Construction: Arqcan



























Sophie Tremblay is a Montreal-based architectural editor and designer with a focus on sustainable urban development. A McGill University architecture graduate, she began her career in adaptive reuse, blending modern design with historical structures. As a Project Editor at Arch2O, she curates stories that connect traditional practice with forward-thinking design. Her writing highlights architecture's role in community engagement and social impact. Sophie has contributed to Canadian Architect and continues to collaborate with local studios on community-driven projects throughout Quebec, maintaining a hands-on approach that informs both her design sensibility and editorial perspective.

