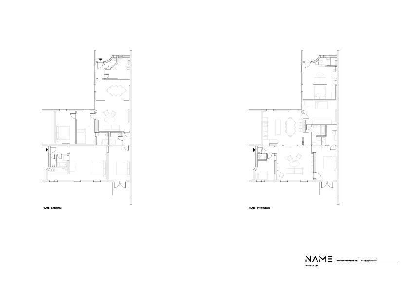
OBF Residence, The combination of two Parisian apartments to create a unique family dwelling Our brief was to create a new home for a family with two young children, who wanted to stay in central Paris but who also wanted the kind of fluid, open, light-filled spaces not often possible in apartment liv-ing. Two adjoining apartments have been combined to create a single family sized flat along with a well-designed studio for rental.
Layouts have been reconfigured to harness the light available from two ele-vations, with the the living room located along the southern façade to maximise sunlight, and a kitch-en/dining space located along the northern façade. Bedrooms and office space are located towards the periphery with bespoke joinery employed to create division but blur the distinction between walls and storage to maximise space.
Some Parisian cachet has been lent to a fairly standard space by exposing the original wooden struc-ture. Finishes are minimal, with Dinesen pine flooring and a palette of whites – walls, painted wood, quartz countertop & white-washed wooden floors – creating a neutral yet stylish backdrop to family life. The bathroom combines Carrara marble and functional concrete for a contemporary feel.
With no corridors, every square meter of available space is in use, rather than being lost to circulation. The two doored bathroom can be accessed from both the children’s and guest bedrooms, creating a loop and providing an enhanced feeling of spatial circulation. The apartment creates the ultimate in family friendly living, with communal space which cater for the variety of different activities – play, cooking, living room, watching tv or entertaining guests.
Project Info
Architects: NAME architecture
Country: France, Paris
Area: 140 m²
Year: 2015
Photographs: NAARO
Manufacturers Dinesen, Laufen, Delta Light, Ligne Roset, Ritmonio, caravane: Dinesen










