Oasis House, Located in the countryside of São Paulo, Casa Oásis, designed by Shinagawa Arquitetura, was conceived as a residence adapted to the region’s hot climate and deeply connected to its surroundings. The project is guided by three main principles: thermal comfort achieved through passive strategies, continuous integration between architecture and landscape, and the expressive use of materials. Water, greenery, and carefully filtered natural light become central elements, transforming the house into a contemporary refuge of balance and well-being.
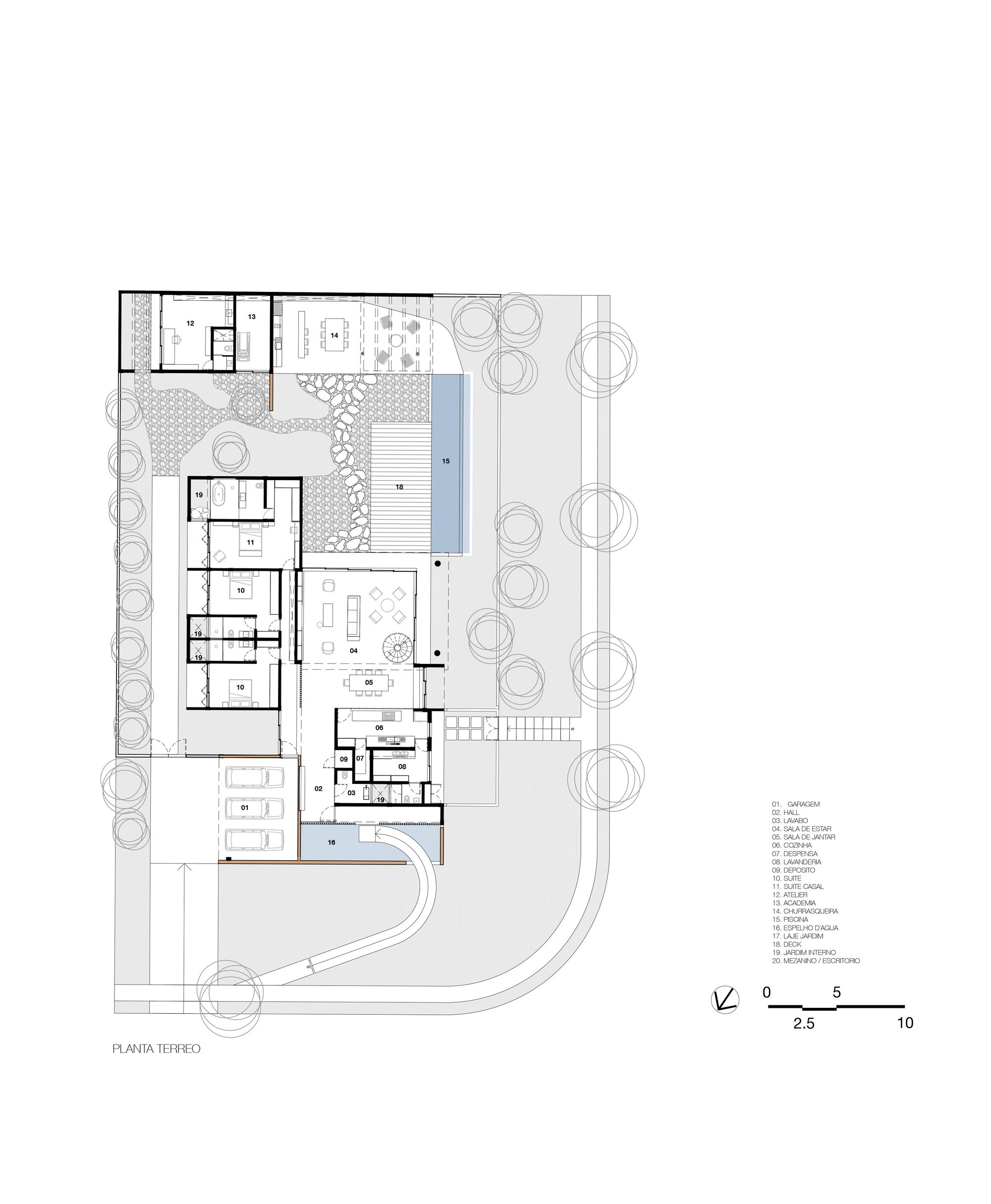
The initial challenge lay in organizing the program in a way that ensured fluidity, comfort, and privacy. Reconciling open social areas, reserved bedrooms, and direct connections to the garden defined the volumetric composition and led to the development of strategies for climatic performance. The house adopts solutions that combine protection, ventilation, and transparency. An L-shaped element, formed by the metallic sandwich roof and a suspended rammed-earth wall, acts as a climatic filter and shades the double-height living room. Cobogós, brise-soleils, and ventilated skylights soften sunlight, while the reflecting pool and cross ventilation naturally cool the interiors. These combined strategies provide thermal efficiency without sacrificing spatial amplitude or visual permeability.
Materiality plays a fundamental role in both performance and aesthetics. Rammed earth, used on the west façade and at the entrance, provides identity and continuity with local traditions, contrasting with exposed concrete, wood, and glass. This dialogue emphasizes authenticity and solidity. A green roof extends above the suites, working as natural thermal insulation while reinforcing the connection between architecture and landscape. Inside, custom-designed carpentry, natural finishes, and furniture by Brazilian designers create a tactile and welcoming atmosphere.
The project also integrates ecological solutions that strengthen its sustainable dimension. A rainwater harvesting and reuse system, solar water heating, and photovoltaic panels reduce resource consumption and dependence on artificial systems. These strategies complement the passive solutions, ensuring energy efficiency and environmental responsibility.
The program is mostly organized on the ground floor, where social areas and bedrooms connect directly to the garden. On the upper level, a mezzanine houses a TV room and office that open onto the green roof, forming an intimate living space that extends into the garden terrace. A metal staircase links the two levels with lightness, reinforcing the contemporary language and fluidity of the project.
More than a shelter, Casa Oásis proposes an architectural experience that values everyday life, where environmental comfort, contact with nature, and the tactile quality of materials are inseparable. The result is a residence that balances technique and sensitivity, reaffirming Shinagawa Arquitetura’s commitment to projects that unite form, function, and meaning.
Project Info
Architects: Shinagawa arquitetura
Country: Brazil, Cravinhos
Area: 520 m²
Year: 2025
Photographs: Evelyn Muller
Interior Architecture: Rogerio Shinagawa, Hanna Akemi castro
Technical Design: Rafael Nery, Gabriel Massao, Eduarda Savian
Structural Project: Daniel Freitas
Produção: Deborah Apsan






















Anastasia Andreieva is an accomplished Architectural Projects Editor at Arch2O, bringing a unique blend of linguistic expertise and design enthusiasm to the team. Born and raised in Ukraine, she holds a Master’s degree in Languages from Taras Shevchenko National University of Kyiv. Her deep passion for architecture and visual storytelling led her to transition from translation and editorial roles into the world of design media. With a keen eye for conceptual clarity and narrative structure, Anastasia curates and presents global architectural projects with precision and flair. She is particularly drawn to parametric and digital design, cultural context, and emerging voices in architecture. When I’m not analyzing the latest architectural trends, you’ll probably find me searching for hidden gems in cityscapes or appreciating the beauty of well-crafted spaces. After all, great design—like great connections—can be found in the most unexpected places. Speaking of connections, because architecture isn’t the only thing that brings people together.






