An activity that is as flexible and free as possible, without spatial constraints, providing a campsite, market and event venue similar to a park lawn. The design concept of Noxbase is to be able to provide a flexible layout at any time for different activities and guests. Therefore, a building that feels like a rapidly deployable “structure,” similar to an event, would be most suitable.
The public area consists of two large greenhouses with steel structures paired with PVC panels. This deliberately simplified “shell” is designed to accommodate diverse interior possibilities. Through careful integration of MEP systems, this envelope flexibly adapts to various layouts, whether as an outdoor hotel, urban resorts, drinking venue in wilderness mountain settings, off-road, cycling bases or event venue.
The ground floor primarily serves as communal space. All functions – reception, dining, bar, café, activity sandpit and onsen hall – maintain seamless visual and circulatory connections with both interior courtyards and exterior landscapes. Material selections and greenery arrangements consistently preserve the atmosphere of an outdoor park. “The architecture could vanish, whilst leaving the park still function independently”. The building itself should not assert excessive presence.
While adopting the Japanese “onsen” layouts and facilities, we still want to keep the urban feel of the space through material selection, facade decoration and rest area layout. By maximizing the use of element “oyu” (urban bathhouse) paired with a see-through park experience, even taking a bath can be very cool.
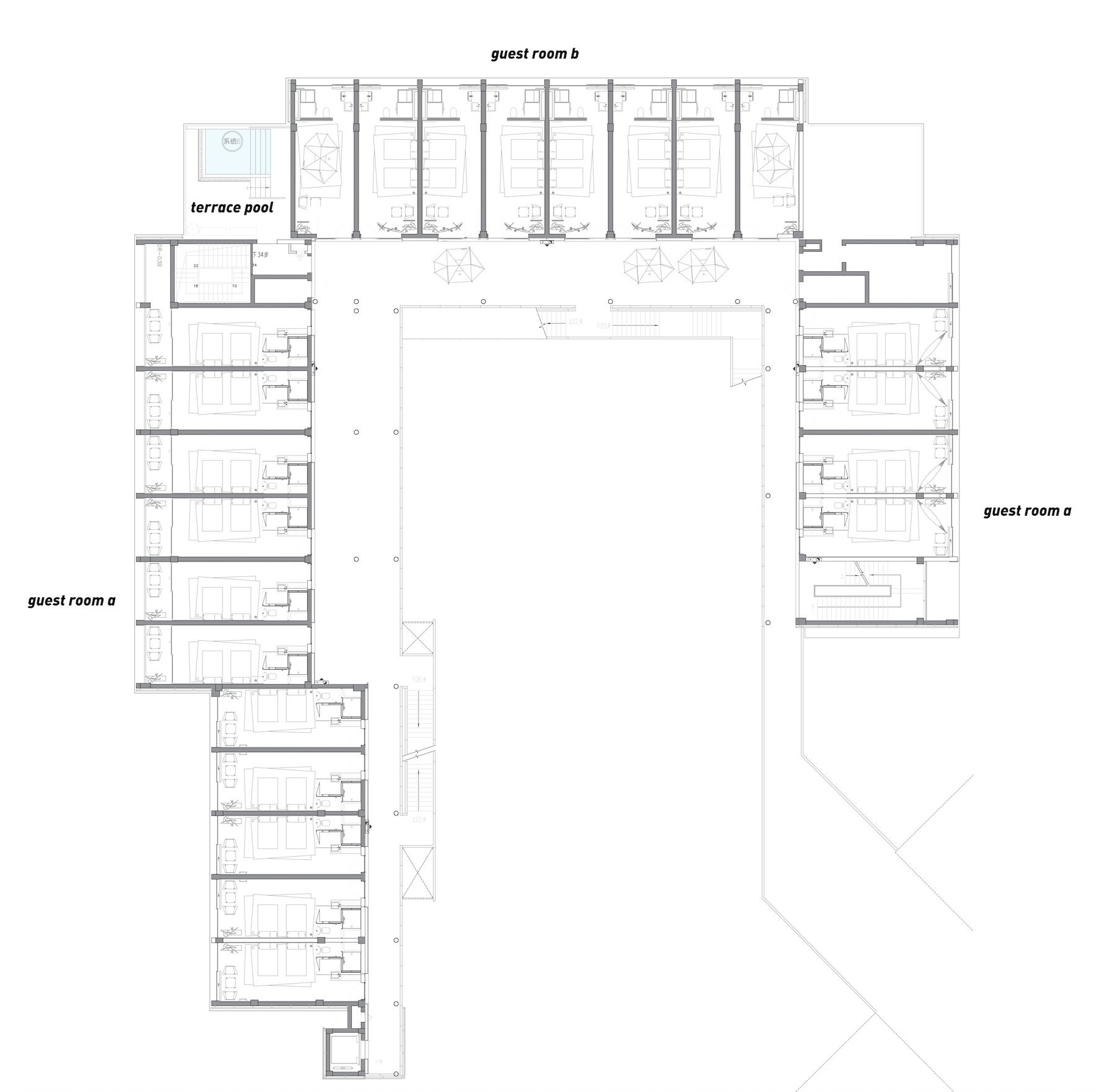
The guest rooms also adhere to the concept of camping “shell”, featuring comfortable water and electricity facilities while maintaining the joy of outdoors. Being bi-directionally permeated and completely integrated with the public terrace, the boundary of the “shell” is not restricted by the architecture. It is entirely in the hands of the guests.
Like the public areas, the layout of guest room has also been constantly evolving. Right from the start of the “mockup room” plan, providing varies possibilities enabling guests to integrate their own personalities into the space has always been the main purpose of the design. The “shell” prioritizes comfort first and then invites guests to imprint the space with their own identity.
Project Info
Architects: ClubBuildShop Architects
Area: 8762 m²
Year: 2024
Country: Huzhou, China
Photographs: Qiang Shen, Zhijun Wang
Lead Architects: Adam FANG
Landscape: By Design
Consultants: Gao Yanchun Studio of Huzhou Urban Planning and Design Institute
Design Team: Adam FANG,Zhi Jun WANG,Yan SONG
Clients: Anji Racation Hotel Co., Ltd.
















































Madeline Brooks is a Projects Editor at Arch2O, where she has been shaping and refining architectural content since March 2024. With over a decade of experience in editorial work, she has curated, revised, and published an array of projects covering architecture, urbanism, and public space design. A graduate of the Harvard University Graduate School of Design, Madeline brings a strong academic foundation and a discerning editorial eye to each piece she oversees. Since joining Arch2O, she has played a pivotal role in shaping the platform’s editorial direction, with a focus on sustainability, social relevance, and cutting-edge design. Madeline excels at translating complex architectural ideas into clear, engaging stories that resonate with both industry professionals and general readers. She works closely with architects, designers, and global contributors to ensure every project is presented with clarity, depth, and compelling visual narrative. Her editorial leadership continues to elevate Arch2O’s role in global architectural dialogue.






