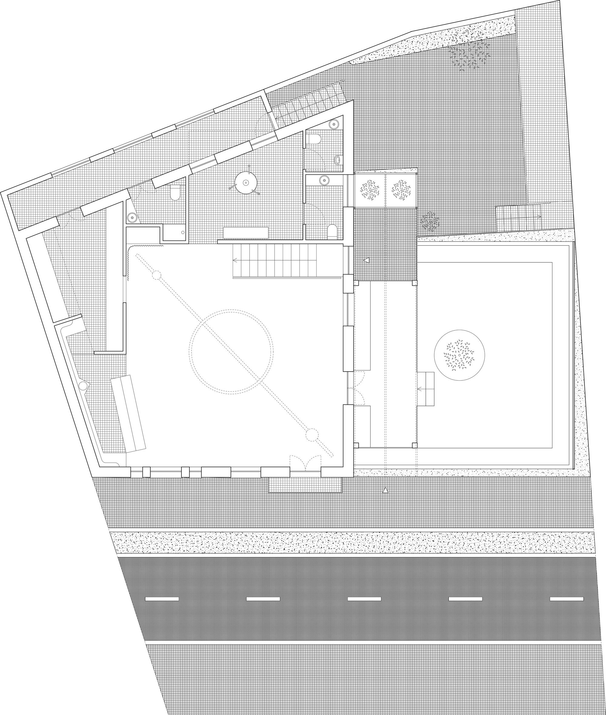
Norma Restaurant, Two square rooms are essentially the same, though one sheltered, one exposed.
They feel drawn to one another, so while the first aims to expand as much as possible in every direction, almost disintegrating towards the sky, the second defines a limit in what seems to be the promise of a slender roof and a thick brick wall turned inward.
Despite these intentions, both rooms remain fundamentally as they are, even if a little closer to each other.
Project Info
Architects: HUGOSANTOALHA
Country: Portugal, Guimarães
Area: 205 m²
Year: 2023
Photographs:Francisco Ascensão + Marta Machado
Lead Architects: Hugo Santoalha













