The Morphing Pavilion by the Tai Lake
The Nine-Square Pavilion is situated within the Bogongdao Ecological Park of Wuxi City. The plot is adjacent to Qinyin Bridge, with an open view on the east side; a bamboo grove on the west; and only ten meters away from Li Lake, an inner lake of Tai Lake, on the south side, boasting exceptional sceneries. The function of the project is a tea house. Our initial concept involves a glass pavilion with some interior spaces that embraces the surrounding landscape conditions.
The materiality of glass
In the context of glass curtain walls, people are often primarily focus on the transparency, as if glass has no material presence. This perspective also aligns with some classic modernist glass buildings: glass is used to avoid the sensation of glass. In the Nine-Square Pavilion, we aimed to re-emphasize the materiality of glass: it serves as both an operable physical boundary between inside and outside; simultaneously, it also tries to reflect the layering and varying degrees of transparency through the juxtaposition and interleaving of glass partition walls.
Morphing pavilion
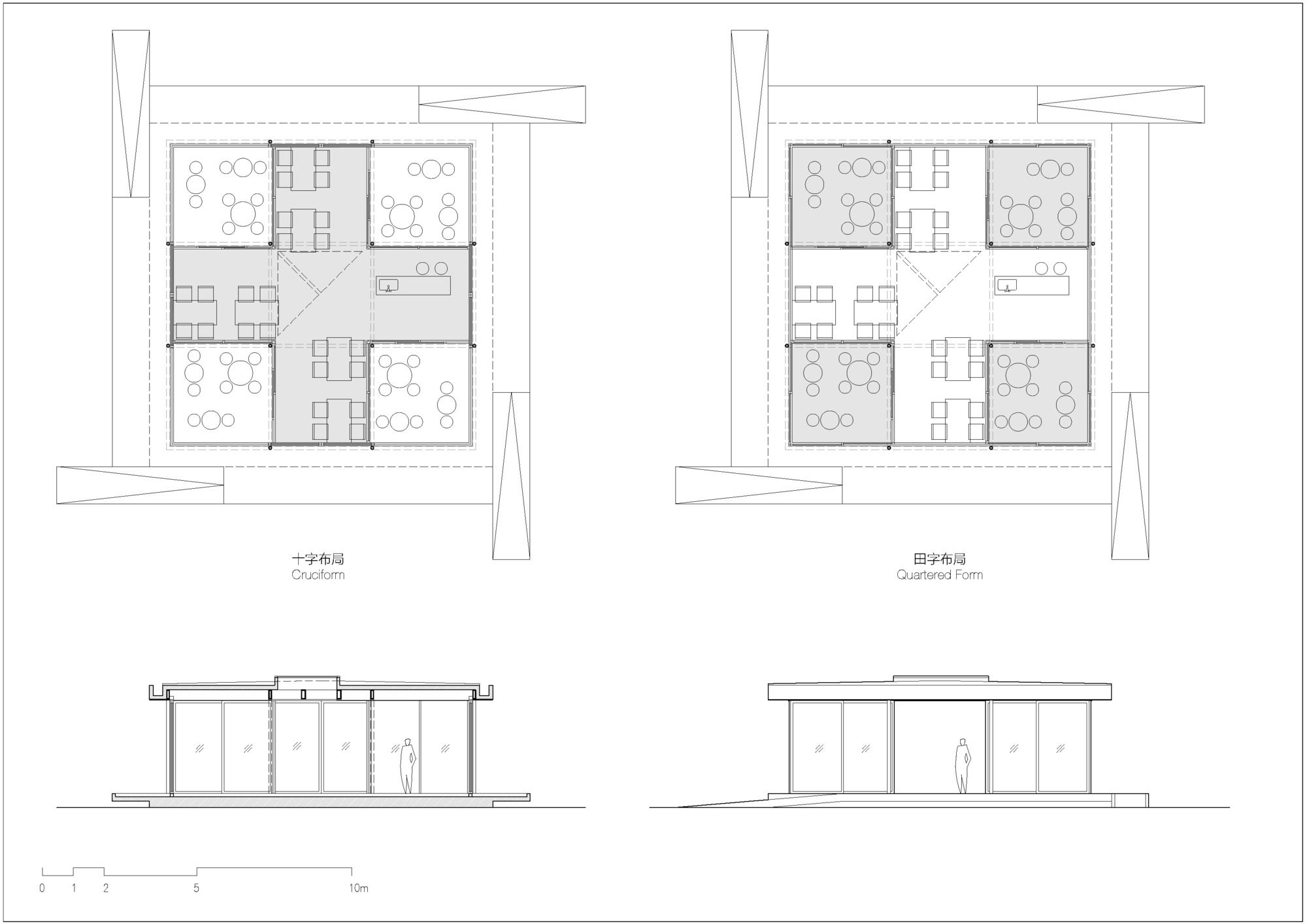
As a traditional Chinese pattern named JiuGongGe or Nine Palace Grid and a game of numbers, nine-square embodies the evolution and transformation of elements within a 3×3 grid. A nine-unit system is delineated on the square platform, with each measuring 3.3m x 3.3m. The roof is supported by twelve slender round steel columns at the intersections of the grid. 24 glass sliding doors arranged along the grid lines to open and enclose the movable glass partition system. According to different usage scenarios, these sliding doors can allow transformations between indoor “squares” and semi-outdoor “squares “.
As the result, people may experience the encircling and superposition of the waves in the lake in the reflections of the glass panes whether being inside the room(s) or sitting under the eaves.
Project info :
Architect: Atelier FCJZ
Country: Wu Xi Shi, China
Photographs:Fangfang Tian






















