Barnard College
Located at the heart of the campus of Barnard College, the new teaching and learning center will become a hub of the academic and intellectual life. The 132,000 square-foot interdisciplinary building brings students and faculty together distinctively, facilitating collaborations and fostering dialogues.

Magda Biernat
“We are thrilled to partner with SOM to develop this important new campus landmark“, said Barnard President Debora Spar. “It was crucial to find a firm that would work well with our community throughout the design and construction process, and SOM is the perfect choice. Barnard has a small campus and each building plays a vital role in our community. I am confident that this new building will have a transformative impact on our campus and move with us squarely into the future“.

Magda Biernat
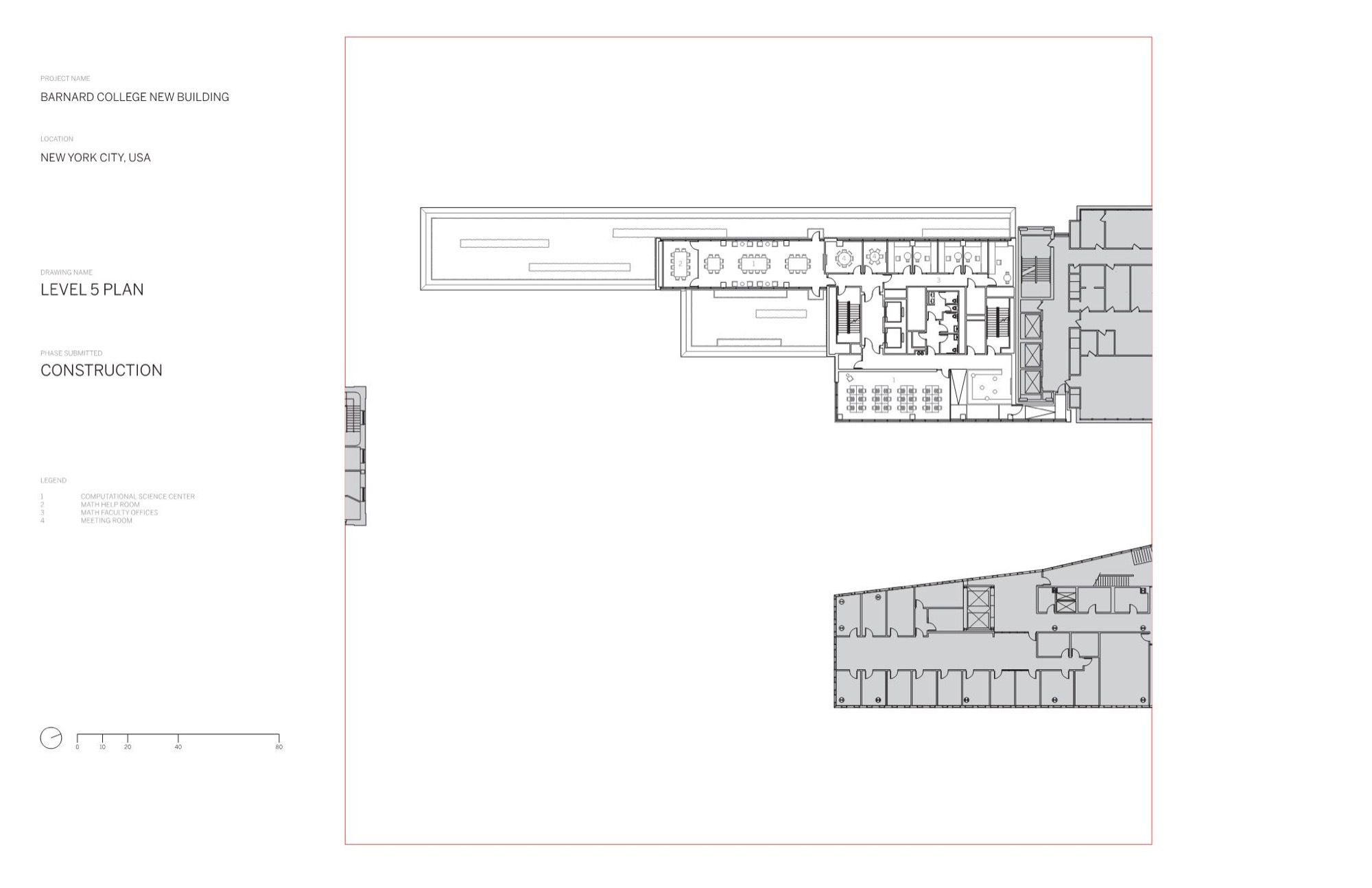
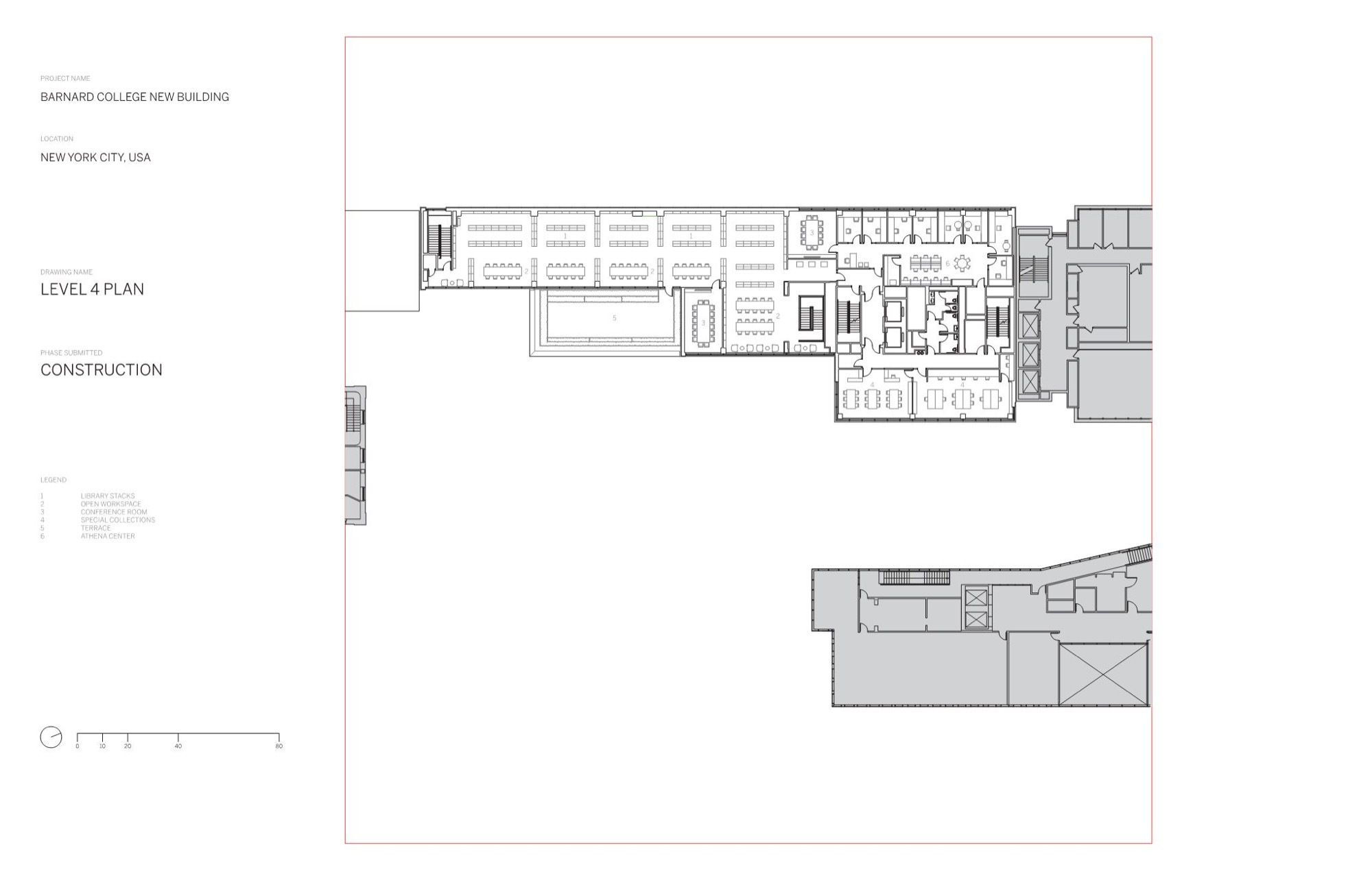
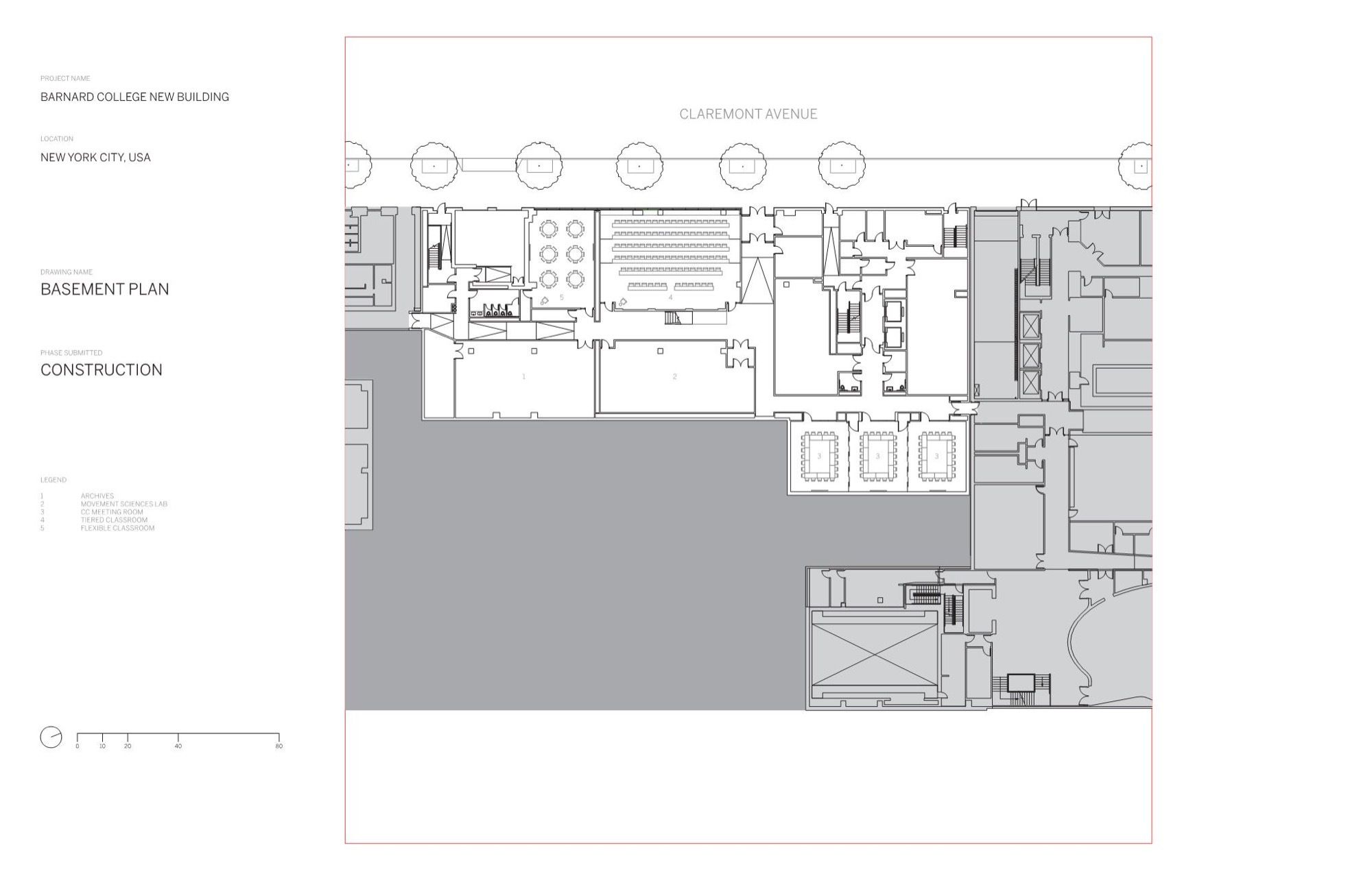
The teaching and learning center’s program of diversified, yet synergistic resources, culminates in a celebrated new library. The library celebrates Barnard’s collections, expands user seating and archival storage and supports new modes of learning through state-of-the-art multimedia labs and learning spaces. As the campus is a scholarly center, the library also will link departments and disciplines, physically and philosophically. To that effect, the library connects two signature programs: the digital commons which will host a range of teaching labs and flexible learning spaces that utilize new media and digital technologies, and a computational science center which will support mathematics and computational research.
The project also includes expanded conference facilities, interdisciplinary workspaces for four academic departments and a new home for the distinguished Athena Center for Leadership Studies and the Barnard Center for Research on Women. The new building’s design is a bespoke response to its unique position overlooking Lehman Lawn. The building’s massing is tailored to this beloved site through terracing that functions dually – inviting sunlight to the campus lawn while being a respectful neighbor to its community. The terraces extend the lawn onto the building to create inviting outdoor spaces as well.

Magda Biernat
Like Barnard College itself, the teaching and learning center will be a distinctive place of community, collaboration and connections. Physically embodying a culture of intellectual collaboration and interdisciplinary interchange, it will create cross-departmental ties, stimulate global connections, inspire students and foster bonds between students and faculty. This transformative building will prepare Barnard College for another 125 years of service to women of intellect, ambition and vision.

Site Plan
“We feel privileged to be working with Barnard on this project“, said Roger Duffy, SOM’s Partner in Charge of Design for this project. “Through our design process and engagement with the community, we hope to capture the spirit of Barnard as an institution of higher learning and to create a building that both reflects that spirit and gives it space to thrive. We …. look forward to collaborating with a diverse group of the Barnard community as we move forward with the design process”.


Â
Project Information :
Location : Columbia, USA
Project Year : Expected to be 2018
Total Area : 189,000 square feet