New Middle School and STEAM Design Center | Flansburgh Architects
Saigon South International School is an independent college preparatory school for K-12 students from over 40 countries grounded in a spirit of inquiry. This project involves two new buildings, a Middle School and a STEAM Design Center.
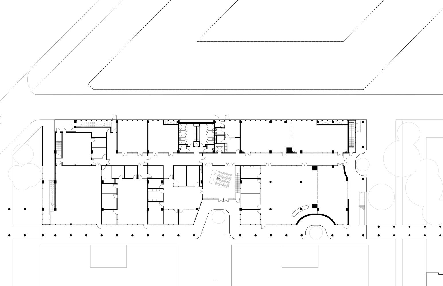
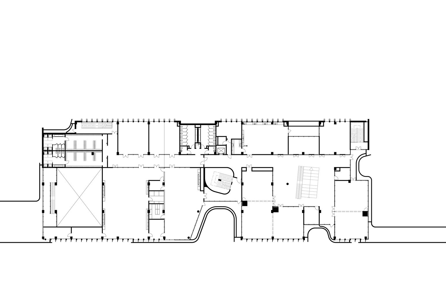
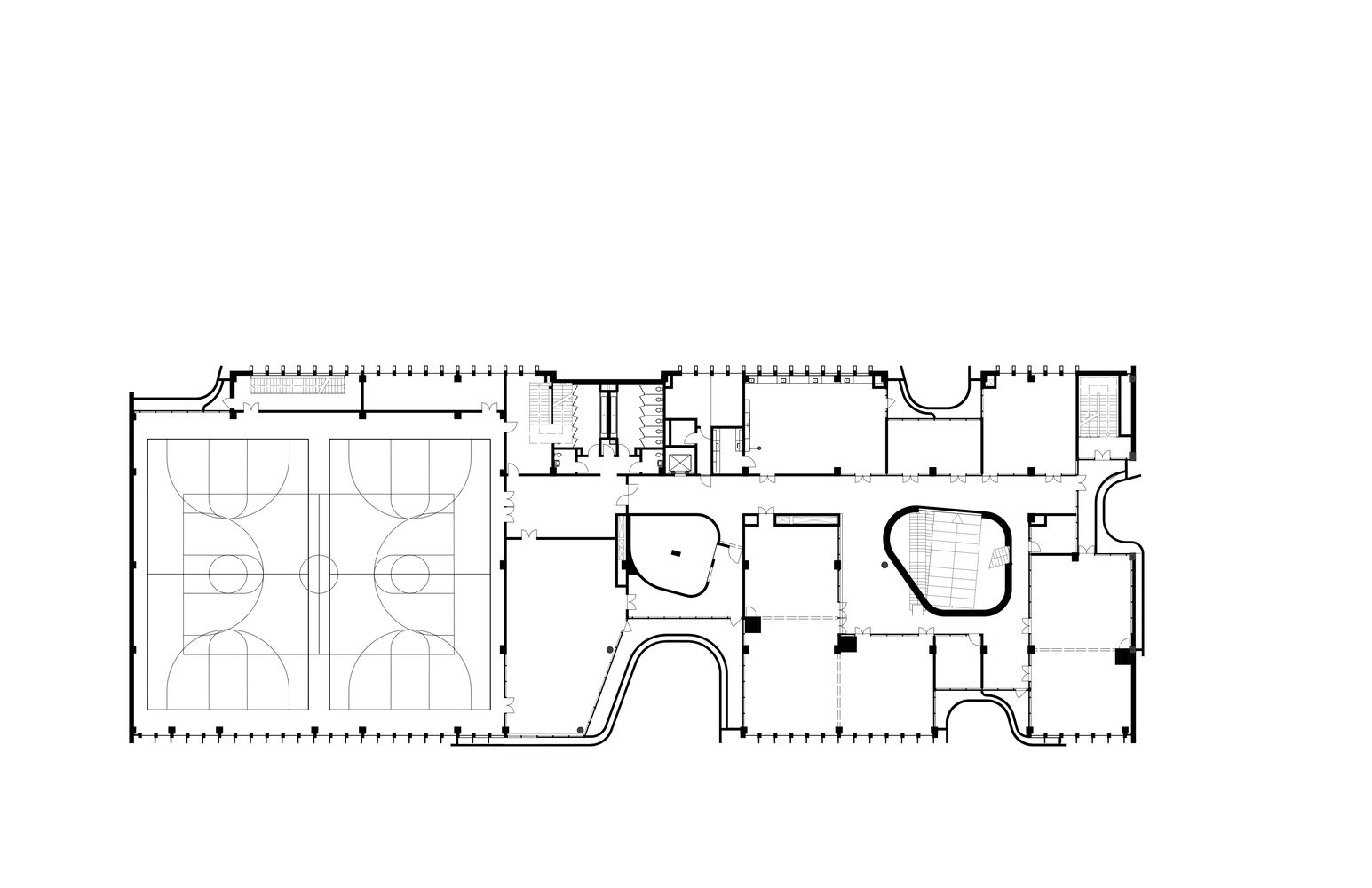
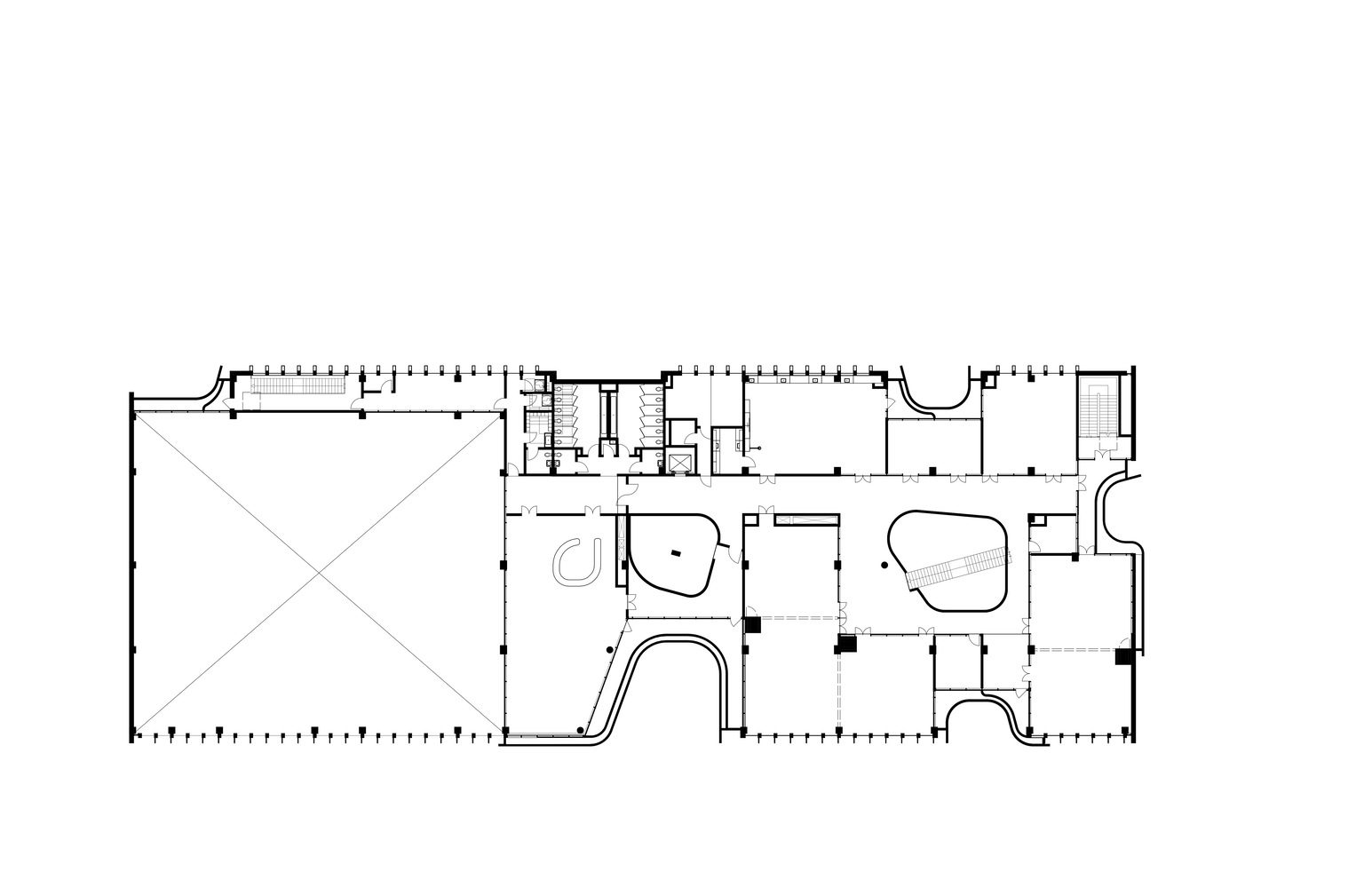
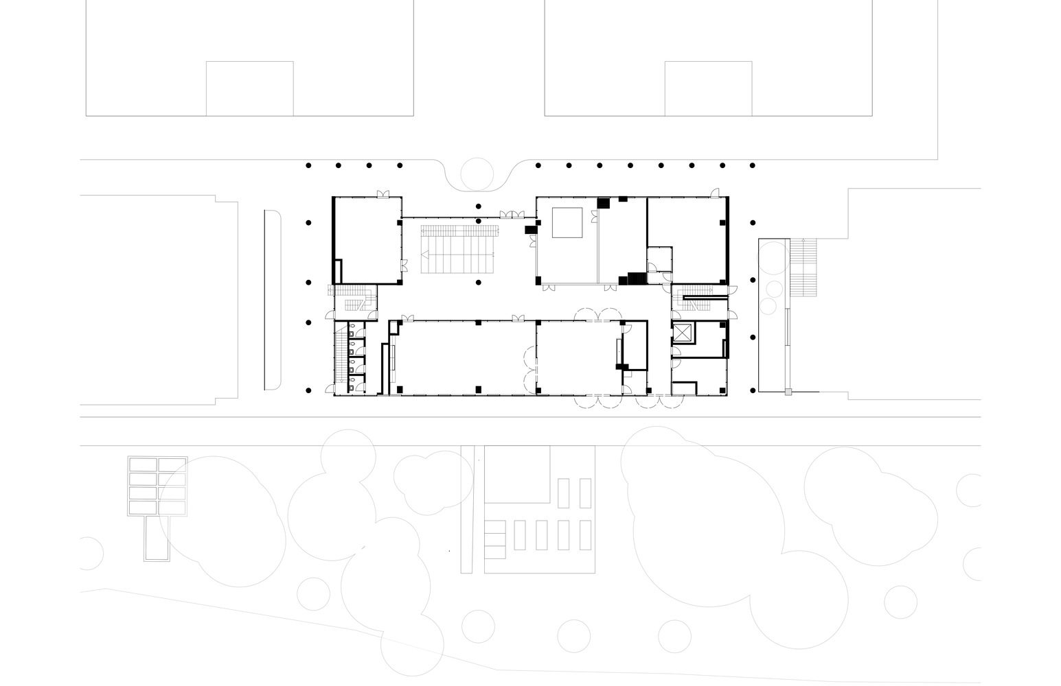
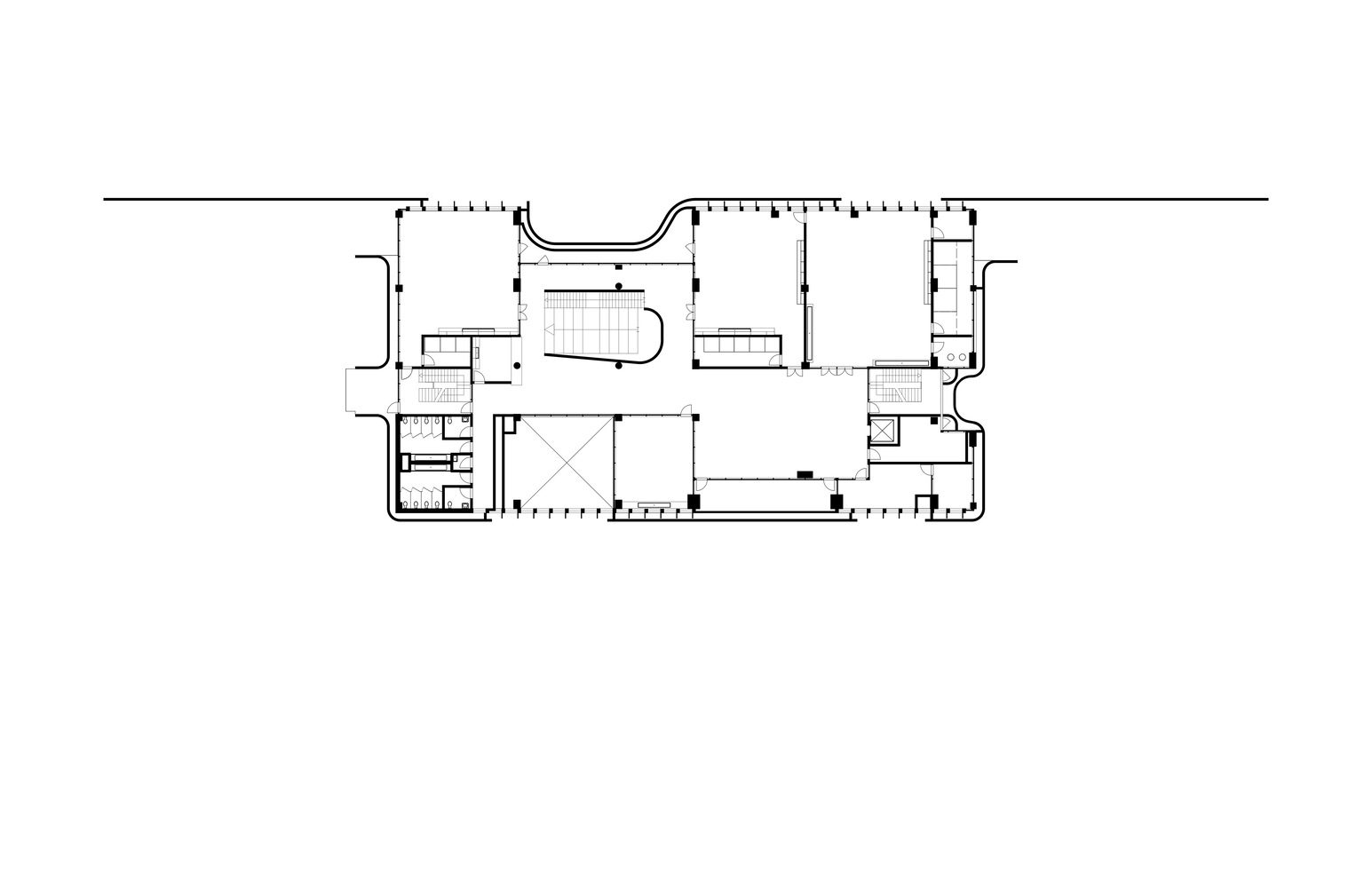
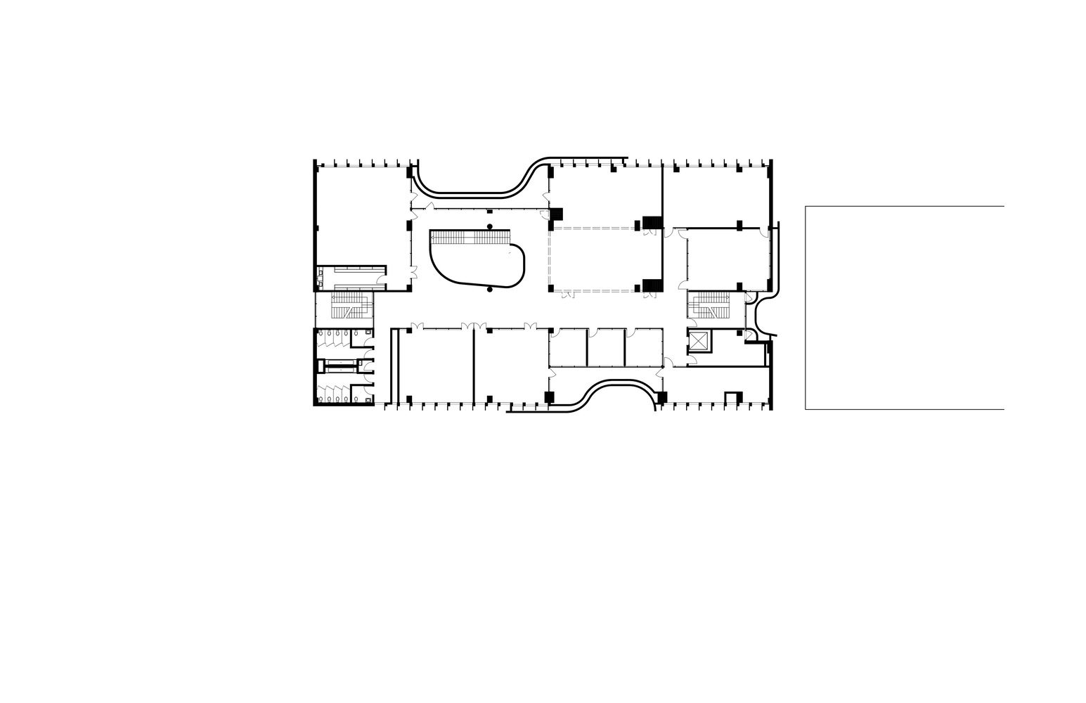
The STEAM Design Center includes five science labs, two art rooms, independent art studios, a 3D art and printmaking room, and an indoor/outdoor art gallery. The Center provides opportunities for high school students to explore their creativity, kindle their passions, and develop essential future-ready skills in a transparent, highly flexible, cross-disciplinary learning environment The Middle School is designed for students in grades 6-8, with their emotional, creative, and physical growth in mind. Skylit atria encourages collaboration and a sense of belonging. Bright, daylit, open spaces encourage hands-on learning and foster students’ experimentation. They include a 220 sqm black box theater, dance room, classrooms, science labs, breakout rooms, and maker spaces. The library is a community hub for research and exploration while the gymnasium offers opportunities for physical activities, team sports, and community-building events.
The two buildings are thoughtfully positioned on opposite sides of an expansive athletic field and green space. Their architecture complements one another with light colors and undulating curves that interact harmoniously with their gridded structure. Planters, inspired by the terraced rice fields of Sa Pa, accentuate the curvature of the facility, cascade with native species, provide visual interest, and break up the building plane. The dynamic interplay of these elements is accentuated when the wind or rain introduces movement to the lush greenery. The interiors of the atria feature bamboo that upholds a commitment to local aesthetics and sustainability and captures daylight. Levels of the building serve as metaphorical branches extending to exterior garden balconies and ultimately to the river, fostering a seamless connection between educational spaces and nature.
The site is part of a city of islands defined by existing rivers. The two buildings sit within one of five walkable, mixed-use island neighborhoods. The school is located along pathways that extend into small blocks, accessible by a visually intriguing 10-minute stroll. Anchored to the Dia Canal, the project’s location strengthens a sense of place, provides higher visibility, and is part of a larger campus serving the entire city. The new facilities take advantage of their prominent location. Curving balconies that harmonize with a serpentine waterway offer views of the water. The two new buildings fill underutilized gaps between existing campus buildings to maximize a new central green.
Project Info:
-
Architects: Flansburgh Architects
- Country: Vietnam
- Area: 277723 ft²
- Year: 2024
-
Photographs: Matthew Millman, Jonathan Mitchell
-
Lead Architects: David Croteau, Principal-In-Charge; Madeleine Le, Project Architect
-
Design Team: Flansburgh Architects
-
Architecture Offices: Sino-Pacific Construction Consultancy Co., LTD
-
Engineering & Consulting > Acoustic: Acentech
-
Engineering & Consulting > Mep: Atelier Management & Design Consultancy Co., LTD
-
Engineering & Consulting > Structural: Sino-Pacific Construction Consultancy Co., LTD
-
Interior Design: BOHO Decor
-
General Constructing: VICONS Construction and Engineering Co., LTD
























































