Neo Solar Power Corporation designed by J. J. Pan & Partners, The façade takes up the metaphor of transferring light energy to electric power with solar panels to achieve a uniqueness of the contour. The exterior walls are designed as a continuous wave of glass panels in the concept of “starting-folding-concluding“ to express the design ideas of “undulation, transference.” Half-unit glass and aluminum curtain walls are sectioned into 8 trapezoid units, finished with over 350 glass-cutting patterns. The perimeter of each floor varies with the advancing and recessing surface walls, and the trimming steel beam curving with the floorboard serves as the fixed end of the curtain walls.
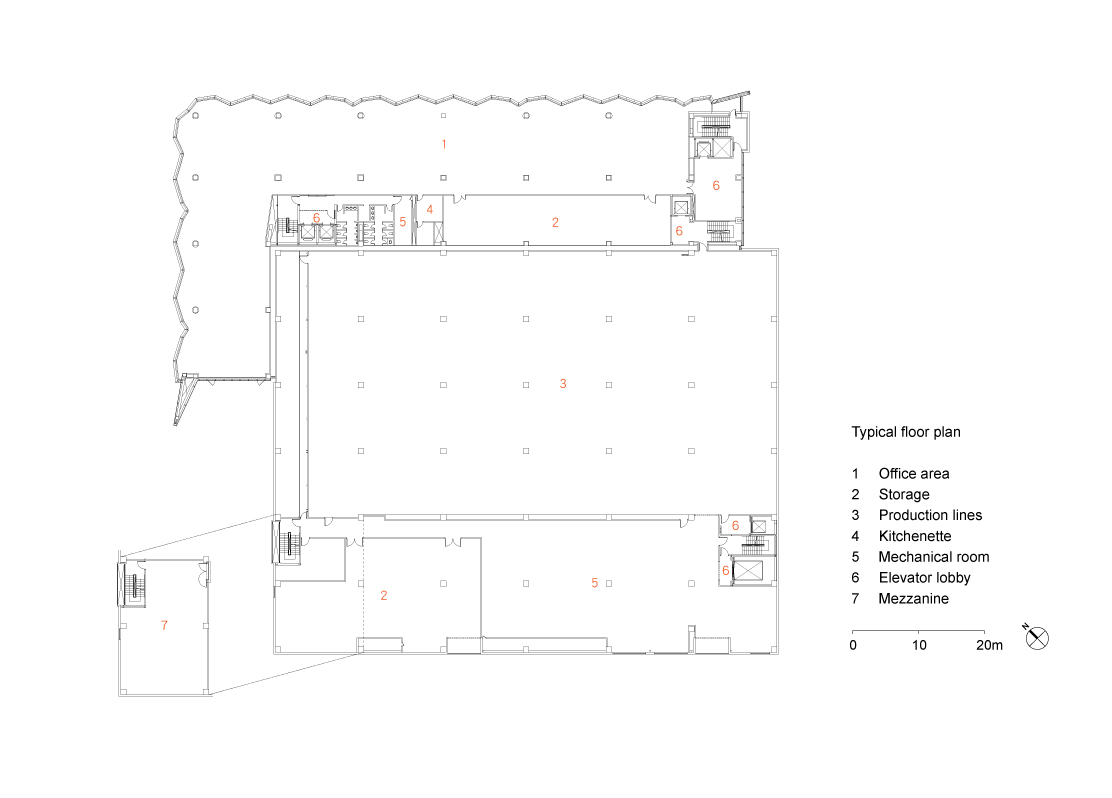
The ground floor of this north-oriented building is planned with high-ceilinged foyer and an auditorium, with a staff restaurant curtained with panoramic glass walls facing the central green belt. The 2nd to 7th floors are research spaces, and the 8th floor is executive offices. The 5-story plant on the south is built with damping diagonal bracing structure.
The heightened basement air raid shelter and garage are planned to meet the parking needs for phase II expansion in the future.
To present a clear-cut, light, and transparent look of the building, and to induce greenery indoors, the large glass exterior walls of the office building are complemented with movable vertical blinds to shield off light from the north. The alcove spaces formed alongside the exterior wall is employed as R&D discussion and lounging spots, to effectively utilize the irregular spaces.
Project Info:
Architects: J. J. Pan & Partners
Location: Dong District, Taiwan
Project Team: Joshua J. Pan, Chung Tsai Huang, Yi Tai Lin, Shun Lang Wu, Mallet Y.L. Chang, K. J. Lin, I-Fen Chang, Shu Chiao Hsu
Area: 27000.0 sqm
Project Year: 2009
Project Name: Neo Solar Power Corporation
All Images Courtesy Of J. J. Pan & Partners


















Tags: 2009AluminumConcreteCurtain wallDong DistrictGlassJ. J. Pan & PartnersNeo Solar PowerStructureTaiwan
Ruba Ahmed, a senior project editor at Arch2O and an Alexandria University graduate, has reviewed hundreds of architectural projects with precision and insight. Specializing in architecture and urban design, she excels in project curation, topic selection, and interdepartmental collaboration. Her dedication and expertise make her a pivotal asset to Arch2O.
