Nassau Community College | Cannon Design
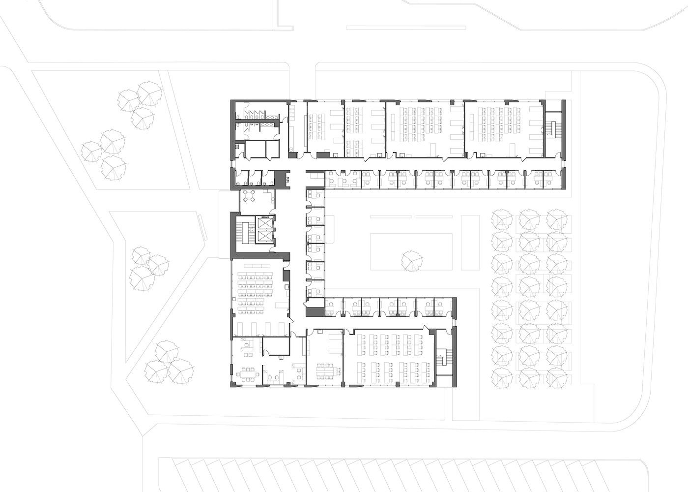
Nassau Community College was designed by Cannon Design, Comprising approximately 73,000 GSF, the new Life Sciences Building is situated on an open field and attempts to reflect and leverage the natural beauty surrounding it. Inspired by the campus context, the facility features long rectilinear bars three stories in height. These bars are configured in a horseshoe fashion creating a courtyard whose open end is completed by a cluster of tall trees which forms one communal exterior green space.
Laboratory and lecture classrooms, situated along the building’s outer perimeter, display the building’s function and activities while creating a formal front toward the main campus. Natural copper-plate exterior wall panels harmoniously blend the new science building with its natural context. The cladding provides a building skin that is ever changing in appearance as it reflects how the environment affects its color and patterning. Porcelain tile panels, along with glass and aluminum storefronts, mark areas of entry and highlight classroom activity at the first-floor level.
Faculty offices are distributed all along the inner courtyard creating a feeling of community while encompassing a serene exterior green space for the users. A curtain wall system composed of transparent and translucent glass panes provide a feeling of transparency while, at the same time allowing varying degrees of privacy to each office. A brightly colored steel plate portal and canopy cantilevers above the courtyard marking the entrance doors.
The building’s simple parti features vertical circulation distributed evenly throughout the building’s plan. Main entry points welcome students from the southern campus-side and from the northern courtyard-side. Administrative offices, restrooms, and service closets are stacked in a central location easily identifiable on each floor level.
The building is organized so most spaces used by the general public, mainly the general lecture classrooms, are located on the ground level in an effort to provide an easy connection of the Nassau Community College to the campus community at large. Students have use of a large group study area which facilitates tutoring functions and/or provides for impromptu meeting space for interaction with faculty whose offices are on the first level.
The second floor mainly houses the Chemistry Department’s laboratories, lab support spaces, and faculty offices. The labs are positioned on the lower of the two upper floors in order to accommodate greater allowance for storage of hazardous chemicals while separating them from the more public functions and general student traffic. This level of separation allows for more focused studies to take place away from the population using the general lecture and/or tutorial spaces on the first floor. This also provides for added safety and security for the transport and storage of hazardous materials and sensitive equipment.
The third floor houses the Nursing Department, providing skilled nursing class and training rooms, a computer lab, and the majority of the nursing faculty offices. The level of separation from the other programs in the building allows the Nursing Department to create a stronger identity within its new space. Both the Chemistry and Nursing Departments have administration suites which accommodate the department director’s office and associate staff, conferencing space, and staff support spaces. All building support functions and mechanical spaces are located at the partial basement and mechanical penthouse levels. Chemical storage is housed in the partial basement with limited access only to authorized faculty, staff, and students. Also, a small receiving area on the first level provides needed maintenance access as well.
Project Info:
Architects:Â Cannon Design
Location: Garden City, NY, United States
Project Designer: Ernesto Trindade, AIA, LEED AP
Project Manager: Andreas Hausler, Associate AIA, LEED AP
Project Architects: Tamako Ito, Mecayla Burns, AIA, LEED AP
Design Team: Javiera De la Cuadra, Roberto Macias, Yuko Okuma, Jose Zequeira
Client: Nassau Community College
Managing Principals: Patrick Curley, AIA / Brad Lukanic, AIA
Structural Engineer: Cannon Design
HVAC & Electrical: Cannon Design
Construction Manager: Jacobs Global Buildings North America
General Contractor: Aurora Contractors
Plumbing and Fire Protection: AMA Consulting Engineers
Civil Engineer: Dvirka & Bartilucci Consulting Engineers
Audiovisual Consultant: CMS Innovative Consultants
Data Consultants: TM Technology Partners
Code Consultant: CCI
Area: 73000.0 ft2
Project Name:Â Nassau Community College

































Tags: AluminumCannon DesignConcreteCourtyardGarden CityGlassLEEDMaterialNassau Community CollegeSteelUnited StatesUSA







