NANZER Building, The building is situated in a zone very close to the central area of the city, on Pueyrredón Street, where the low-rise individual housing in a consolidated neighborhood prevails. The architecture does not pretend to be sophisticated, but simple and apprehensive with the neighborhood itself, for that it takes the environment and generates a dialogue with it.
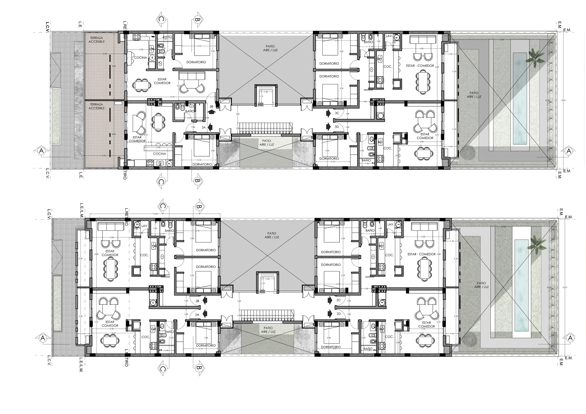
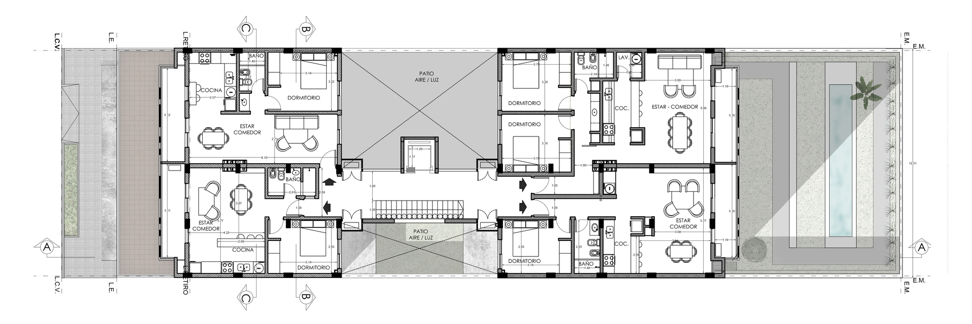
To achieve this link, traditional and well-known materials as brick, metal sheet and concrete, were used on façade. The proposal is armed in two volumes, these are articulated by means of a vertical circulation core (a lift and semi-covered stairs) that together with a large vacuum guarantee light and ventilation to the whole.
Four apartments per floor, develop a total of five floors of housing plus a baseboard that contains the pedestrian entrance, eight covered garages and the recreation and residence area. In both volumes the private areas are organized in the center with suspended white plaster ceilings (bedrooms) while the social areas are located on the front and back , with reinforced concrete slabs (living room) generating good cross ventilation in all units.
We designed the façade from a technical aspect rather than an aesthetic search. The vertical parasols fulfill a double function, they guard the west orientation and grant dynamism to the façade. The heart of apple is used as an area of recreation, this has a small longitudinal pool that together with the green area make an urban pause.
Project Info
Architects:V + Arquitectura
Country: Argentina, Villa Mercedes
Area: 1850 m²
Year: 2018
Photographs: Gonzalo Viramonte
Constructor: Mas Obras S.R.L
Architects In Charge: Maria Eugenia Scardino, Arch Antonella Lepore, Manuel Gonzalez Gola, Sebastian Carrasco, Guillermo Pereira































