Monte dos Judeus Building Rehabilitation | OODA

Monte dos Judeus Building Rehabilitation, Inserted in the historic area of Miragaia, the project comprises the rehabilitation of a vacant property built in several stages since the end of the 19th century, transforming it into a residential building that maintains the original architectural features adapted to contemporary housing reality. The geometrical form of the building clearly identifies with the Hebrew ancestry and the Jewish culture of Porto, associated with the Jewish settlement in Monchique which includes a synagogue and a cemetery for Jewish people, evident in the toponymy of the street that surrounds it – Rua Monte dos Judeus.

Cortesia de OODA6

Cortesia de OODA

The naturally steep slopes lead to a staggering settlement which testifies to the additions of the two primal geometrical forms. The idea clearly distinguishes the different periods assembled in the facades, between the inherited buildings and the later additions without any misgivings regarding the reconciliation and compatibility of the new with the original where the new interprets and respects the traditional typological and tectonic values of the old building, preserving formal and material languages.

© João Morgado2

© João Morgado

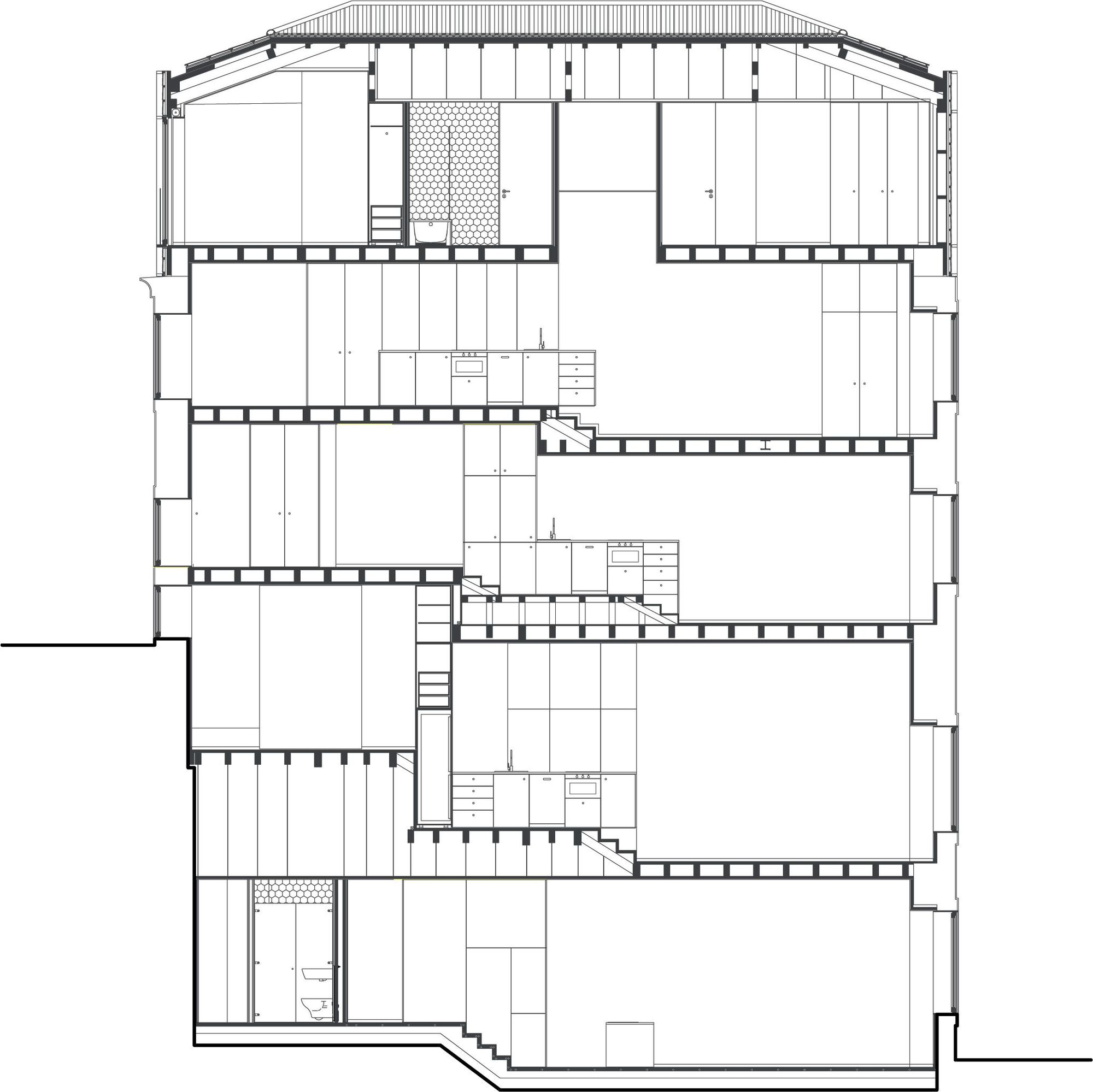
Generically destined for use as residential, the project balances the changes in levels and their impact on the different urban facades. In the original building, a wooden construction topped the stone masonry structure. In the new intervention, a light aluminum volume similar to the pre-existing one was added, with a scale-like facade and a distinct design that responds to the intended function and to the uniformization of the urban set, modernizing it with traditional construction themes, in which it stands out and assumes a distinct character.

© João Morgado3

© João Morgado

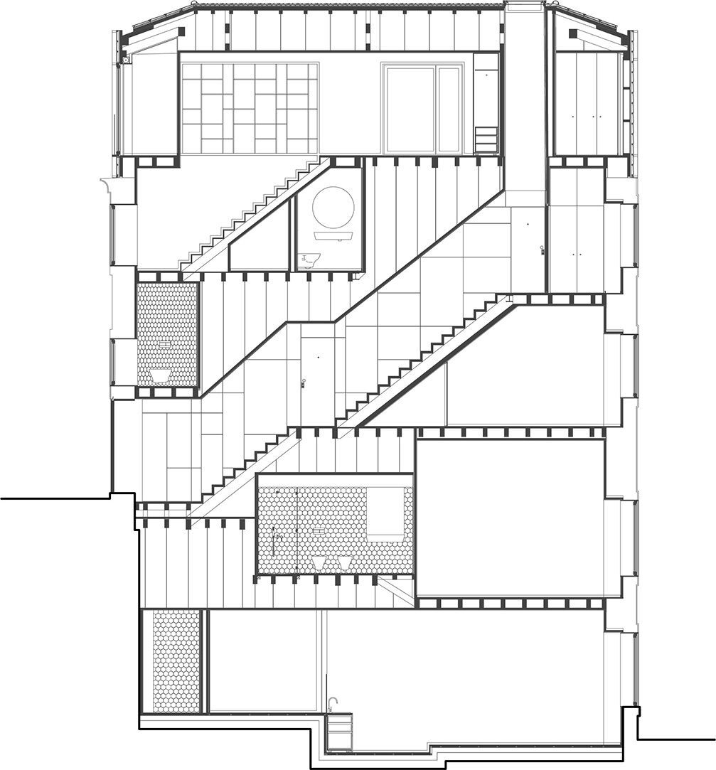
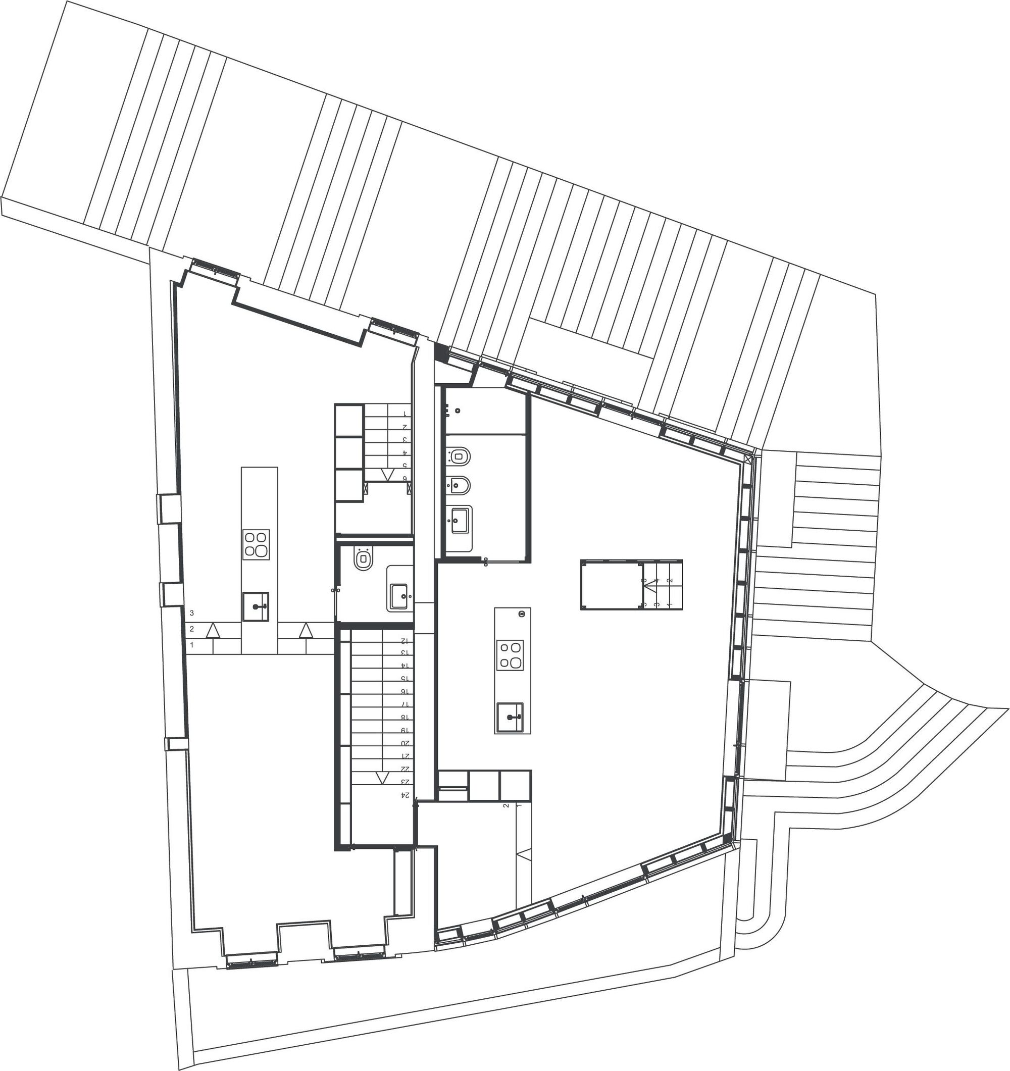
The existing structural walls in stone are rehabilitated, thus maintaining the configuration of an original lot of the buildings, with wooden frames and double glazing. The access doors to the different dwellings are also made of wood. The composition of the space is expressed in vertical sections which evolved and were created over time. The dwellings are designed as open, multifunctional, and flexible.

© João Morgado4

© João Morgado

By fixing the means of circulation and rationalizing the distribution of the space, these small apartments become profitable with excellent ventilation, lighting, and privileged views of the Douro River, opening a window whenever a noteworthy view

© João Morgado5

© João Morgado

is desirable. The vertical accesses, which currently distribute part of the existing construction, are characterized by a public staircase that surrounds the entire building and provides access to various points. The balconies have an exceptional character, as is common in this part of the city.

Maquete. Image Cortesia de OODA7

Maquete. Image Cortesia de OODA

“the building increased in size primarily from the top three floors. The increase was possible in view of the restrictions of historical heritage since the construction had the benefit of being constructed from wood and slate with extensive glass cladding in order to enjoy the views of the urban landscape.” – Fernando Serapião, Founder of Monolito Magazine, in ‘X!? Ten Years OODA’

Project Info
Architects: OODA
Country: Portugal, Porto
Area: 650 m²
Year: 2015
Photographs:João Morgado, Courtesy of OODA
Collaborator: Jerónimo Araújo Botelho Júnior
Type: Commission

Mohamed Saleh
Arch2O.com
Logo
Send this to a friend