Mont Saint Roch | calimùcho architecture office

Mont Saint Roch hosts a bank and an insurance office.The last floor is an apartment.

© Fabian Rouwette6

© Fabian Rouwette

It’s implanted in the city center (near parkings, shops and restaurants). We created an unique volume, with slices as a city street, to develop an urban rhythm.

© Fabian Rouwette2

© Fabian Rouwette

On the front, the only window is an half patio, with a terrace on the ground floor. The emptiness is a slice and the patio spreads light into the whole building. The side facade is dressed with vertical wooden blades, and smaller windows that illuminate smaller rooms.

© Fabian Rouwette3

© Fabian Rouwette

The rest of the building is dressed with massive bricks, ton induce sureness. The cantilevered volumes induce boldness. The street presents an awesome slope. So… the apartment, on the 2nd floor, doesn’t overhang the 1st floor, to align our building with the prospective neighbour’s one. And the accessibility for the parking (basement) could be done via the bottom of the street.

© Fabian Rouwette4

© Fabian Rouwette

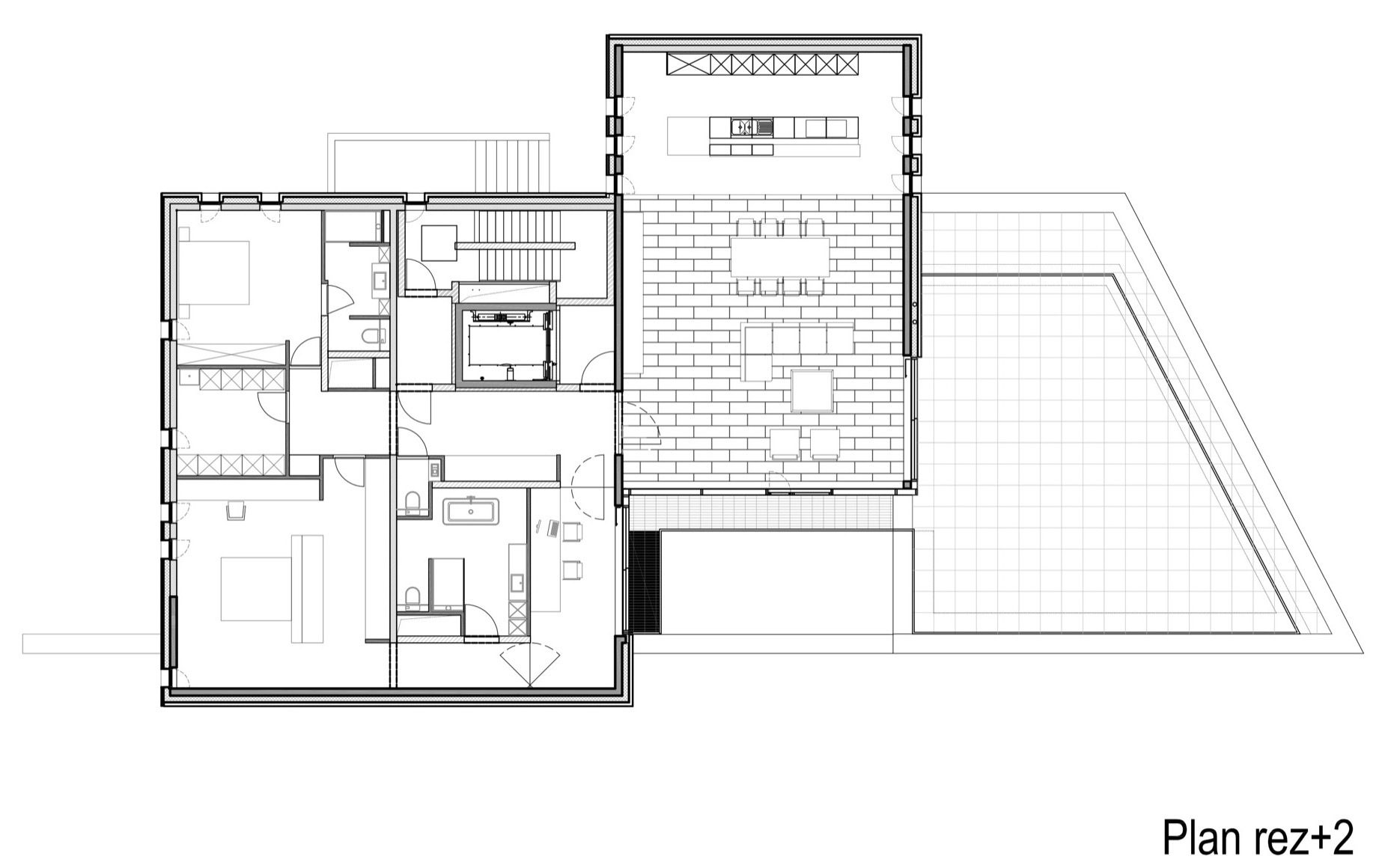
The interior presents an open space, around the patio and smaller office rooms, around the open space. The levels follow the slope of the street… The ground floor, as the 1st floor, present different levels. Thanks to these differences, the reception has a view on the 2 open spaces.

Project Info
Architects: calimùcho architecture office
Country: Nivelles, Belgium
Area: 1550 m²
Year: 2015
Photographs:Fabian Rouwette

Madeline Brooks
Show full profile Madeline Brooks

Madeline Brooks is a Projects Editor at Arch2O, where she has been shaping and refining architectural content since March 2024. With over a decade of experience in editorial work, she has curated, revised, and published an array of projects covering architecture, urbanism, and public space design. A graduate of the Harvard University Graduate School of Design, Madeline brings a strong academic foundation and a discerning editorial eye to each piece she oversees. Since joining Arch2O, she has played a pivotal role in shaping the platform’s editorial direction, with a focus on sustainability, social relevance, and cutting-edge design. Madeline excels at translating complex architectural ideas into clear, engaging stories that resonate with both industry professionals and general readers. She works closely with architects, designers, and global contributors to ensure every project is presented with clarity, depth, and compelling visual narrative. Her editorial leadership continues to elevate Arch2O’s role in global architectural dialogue.

Arch2O.com
Logo
Send this to a friend