MIA’s Office
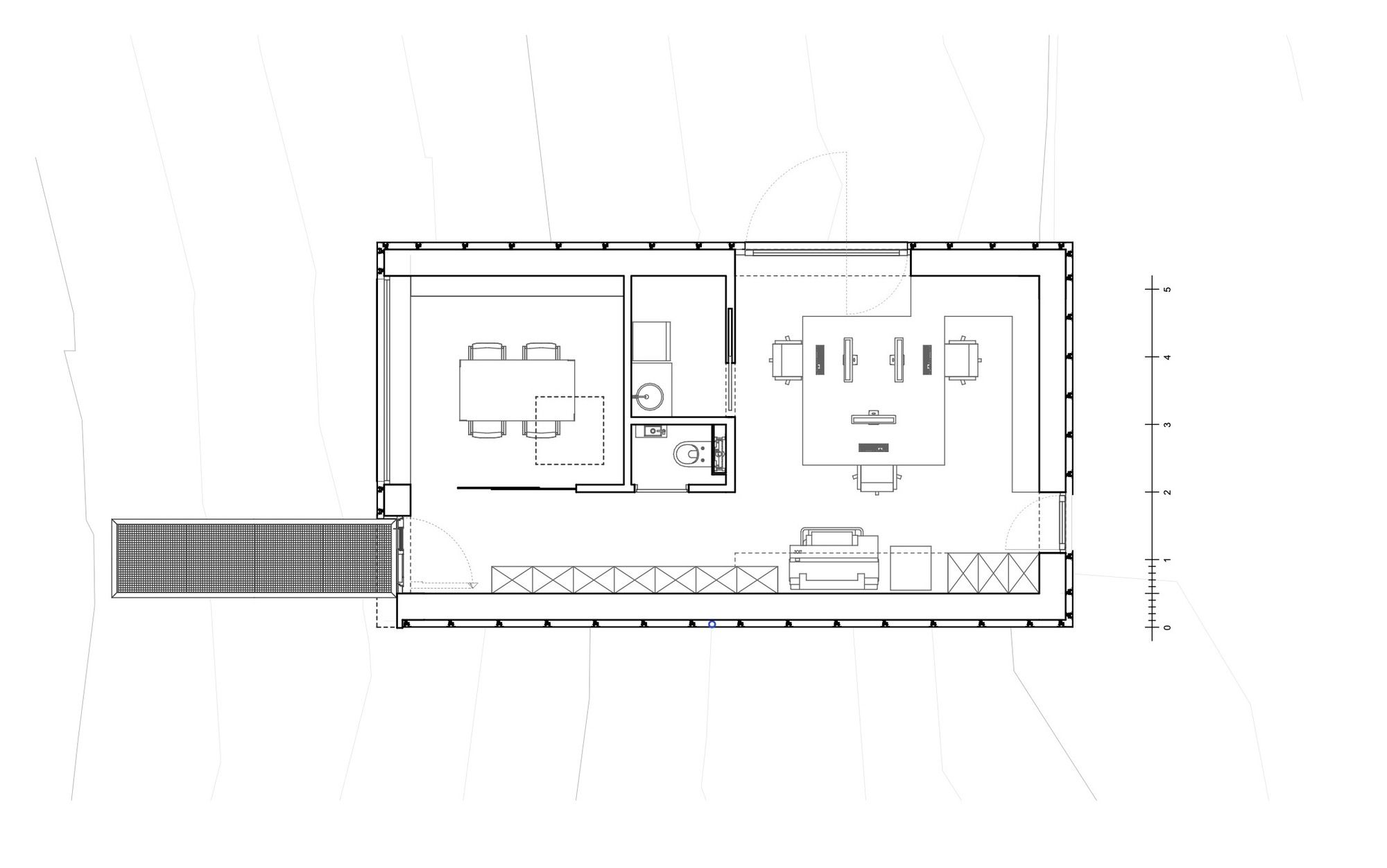
The project consists of the construction of a volume intended to house the spaces of an architect’s office, a meeting room, and technical premises. The volume is implanted in the extension of an existing house built in the 70s in a heavily wooded environment, from which it takes the architectural language for the base (painted bricks, masonry heads, height). Placed on this base, we find the “mirror box” that houses the professional functions. This volume is covered with mirrored skin in order to “disappear” in its environment.
Thanks to the high reflection capacity of this cladding, the new building literally blends into the site. In an almost surreal way, the large square office bay gives the impression, from the garden, of immersion in the interior space, through a notch in the vegetation laid on a brick base. The other windows are hidden behind the translucent skin (SGG Mirastar® glass) and are only visible after dark.
Access is via a metal grating walkway, floating above a cloud of grasses, which leads to a wooden door uncovered by the extrusion of the mirror skin on the northwest corner. From the workspace, the wide opening onto the garden allows to reduce the inner/outer limit and to feel immersed in the direct environment.
The building was constructed in a wooden frame (I-beam) 30 to 36cm thick filled with insulation, which makes it particularly energy efficient. The use of this constructive principle also made it possible to reduce the construction time to a period of +/- 3 months.
Project Info:
Architects: MIA architecture
Location: Beaufays,Belgium
Area: 60 m²
Project Year: 2020
Manufacturers: GRAPHISOFT, Xinnix, Forbo Flooring, Naly, Saint Gobain Glass




















